貸店舗 相模原市中央区 JR横浜線淵野辺駅 の貸店舗 (募集は終了しました。)
| 物件No. | RBK31214 | 
|---|---|
| 最寄駅 所在地 | JR横浜線「淵野辺駅」 神奈川県相模原市中央区 | 
| 賃料 | 450,000円 礼 なし / 敷 4ヶ月 | 
相模原市中央区-貸店舗・貸し店舗・賃貸店舗
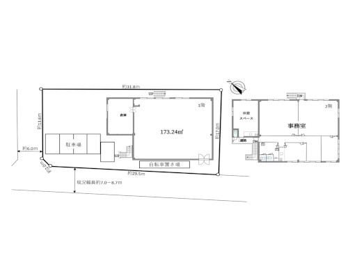
- Point 1鉄骨造平屋建て 各階:約61.21坪
- Point 2相模原市中央区|駐車場あり
- Point 3第一種住居地域
| 物件No. | RBK31214 | ||
|---|---|---|---|
| 所在地 | 神奈川県相模原市中央区 | ||
| 交通 ※駅までの直線距離で自動表示 実際の交通とは異なります。 | JR横浜線 「淵野辺駅」 | ||
| 賃料(月額) | 450,000円 | 管理費(月額) | |
| 敷金/保証金 | 敷 4ヶ月 | 礼金 | なし | 
| 建物面積 | 約122坪 | ||
| 土地面積 | |||
| 構造・規模 | 鉄骨造平屋建て 各階:約61.21坪 | ||
| 築年月 | 1982年7月 | ||
| 接道状況 | 道路幅員約7m~約8.7m公道 道路幅員約6m公道 | ||
| 設備 | 水道 電気 プロパンガス | ||
| 備考 | 消費税10%込表示。 ■■■ 個別提案によるマッチングサポート ■■■ 入手する物件情報は、オーナー様より直接、不動産業者、士業者、デベロッパーなどこれまでの取引を通じたネットワークによるものです。 ホームページに公開していない物件も多数ございます。 掲載をご希望されていない物件や、経済条件が決定していない物件などは公開されません。 公開できない物件情報については、いただいているお客様のご要望の中からマッチングして個別に提案させて頂いております。 ホームページに公開されている物件は、取扱物件全体のわずか一部です。 ホームページにマッチする物件がない場合でも、お気軽にご要望をお知らせください。 事業用不動産の賃貸・売買を取り巻く環境は絶えず変化しています。 最近の大きな変化では、2020年4月1日施行の民法改正があります。 また、お客様のコンプライアンスに関する基本方針も日々変化しています。 こうした環境変化・多様化するニーズに対応しながら、お客様のご要望に対し、全力でサポートいたします。 | ||
| 取引態様 | 媒介 | ||
| こちらの物件は、募集終了しました。 他の物件検索はこちら | |||
お問い合わせ可能な相模原市中央区周辺の貸店舗物件
座標の取得が出来ない場合など大きくずれを生じる場合があります。
![古淵 JR横浜線[古淵駅]の貸店舗物件の詳細はこちら](https://www.tatsuwa.com/images/common/CT-kashi-tenpo.png) 貸店舗
          貸店舗
          
        
                        ![古淵 JR横浜線[古淵駅]の貸店舗物件の詳細はこちら](https://www.tatsuwa.com/bukken_imgs/thumb/_sch.jpg)
                    相模原市南区古淵
            [古淵駅]
            
872.26㎡ (263.85坪)
                    
2,000,000円
![相模が丘 小田急小田原線[小田急相模原駅]の貸店舗物件の詳細はこちら](https://www.tatsuwa.com/images/common/CT-kashi-tenpo.png) 貸店舗
          貸店舗
          
        
                        ![相模が丘 小田急小田原線[小田急相模原駅]の貸店舗物件の詳細はこちら](https://www.tatsuwa.com/bukken_imgs/thumb/RBK32355-img1_sch.jpg)
                    座間市相模が丘
            [小田急相模原駅]
            
676.89㎡ (204.75坪)
                    
1,540,000円
![大上 相鉄本線[さがみ野駅]の貸店舗物件の詳細はこちら](https://www.tatsuwa.com/images/common/CT-kashi-tenpo.png) 貸店舗
          貸店舗
          
        
                        ![大上 相鉄本線[さがみ野駅]の貸店舗物件の詳細はこちら](https://www.tatsuwa.com/bukken_imgs/thumb/RBK32061-img1_sch.jpg)
                    綾瀬市大上
            [さがみ野駅]
            
898.42㎡ (271.77坪)
                    
2,640,000円
![寺尾中 相鉄本線[かしわ台駅]の貸店舗物件の詳細はこちら](https://www.tatsuwa.com/images/common/CT-kashi-tenpo.png) 貸店舗
          貸店舗
          
        
                        ![寺尾中 相鉄本線[かしわ台駅]の貸店舗物件の詳細はこちら](https://www.tatsuwa.com/bukken_imgs/thumb/RBK33348-img1_sch.jpg)
                    綾瀬市寺尾中
            [かしわ台駅]
            
270.91㎡ (81.95坪)
                    
550,000円
![荏田町 東急田園都市線[江田駅]の貸店舗物件の詳細はこちら](https://www.tatsuwa.com/images/common/CT-kashi-tenpo.png) 貸店舗
          貸店舗
          
        
                        ![荏田町 東急田園都市線[江田駅]の貸店舗物件の詳細はこちら](https://www.tatsuwa.com/bukken_imgs/thumb/RBK32012-img1_sch.jpg)
                    横浜市青葉区荏田町
            [江田駅]
            
444.56㎡ (134.47坪)
                    
995,500円
![門沢橋 JR相模線[門沢橋駅]の貸店舗物件の詳細はこちら](https://www.tatsuwa.com/images/common/CT-kashi-tenpo.png) 貸店舗
          貸店舗
          
        
                        ![門沢橋 JR相模線[門沢橋駅]の貸店舗物件の詳細はこちら](https://www.tatsuwa.com/bukken_imgs/thumb/RBK32512-img1_sch.jpg)
                    海老名市門沢橋
            [門沢橋駅]
            
1,329.41㎡ (402.14坪)
                    
2,695,000円
![高倉 小田急江ノ島線[長後駅]の貸店舗物件の詳細はこちら](https://www.tatsuwa.com/images/common/CT-kashi-tenpo.png) 貸店舗
          貸店舗
          
        
                        ![高倉 小田急江ノ島線[長後駅]の貸店舗物件の詳細はこちら](https://www.tatsuwa.com/bukken_imgs/thumb/RBK26274-img1_sch.jpg)
                    藤沢市高倉
            [長後駅]
            
106.96㎡ (32.35坪)
                    
502,854円
![高倉 小田急江ノ島線[長後駅]の貸店舗物件の詳細はこちら](https://www.tatsuwa.com/images/common/CT-kashi-tenpo.png) 貸店舗
          貸店舗
          
        
                        ![高倉 小田急江ノ島線[長後駅]の貸店舗物件の詳細はこちら](https://www.tatsuwa.com/bukken_imgs/thumb/RBK32151-img1_sch.jpg)
                    藤沢市高倉
            [長後駅]
            
451.78㎡ (136.66坪)
                    
1,485,000円
![宮原 小田急江ノ島線[湘南台駅]の貸店舗物件の詳細はこちら](https://www.tatsuwa.com/images/common/CT-kashi-tenpo.png) 貸店舗
          貸店舗
          
        
                        ![宮原 小田急江ノ島線[湘南台駅]の貸店舗物件の詳細はこちら](https://www.tatsuwa.com/bukken_imgs/thumb/RBK33121-img1_sch.jpg)
                    藤沢市宮原
            [湘南台駅]
            
82.81㎡ (25.05坪)
                    
396,000円
![上粕屋 小田急小田原線[伊勢原駅]の貸店舗物件の詳細はこちら](https://www.tatsuwa.com/images/common/CT-kashi-tenpo.png) 貸店舗
          貸店舗
          
        
                        ![上粕屋 小田急小田原線[伊勢原駅]の貸店舗物件の詳細はこちら](https://www.tatsuwa.com/bukken_imgs/thumb/RBK29500-img1_sch.jpg)
                    伊勢原市上粕屋
            [伊勢原駅]
            
153.94㎡ (46.56坪)
                    
350,000円
![東俣野町 JR東海道本線[藤沢駅]の貸店舗物件の詳細はこちら](https://www.tatsuwa.com/images/common/CT-kashi-tenpo.png) 貸店舗
          貸店舗
          
        
                        ![東俣野町 JR東海道本線[藤沢駅]の貸店舗物件の詳細はこちら](https://www.tatsuwa.com/bukken_imgs/thumb/RBK26216-img1_sch.jpg)
                    横浜市戸塚区東俣野町
            [藤沢駅]
            
464.84㎡ (140.61坪)
                    
792,000円
![長後 小田急江ノ島線[長後駅]の貸店舗物件の詳細はこちら](https://www.tatsuwa.com/images/common/CT-kashi-tenpo.png) 貸店舗
          貸店舗
          
        
                        ![長後 小田急江ノ島線[長後駅]の貸店舗物件の詳細はこちら](https://www.tatsuwa.com/bukken_imgs/thumb/RBK04330-img1_sch.jpg)
                    藤沢市長後
            [長後駅]
            
68.99㎡ (20.86坪)
                    
396,000円
![上大槻 小田急小田原線[秦野駅]の貸店舗物件の詳細はこちら](https://www.tatsuwa.com/images/common/CT-kashi-tenpo.png) 貸店舗
          貸店舗
          
        
                        ![上大槻 小田急小田原線[秦野駅]の貸店舗物件の詳細はこちら](https://www.tatsuwa.com/bukken_imgs/thumb/RBK32270-img1_sch.jpg)
                    秦野市上大槻
            [秦野駅]
            
199.70㎡ (60.40坪)
                    
650,000円
![二本木 JR八高線(八王子~高麗川)[箱根ケ崎駅]の貸店舗物件の詳細はこちら](https://www.tatsuwa.com/images/common/CT-kashi-tenpo.png) 貸店舗
          貸店舗
          
        
                        ![二本木 JR八高線(八王子~高麗川)[箱根ケ崎駅]の貸店舗物件の詳細はこちら](https://www.tatsuwa.com/bukken_imgs/thumb/RBT32176-img1_sch.jpg)
                    西多摩郡瑞穂町二本木
            [箱根ケ崎駅]
            
642.20㎡ (194.26坪)
                    
847,000円
![東狭山ケ丘 西武池袋線[狭山ヶ丘駅]の貸店舗物件の詳細はこちら](https://www.tatsuwa.com/images/common/CT-kashi-tenpo.png) 貸店舗
          貸店舗
          
        
                        ![東狭山ケ丘 西武池袋線[狭山ヶ丘駅]の貸店舗物件の詳細はこちら](https://www.tatsuwa.com/bukken_imgs/thumb/RBS33658-img1_sch.jpg)
                    所沢市東狭山ケ丘
            [狭山ヶ丘駅]
            
595.26㎡ (180.06坪)
                    
1,100,000円
![藤久保 東武東上線[鶴瀬駅]の貸店舗物件の詳細はこちら](https://www.tatsuwa.com/images/common/CT-kashi-tenpo.png) 貸店舗
          貸店舗
          
        
                        ![藤久保 東武東上線[鶴瀬駅]の貸店舗物件の詳細はこちら](https://www.tatsuwa.com/bukken_imgs/thumb/RBS34171-img1_sch.jpg)
                    入間郡三芳町藤久保
            [鶴瀬駅]
            
502.28㎡ (151.93坪)
                    
1,980,000円
![扇河岸 東武東上線[新河岸駅]の貸店舗物件の詳細はこちら](https://www.tatsuwa.com/images/common/CT-kashi-tenpo.png) 貸店舗
          貸店舗
          
        
                        ![扇河岸 東武東上線[新河岸駅]の貸店舗物件の詳細はこちら](https://www.tatsuwa.com/bukken_imgs/thumb/_sch.jpg)
                    川越市扇河岸
            [新河岸駅]
            
871.89㎡ (263.74坪)
                    
1,430,000円
![吹塚 東武東上線[高坂駅]の貸店舗物件の詳細はこちら](https://www.tatsuwa.com/images/common/CT-kashi-tenpo.png) 貸店舗
          貸店舗
          
        
                        ![吹塚 東武東上線[高坂駅]の貸店舗物件の詳細はこちら](https://www.tatsuwa.com/bukken_imgs/thumb/RBS33041-img1_sch.jpg)
                    比企郡川島町吹塚
            [高坂駅]
            
496.00㎡ (150.04坪)
                    
450,000円
![大成町 JR武蔵野線[越谷レイクタウン駅]の貸店舗物件の詳細はこちら](https://www.tatsuwa.com/images/common/CT-kashi-tenpo.png) 貸店舗
          貸店舗
          
        
                        ![大成町 JR武蔵野線[越谷レイクタウン駅]の貸店舗物件の詳細はこちら](https://www.tatsuwa.com/bukken_imgs/thumb/RBS32013-img1_sch.jpg)
                    越谷市大成町
            [越谷レイクタウン駅]
            
107.65㎡ (32.56坪)
                    
330,000円
![中央 東武伊勢崎線[春日部駅]の貸店舗物件の詳細はこちら](https://www.tatsuwa.com/images/common/CT-kashi-tenpo.png) 貸店舗
          貸店舗
          
        
                        ![中央 東武伊勢崎線[春日部駅]の貸店舗物件の詳細はこちら](https://www.tatsuwa.com/bukken_imgs/thumb/RBS21817-img1_sch.jpg)
                    春日部市中央
            [春日部駅]
            
148.76㎡ (44.99坪)
                    
385,000円
![常盤平 新京成電鉄新京成線[五香駅]の貸店舗物件の詳細はこちら](https://www.tatsuwa.com/images/common/CT-kashi-tenpo.png) 貸店舗
          貸店舗
          
        
                        ![常盤平 新京成電鉄新京成線[五香駅]の貸店舗物件の詳細はこちら](https://www.tatsuwa.com/bukken_imgs/thumb/RBC25900-img1_sch.jpg)
                    松戸市常盤平
            [五香駅]
            
661.32㎡ (200.04坪)
                    
880,000円
![あけぼの JR常磐線[柏駅]の貸店舗物件の詳細はこちら](https://www.tatsuwa.com/images/common/CT-kashi-tenpo.png) 貸店舗
          貸店舗
          
        
                        ![あけぼの JR常磐線[柏駅]の貸店舗物件の詳細はこちら](https://www.tatsuwa.com/bukken_imgs/thumb/RBC25768-img1_sch.jpg)
                    柏市あけぼの
            [柏駅]
            
475.83㎡ (143.93坪)
                    
2,145,000円
![宿連寺 JR常磐線(上野~取手)[北柏駅]の貸店舗物件の詳細はこちら](https://www.tatsuwa.com/images/common/CT-kashi-tenpo.png) 貸店舗
          貸店舗
          
        
                        ![宿連寺 JR常磐線(上野~取手)[北柏駅]の貸店舗物件の詳細はこちら](https://www.tatsuwa.com/bukken_imgs/thumb/RBC30600-img1_sch.jpg)
                    柏市宿連寺
            [北柏駅]
            
178.93㎡ (54.12坪)
                    
770,000円
![白山 JR常磐線[我孫子駅]の貸店舗物件の詳細はこちら](https://www.tatsuwa.com/images/common/CT-kashi-tenpo.png) 貸店舗
          貸店舗
          
        
                        ![白山 JR常磐線[我孫子駅]の貸店舗物件の詳細はこちら](https://www.tatsuwa.com/bukken_imgs/thumb/_sch.jpg)
                    我孫子市白山
            [我孫子駅]
            
175.56㎡ (53.10坪)
                    
770,000円
![荒川 秩父鉄道秩父本線[小前田駅]の貸店舗物件の詳細はこちら](https://www.tatsuwa.com/images/common/CT-kashi-tenpo.png) 貸店舗
          貸店舗
          
        
                        ![荒川 秩父鉄道秩父本線[小前田駅]の貸店舗物件の詳細はこちら](https://www.tatsuwa.com/bukken_imgs/thumb/RBS27361-img1_sch.jpg)
                    深谷市荒川
            [小前田駅]
            
335.13㎡ (101.37坪)
                    
781,000円
ホームページに掲載されている相模原市中央区の貸店舗に関するFAQ
- Q1ホームページに掲載されている相模原市中央区周辺の貸店舗はあるのか?
- A1
      こちらの貸店舗(RBK31214)の募集は終了しました。
 参考情報としてご利用ください。
 
 立和コーポレーションは首都圏の事業用物件を専門に取り扱う不動産会社です。
 
 ホームページでは多くの貸店舗を公開しておりますが、これは取扱物件全体の一部で、公開されていない非公開物件も多数ございます。
 非公開となっている貸店舗については、担当営業スタッフより個別提案とさせていただいております。
 
 お探しのエリアの非公開物件の有無は、担当営業スタッフへお問い合わせください。
 
 ご要望にマッチする物件が無い場合でも、担当営業スタッフによる新着情報からの随時提案や、ホームページには新着物件情報や更新情報を自動配信する物件さがしのサポートツール「新着お知らせメール」もあります。
- Q2相模原市中央区で貸店舗を探すためのポイント
- A2
      1. 相模原市中央区周辺の事業用不動産市場の特性を知る
 
 相模原市中央区周辺にて貸店舗を探す際は、市場動向や地域特性をしっかり理解することが重要です。
 エリアごとの成長性や再開発情報を把握しておくと、将来的な事業展開にも役立ちます。
 
 2. 貸店舗選びにおける重要なポイント
 
 ① 立地条件の確認
 交通アクセスの良さは、事業の効率化や従業員の通勤利便性に直結します。
 相模原市中央区周辺の交通アクセスを確認しましょう。
 駅や高速道路のインターチェンジに近い物件は、物流効率や事業運営のスムーズさを高めるため、積極的に検討しましょう。
 
 ② 用途適合性の確認
 物件選定時は、都市計画法で規定されている用途地域を確認することが必須です。
 相模原市中央区周辺の用途地域を確認しましょう。
 インターネットの検索エンジンで調べたい「市区町村名 都市計画図」と検索すればほとんどが閲覧できます。
 各用途地域の制限の概略はこちらで確認できます。⇒用途地域による建築物の用途制限の概要資料
 特定の業種の場合、物件利用に制限がかかる可能性があるため、事前に行政窓口や専門家に相談することをお勧めします。
 
 ③ コストと予算計画
 神奈川県の主要エリアでは、人気物件ほど賃料や購入価格が高騰する傾向があります。
 初期投資だけでなく、物件維持費、管理費、将来的な改修・設備投資などの費用も含めた総合的な予算計画を立てましょう。
 
 3. 最適な貸店舗を見つけるために
 相模原市中央区周辺で事業用物件を成功裏に選ぶためには、立地条件・用途規制・総合的なコストバランスを慎重に評価する必要があります。
 また、最新情報を常に収集し、賢明な選択を心がけましょう。
- Q3相模原市中央区周辺の貸店舗を貸したい!
- A3
      是非、お気軽にお問い合わせください!
 
 ・「簡易査定」「詳細査定」と無料査定を随時実施中です!
 貸店舗の豊富な取り扱い経験から適正査定を行ないます。
 
 ・「専任媒介」「専属専任媒介」「サブリース」はもちろん!
 「一般媒介」からもお受けいたします!
 
 ・非公開での賃貸仲介も可能です。
 弊社のストロングポイント!貸店舗をおさがしのお客様へ個別提案を行ないます。
 
 
 『安心と信頼の取引。早く高くを追及しています。』
- Q4賃貸管理もお願いできますか?
- A4
      はい、承っております。
 賃料の入金管理・回収業務、入居者との調整、修繕アドバイス、明渡しの立会い・精算業務など、オーナー様の事業用不動産経営におけるさまざまなご負担やご心配を軽減いたします。
 
 ■ キャンペーン概要
 弊社媒介(「専任媒介」または「専属専任媒介」に限ります)で賃貸借契約を締結のうえ、
 「賃貸管理契約」をご利用いただいたお客様には、管理費3ヵ月分を無料とさせていただきます。
 
 ■ リアルタイムで管理状況を報告
 募集活動や管理業務の状況などを、できる限りリアルタイムでご報告。
 日々の進捗はもちろん、現場や打ち合わせ時なども電話・メール・LINEで随時ご連絡可能です。
 
 まずはお気軽にお問い合わせください!
相模原市中央区の貸店舗についてのお知らせ・ニュース
事業用不動産「貸店舗」さがしのベストパートナー

日本>関東>貸店舗関連記事
事業の成長に不可欠な、新たな拠点さがし。
しかし、数ある物件の中から自社の事業に最適な一つを見つけ出すのは、決して簡単ではありません。
立和コーポレーションは、複雑な条件や法規制、見えにくい相場観など、専門家でなければ見抜けないポイントを網羅し、お客様のビジネスに最適な物件だけを厳選してご提案することをお約束します。
1. 事業用不動産「専門」チームによる的確な提案
倉庫・工場・店舗・事務所・土地など、事業用不動産は専門知識が不可欠です。当社の専門スタッフが、お客様の事業内容や将来計画を深く理解し、プロの視点から最適な物件をご提案します。
2. 多角的な「総合評価」で、隠れたリスクを回避
道路幅、用途地域、インフラ(電気・ガス・水道)、消防設備、近隣環境…。これらは事業運営に直結する重要な要素です。専門チームが多角的にチェックし、後々のトラブルを防ぐ「本当に適切な物件」だけをご紹介します。
3. 実務目線で選定。本当に「使える」物件だけを厳選
面積や賃料が希望通りでも、許認可が下りない、騒音問題で操業できない、といったケースは少なくありません。私たちは、お客様の事業が「実際にスタートできるか」を最重要視し、実務に即した目線で物件を厳選します。
4. 豊富な実績に基づく「リアルな相場」と「交渉力」
インターネット上の情報だけでは分からない、「実際の成約価格」や「リアルな坪単価」を把握しています。豊富な実績に基づき、賃料や条件面での「交渉の余地」を的確にアドバイスし、お客様の利益を最大化します。
5. 地元密着の強み × 広域ネットワーク
特定のエリアに精通する「地域密着の強み」と、都県境を越えた「広域ネットワーク」を両立。例えば「物流拠点は〇〇エリア」「特定の業種が集積する地域」など、お客様の業種に最適なエリア戦略からご提案します。
最適な物件探しから、条件交渉、ご契約まで、ワンストップでサポートいたします。 
事業用不動産探しに関するあらゆるお悩みは、私たち専門チームにお任せください。 
ご相談は無料です。
お気軽にお問い合わせください。
壁芯(かべしん・へきしん)と内法(うちのり)
- 成約済み物件は当サイトに掲載していた物件情報で、成約済みとなった情報を一部抜粋して掲載しています。
- それぞれの物件情報について、すべての制限・情報が表示されているわけではありません。
- 参考資料としてご利用下さい。



 
    







