貸寮
貸寮の公開物件を検索する
お探しのエリアを選択して「物件を検索する」ボタンを押してください。選択した検索条件でお問い合わせも可能です。
「貸寮を貸したい」とお考えの方へ - 無料査定・管理キャンペーンのお知らせ!-
■ 査定方法は2種類
査定方法やご不明点などは、担当スタッフまでお気軽にご相談ください。
お客様の状況に合わせ、フレキシブルに対応いたします。
- 簡易査定
現地確認や打ち合わせを行わず、データなどをもとに査定額を算出します。
最短で即日回答が可能です! - 詳細査定
現地確認と打ち合わせを行い、より精度の高い調査をもとに査定額を算出します。
正確な査定をご希望の方におすすめです。
■ 賃貸借管理サービス
賃料の徴収やトラブル対応、更新・再契約手続き、退去時立会い、敷金精算など、
貸主さまに代わって一連の業務をサポートいたします。
■ キャンペーン概要
弊社媒介(「専任媒介」または「専属専任媒介」に限ります)で賃貸借契約を締結のうえ、
「賃貸管理契約」をご利用いただいたお客様には、管理費3ヵ月分を無料とさせていただきます。
■ リアルタイムで管理状況を報告
募集活動や管理業務の状況などを、できる限りリアルタイムでご報告。
日々の進捗はもちろん、現場や打ち合わせ時なども電話・メール・LINEで随時ご連絡可能です。
まずはお気軽にお問い合わせください!
首都圏で貸寮を借りるポイント
首都圏は、企業や学校、福祉施設など多様な目的での「貸寮」の需要が高いエリアです。
企業が一括で借り上げる寮は、従業員や学生が生活を送る上での利便性や安心感を提供するため、物件探しの際には立地や設備、契約条件など多角的な視点で検討することが重要です。
首都圏は人口が密集し、住宅需要が高い分、寮として利用できる物件も多様です。
企業向けに広い敷地や共用部を備えた大型物件、学校法人が利用する学生向け寮、福祉施設として改修しやすい構造の建物など、目的に合わせて選べる選択肢が豊富に存在します。
従業員向け寮
企業が福利厚生の一環として設置することが多く、職場から通いやすい立地や、防犯設備の整った物件に人気があります。
若手社員や遠方からの赴任者など、住環境を整える必要がある場合に有効です。
学生寮
大学や専門学校、事業者が、一括で寮を借り上げるケースもあります。
アクセスの良さに加え、学校周辺の治安や周辺施設の充実度がポイントになることが多いです。
福祉施設や研修施設への利用
元々、寄宿舎や社宅だった建物をリノベーションして、福祉施設や研修センターとして活用する事例も見られます。
バリアフリー工事や共同スペースの改装など、用途に応じた設備投資が必要になる点が特徴です。
| 地域 | 公開物件 | 取扱物件 |
|---|---|---|
| 東京都 | 20 | 50 |
| 神奈川県 | 19 | 41 |
| 埼玉県 | 8 | 8 |
| 千葉県 | 4 | 4 |
| 合計 | 51 | 103 |
ホームページに公開されている物件以外にも多数取り扱い物件がございます。
オーナー様が掲載をご希望されていない物件や経済条件が決定されていない物件などは掲載されません。
非公開物件からの提案、新着物件からの随時提案については、担当の営業スタッフが、お客様の業種・用途・ご要望などに応じて個別に行なっております。
非公開物件に関するお問い合わせはこちらから
貸寮の新着情報
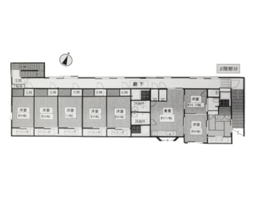
【RBT35153】日野市の貸寮 | 最寄駅はJR中央本線(東京~塩尻)「日野駅」です。
鉄骨造3階建て2階~3階部分
| 最寄駅 所在地 |
JR中央本線(東京~塩尻)「日野駅」徒歩21分 東京都日野市多摩平 |
|---|---|
| 賃料 | 1,008,000円礼 1ヶ月 / 敷 3ヶ月 |
| 建物面積 | |
| 種別 | 貸寮 |
| おすすめポイント |
|
【RBT35120】新宿区の貸寮 | 最寄駅はJR中央・総武緩行線「大久保駅」です。
木造2階建て 2棟
| 最寄駅 所在地 |
JR中央・総武緩行線「大久保駅」徒歩6分 東京都新宿区百人町 |
|---|---|
| 賃料 | 1,650,000円礼 1ヶ月 / 敷 4ヶ月 |
| 建物面積 | 158.88㎡ (48.06坪) |
| 種別 | 貸寮 |
| おすすめポイント |
|
【RBT35112】大田区の貸寮 | 最寄駅は京急空港線「大鳥居駅」です。
鉄骨造3階建て2階部分
| 最寄駅 所在地 |
京急空港線「大鳥居駅」徒歩17分 東京都大田区大森南 |
|---|---|
| 賃料 | 495,000円礼 1ヶ月 / 敷 1ヶ月 |
| 建物面積 | 346.63㎡ (104.85坪) |
| 種別 | 貸寮 |
| おすすめポイント |
|
【RBT35107】墨田区の貸寮 | 最寄駅は京成押上線「八広」です。
鉄筋コンクリート造地下1階付4階建て
| 最寄駅 所在地 |
京成押上線「八広」 東京都墨田区八広 |
|---|---|
| 賃料 | 1,676,000円礼 相談 / 相談 |
| 建物面積 | 383.85㎡ (116.11坪) |
| 種別 | 貸寮 |
| おすすめポイント |
|
【RBK35100】横浜市南区の貸寮 | 最寄駅は京急本線「南太田駅」です。
木造2階建て
| 最寄駅 所在地 |
京急本線「南太田駅」徒歩10分 神奈川県横浜市南区三春台 |
|---|---|
| 賃料 | 118,000円礼 なし / なし |
| 建物面積 | 50.56㎡ (15.29坪) |
| 種別 | 貸寮 |
| おすすめポイント |
|
【RBK35093】横須賀市の貸寮 | 最寄駅は京急本線「追浜駅」です。
木造2階建て
| 最寄駅 所在地 |
京急本線「追浜駅」徒歩25分 神奈川県横須賀市追浜東町 |
|---|---|
| 賃料 | 550,000円礼 1ヶ月 / 敷 2ヶ月 |
| 建物面積 | 182.99㎡ (55.35坪) |
| 種別 | 貸寮 |
| おすすめポイント |
|
【RBT34978】足立区の貸寮 | 最寄駅は日暮里・舎人ライナー「西新井大師西駅」です。
木造3階建て
| 最寄駅 所在地 |
日暮里・舎人ライナー「西新井大師西駅」徒歩7分 東京都足立区西新井 |
|---|---|
| 賃料 | 895,000円礼 1ヶ月 / 敷 1ヶ月 |
| 建物面積 | |
| 種別 | 貸寮 |
| おすすめポイント |
|
【RBT34977】葛飾区の貸寮 | 最寄駅はJR常磐線(上野~取手)「金町駅」です。
木造3階建て
| 最寄駅 所在地 |
JR常磐線(上野~取手)「金町駅」徒歩10分 東京都葛飾区金町 |
|---|---|
| 賃料 | 1,075,000円礼 1ヶ月 / 敷 1ヶ月 |
| 建物面積 | |
| 種別 | 貸寮 |
| おすすめポイント |
|
【RBS34973】川口市の貸寮 | 最寄駅はJR京浜東北線「西川口駅」です。
木造3階建て
| 最寄駅 所在地 |
JR京浜東北線「西川口駅」徒歩8分 埼玉県川口市西青木 |
|---|---|
| 賃料 | 804,000円礼 1ヶ月 / 敷 1ヶ月 |
| 建物面積 | |
| 種別 | 貸寮 |
| おすすめポイント |
|
【RBT34972】葛飾区の貸寮 | 最寄駅は京成本線「京成高砂駅」です。
木造3階建て
| 最寄駅 所在地 |
京成本線「京成高砂駅」徒歩12分 東京都葛飾区細田 |
|---|---|
| 賃料 | 979,000円礼 1ヶ月 / 敷 1ヶ月 |
| 建物面積 | |
| 種別 | 貸寮 |
| おすすめポイント |
|
【RBC28902】松戸市の貸寮 | 最寄駅はJR武蔵野線「新松戸駅」です。
鉄骨造3階建て
| 最寄駅 所在地 |
JR武蔵野線「新松戸駅」徒歩9分 千葉県松戸市新松戸 |
|---|---|
| 賃料 | 2,100,000円礼 1ヶ月 / 保 21,000,000円 |
| 建物面積 | 1,496.18㎡ (452.59坪) |
| 種別 | 貸寮 |
| おすすめポイント |
|
【RBT34893】墨田区の貸寮 | 最寄駅は都営浅草線「本所吾妻橋駅」です。
鉄筋コンクリート造7階建て
| 最寄駅 所在地 |
都営浅草線「本所吾妻橋駅」徒歩5分 東京都墨田区東駒形 |
|---|---|
| 賃料 | 4,224,000円礼 1ヶ月 / 敷 1ヶ月 |
| 建物面積 | 572.54㎡ (173.19坪) |
| 種別 | 貸寮 |
| おすすめポイント |
|
【RBT34800】府中市の貸寮 | 最寄駅は京王線「東府中駅」です。
木造2階建て
| 最寄駅 所在地 |
京王線「東府中駅」徒歩5分 東京都府中市清水が丘 |
|---|---|
| 賃料 | 390,000円礼 1ヶ月 / 敷 1ヶ月 |
| 建物面積 | 109.30㎡ (33.06坪) |
| 種別 | 貸寮 |
| おすすめポイント |
|
【RBT34799】江戸川区の貸寮 | 最寄駅は東京メトロ東西線「葛西駅」です。
鉄骨造5階建て
| 最寄駅 所在地 |
東京メトロ東西線「葛西駅」徒歩5分 東京都江戸川区中葛西 |
|---|---|
| 賃料 | 2,500,000円礼 1ヶ月 / なし |
| 建物面積 | 1,182.03㎡ (357.56坪) |
| 種別 | 貸寮 |
| おすすめポイント |
|
【RBK34682】横浜市鶴見区の貸寮 | 最寄駅は京急本線「生麦駅」です。
木造2階建て
| 最寄駅 所在地 |
京急本線「生麦駅」約1.5km 神奈川県横浜市鶴見区東寺尾東台 |
|---|---|
| 賃料 | 230,000円礼 なし / なし |
| 建物面積 | 158.76㎡ (48.02坪) |
| 種別 | 貸寮 |
| おすすめポイント |
|
【RBS34681】戸田市の貸寮 | 最寄駅はJR埼京線「戸田公園駅」です。
鉄骨造3階建て
| 最寄駅 所在地 |
JR埼京線「戸田公園駅」徒歩5分 埼玉県戸田市本町 |
|---|---|
| 賃料 | 1,540,000円礼 2ヶ月 / 保 5ヶ月 |
| 建物面積 | 1,077.12㎡ (325.82坪) |
| 種別 | 貸寮 |
| おすすめポイント |
|
【RBK30069】伊勢原市の貸寮 | 最寄駅は小田急小田原線「伊勢原駅」です。
木造2階建て 1階24.38坪 2階15.02坪
| 最寄駅 所在地 |
小田急小田原線「伊勢原駅」バス10分バス停徒歩8分 神奈川県伊勢原市上粕屋 |
|---|---|
| 賃料 | 200,000円礼 1ヶ月 / 敷 2ヶ月 |
| 建物面積 | 130.28㎡ (39.40坪) |
| 種別 | 貸寮 |
| おすすめポイント |
|
【RBT31418】新宿区の貸寮 | 最寄駅はJR山手線「新大久保駅」です。
木造3階建て
| 最寄駅 所在地 |
JR山手線「新大久保駅」徒歩5分 東京都新宿区大久保 |
|---|---|
| 賃料 | 460,000円礼 1ヶ月 / 敷 3,000,000円 |
| 建物面積 | 69.17㎡ (20.92坪) |
| 種別 | 貸寮 |
| おすすめポイント |
|
【RBK34607】茅ヶ崎市の貸寮 | 最寄駅はJR東海道本線(東京~熱海)「茅ケ崎駅」です。
木造2階建て 1階30.21坪 2階15.53坪
| 最寄駅 所在地 |
JR東海道本線(東京~熱海)「茅ケ崎駅」徒歩17分 神奈川県茅ヶ崎市若松町 |
|---|---|
| 賃料 | 440,000円礼 1ヶ月 / 敷 1ヶ月 |
| 建物面積 | 151.22㎡ (45.74坪) |
| 種別 | 貸寮 |
| おすすめポイント |
|
【RBK34602】横浜市中区の貸寮 | 最寄駅はJR根岸線「石川町駅」です。
木造2階建て
| 最寄駅 所在地 |
JR根岸線「石川町駅」徒歩4分 神奈川県横浜市中区山手町 |
|---|---|
| 賃料 | 1,900,000円礼 なし / 保 3ヶ月 |
| 建物面積 | 482.71㎡ (146.01坪) |
| 種別 | 貸寮 |
| おすすめポイント |
|
【RBK34487】川崎市麻生区の貸寮 | 最寄駅は小田急小田原線「読売ランド前駅」です。
木造2階建て地下1階
| 最寄駅 所在地 |
小田急小田原線「読売ランド前駅」徒歩8分 神奈川県川崎市麻生区高石 |
|---|---|
| 賃料 | 528,000円礼 1ヶ月 / 敷 1,920,000円 |
| 建物面積 | 234.40㎡ (70.90坪) |
| 種別 | 貸寮 |
| おすすめポイント |
|
【RBC34472】習志野市の貸寮 | 最寄駅は京成本線「谷津駅」です。
鉄筋コンクリート造3階建て2~3階部分
| 最寄駅 所在地 |
京成本線「谷津駅」徒歩7分 千葉県習志野市谷津 |
|---|---|
| 賃料 | 1,000,000円礼 なし / 敷 2ヶ月 |
| 建物面積 | |
| 種別 | 貸寮 |
| おすすめポイント |
|
【RBS32367】新座市の貸寮 | 最寄駅は西武池袋線「ひばりヶ丘駅」です。
木造2階建て A棟・B棟
| 最寄駅 所在地 |
西武池袋線「ひばりヶ丘駅」徒歩7分 埼玉県新座市栗原 |
|---|---|
| 賃料 | 900,000円礼 1ヶ月 / 保 6ヶ月 |
| 建物面積 | 242.78㎡ (73.44坪) |
| 種別 | 貸寮 |
| おすすめポイント |
|
【RBS34317】上尾市の貸寮 | 最寄駅は埼玉新都市交通伊奈線「志久駅」です。
鉄骨造2階建て2階部分
| 最寄駅 所在地 |
埼玉新都市交通伊奈線「志久駅」徒歩20分 埼玉県上尾市平塚 |
|---|---|
| 賃料 | 528,000円礼 2ヶ月 / 敷 3ヶ月 |
| 建物面積 | 317.72㎡ (96.11坪) |
| 種別 | 貸寮 |
| おすすめポイント |
|
【RBC34297】野田市の貸寮 | 最寄駅は東武野田線「野田市駅」です。
木造2階建て地下1階
| 最寄駅 所在地 |
東武野田線「野田市駅」徒歩16分 千葉県野田市上花輪新町 |
|---|---|
| 賃料 | 510,000円礼 1ヶ月 / なし |
| 建物面積 | 193.11㎡ (58.41坪) |
| 種別 | 貸寮 |
| おすすめポイント |
|
貸寮を企業の社員寮で活用するポイント
「貸寮を企業の社員寮として利用する」場合を想定し、借主(企業)目線のチェックポイント、貸主(オーナー)目線でのメリット・デメリットを分かりやすくまとめました。
1.借主(企業)目線:社員寮として貸寮を利用する際のチェック項目
企業が社員寮を確保するうえで重要となるのは「快適な住環境」と「利便性」です。
1-1.周辺環境
■交通アクセス
最寄り駅やバス停までの距離、通勤時間を考慮します。
社員の通勤負担を軽減できる立地は離職率の低下にもつながります。
■生活利便施設
コンビニやスーパー、飲食店、病院などが近くにあるかを確認。
社員が快適に暮らせる環境を整えることで満足度が向上します。
■治安
早朝や深夜の帰宅がある場合は、街灯の有無や周辺の治安にも注意を払いましょう。
1-2.設備
■寄宿舎(シェアハウス)タイプの設備
共用部の清潔さや広さ、設備のメンテナンス状況をチェック。
入居者がストレスなく共同生活を送れるかがポイントです。
■共同住宅(アパート・マンション)タイプの設備
各住戸にキッチン・バス・トイレが備わっているか、床や壁の防音性能などを確認しましょう。
■インターネット環境
テレワークやオンライン会議が増えている現代では、回線速度やWi-Fi設備の有無が社員満足度に直結します。
2.貸主目線:企業に貸寮として貸し出すメリット・デメリット
企業に物件を一括で貸し出す場合、安定した契約が期待できますが、注意すべき点もあります。
2-1.メリット
■長期利用の可能性が高い
企業の社員寮として活用される場合、長期間にわたる契約が見込めます。空室リスクが低く、安定収益を得やすい点が魅力です。
■一括管理がしやすい
社員寮としてまとまった部屋数を借りてもらう場合、契約窓口が企業1社になるため、入居者ごとに契約条件を設定する手間が省けます。
■物件価値の維持・向上
きちんと管理が行われ、設備トラブルなどがあれば企業側が迅速に対応してくれることも多く、結果的に物件を良好な状態で保ちやすくなります。
2-2.デメリット
■設備の消耗度合いが大きい可能性
社員寮は多人数が出入りするため、共用部や設備の消耗が激しくなりやすいです。
定期的なメンテナンスや修繕費を見込んでおきましょう。
■入居者のモラルに左右される
大勢が暮らす環境では、騒音やゴミ出しなどのトラブルが起きやすいケースがあります。
企業との間でルールや管理方法を明確にしておくことが大切です。
■契約切れ時の影響が大きい
企業の方針変更やリストラなどで突然一括解約になるリスクもあります。
空室が一気に増えると収入が大きく減少するため、事前にリスク管理が必要です。
貸寮に関するFAQ
- Q1貸寮とは?
- A1
貸寮とは、企業や学校などの団体が従業員・学生向けに提供する寮形式の賃貸物件のことです。
一般的な賃貸物件とは異なり、一括借上げ契約(マスターリース)や団体向け契約が多く、長期契約が主流となります。
主な利用目的:
・企業寮 → 企業が社員や研修生向けに借りる宿泊施設
・学生寮 → 学校や教育機関が学生向けに提供する住居
・シェア寮 → 企業や団体が複数の従業員向けに借りる物件
契約の種類や管理体制が通常の賃貸と異なるため、事前に十分な確認が必要です。 - Q2貸寮を借りる際の流れは?
- A2
1.物件探し(不動産会社・法人向け物件専門業者に相談)
2.現地調査(立地・周辺環境・設備・用途地域の確認)
3.契約交渉・審査(企業の信用情報や入居予定人数の確認)
4.契約締結(重要事項説明を受け、契約を締結)
5.入居準備・管理体制の整備(清掃・管理人の配置・ルール設定など)
貸寮は長期利用が前提となるため、契約条件や管理方法を事前に明確にしておくことが重要です。 - Q3貸寮の借り方や種類は?
- A3
近年、集団生活の中でコミュニケーション育むといった観点から、企業において寮の役割が見直されてきています。
また、外国人研修生の増加や、欧米のシェアハウスという居住形態が注目を集めるといった潮流もあります。
弊社では様々なご要望のお客様から貸寮のお問い合わせをいただいております。
【借り方】
◆一括借り…貸寮として募集をしている物件を、建物一棟の全部、建物の一部、ワンフロアといった形で契約する方法です。福利厚生施設としての価値が高いです。
◆まとめ借り…複数の賃貸住宅(マンション、アパート等)をそれぞれ契約する方法です。同一建物内の各部屋または別々の建物の各部屋を必要戸数賃借します。必要な時に必要な戸数だけ借りられるというメリットがあります。
【種類】
◆ドミトリータイプ
トイレ、浴室、洗面所、キッチンといった設備が各部屋には備わっていません。
各設備は共用となり、食堂などが設けられます。管理人室を設置するのが一般的です。
個室と共用部を備えるという特徴から、用途変更をしてシェアハウスや各種福祉施設にするケースが増えてきています。
◆ワンルーム・1K・マンションタイプ
トイレ、浴室、洗面所、キッチンといった設備が各部屋に備わっています。通常の集合住宅と同様の設備、構造であり、賃貸マンションが新築時に一括貸寮として募集されることがあります。 - Q4貸寮の契約期間はどのくらい?
- A4
・企業寮・学生寮
3~5年の長期契約が一般的
・シェア寮・短期寮
1年未満の短期契約も可能(研修寮など)
途中解約の際の違約金や原状回復義務の条件を事前に確認しておくことが大切です。 - Q5貸寮の敷金・保証金の相場は?
- A5
敷金・保証金の目安
・賃料の3~6か月分
・企業や団体の信用力により、敷金が軽減されることもある
・長期契約(5年以上)の場合、保証金が高額になるケースも
契約時には、「敷金の返還条件(償却の有無)」を明確にしておきましょう。 - Q6貸寮の契約で特に注意すべきポイントは?
- A6
・契約形態の確認 → 一括借上げ or 転貸契約の可否
・入居者の管理責任 → 企業や学校がトラブル対応を行う場合がある
・原状回復義務の範囲 → 退去時の修繕義務(スケルトン戻しが必要か)
・共用設備の維持管理費 → 水道・電気・インターネット契約の方法
・防火・安全基準の適合 → 消防法に基づく設備の有無 - Q7貸寮の管理はどのように行うべき?
- A7
貸寮の管理方法には、自社管理と外部委託の2つの選択肢があります。
自社管理(企業・学校が直接管理)
・メリット
コスト削減・柔軟な対応が可能
・デメリット
運営負担が大きい
外部委託(管理会社に運営を任せる)
・メリット
専門業者によるスムーズな管理
・デメリット
管理費用が発生
寮の規模や入居者数に応じて、最適な管理体制を選択しましょう。 - Q8貸寮を退去する際の流れは?
- A8
1.解約通知を貸主へ提出(通常6か月~1年前)
2.退去計画の策定(入居者の移転先確保・スケジュール調整)
3.原状回復工事の実施(契約条件に基づく修繕)
4敷金・保証金の精算(修繕費用を差し引いた額が返還)
5.鍵の返却・正式な引き渡し
特に原状回復義務の範囲を事前に契約で確認しておくことが重要です。 - Q9貸寮の査定依頼の方法は?
- A9
当社の豊富な経験を活かして適正な査定を行います。
簡易査定
・まだ検討段階の方におすすめです。事業方針を決めるための大まかな参考資料としてご利用ください。
・机上調査のみのため、あくまで概算になります。
詳細査定
・事業方針の決定に向け、より正確な査定を希望される場合に最適です。
・現地調査や行政への確認、法令制限の調査などを行い、査定結果に反映させます。
査定方法やご不明点などは、担当スタッフまでお気軽にご相談ください。
お客様の状況に合わせ、フレキシブルに対応いたします。 - Q10外国人・外国法人であっても貸寮の取引をする事は可能ですか?
- A10
はい、法律上は外国人・外国法人であっても、日本人・日本法人と同様に貸寮のお取引をいただくことが可能です。
ただし、実務上、円滑にお取引を進めさせていただくためには、以下の点をご確認させていただいております。
■日本国内における法人格: 日本支社または子会社として、日本国内で法人登記がされていること。
■国内銀行口座: 日本国内の銀行口座をお持ちであること。
■国内での会計処理: 日本国内の会計基準に則った会計処理体制が整っていること。
■日本語でのコミュニケーション: お取引に関するコミュニケーションが日本語で円滑に行えること。
これらのご準備が整っている場合、よりスムーズなお取引が可能となります。
ご不明な点がございましたら、お気軽にお問い合わせください。
Under Japanese law, foreign nationals and foreign companies can conduct "dormitory for rent" transactions in the same manner as Japanese individuals and companies.
However, to ensure smooth transactions in practice, our company kindly asks you to confirm the following points.
These are important points for mutual peace of mind and to ensure that transactions proceed correctly.
What we would like you to confirm
■Are you registered as a company in Japan?
Is it registered with the Legal Affairs Bureau as a Japanese company?
■Do you have an account with a Japanese bank?
A Japanese bank account will be necessary.
■Are you prepared for accounting in Japan?
For example, this could mean having a contract with a Japanese tax accountant.
■Is communication in Japanese possible?
Can important discussions, such as confirming contract details, be conducted smoothly in Japanese?
If these preparations are in place, transactions will proceed much more smoothly.
If you have any unclear points or concerns, please feel free to contact us.
根据日本法律,外国人及外国法人与日本个人及法人同样可以进行“宿舍出租”。
但是,为了确保实际交易的顺利进行,请确认以下几点。
这些是确保双方安全、顺利进行交易的重要事项。
确认事项
贵公司是否已在日本注册?
是否已在日本法务局注册为日本公司。
贵公司是否在日本拥有银行账户?
需要日本的银行账户。
会计处理是否可以在日本进行?
例如,是否与日本的税务师签订了合同等。
是否可以用日语进行交流?
例如,确认合同内容等重要洽谈是否可以用日语顺利进行。
如果以上准备工作就绪,交易将会顺利进行。
如有不明之处,请随时垂询。


![多摩平 JR中央本線(東京~塩尻)[日野駅]の貸寮物件の詳細はこちら](/bukken_imgs/thumb/RBT35153-img1_big.jpg)
![百人町 JR中央・総武緩行線[大久保駅]の貸寮物件の詳細はこちら](/bukken_imgs/thumb/RBT35120-img1_big.jpg)
![大森南 京急空港線[大鳥居駅]の貸寮物件の詳細はこちら](/bukken_imgs/thumb/RBT35112-img1_big.jpg)
![八広 京成押上線[八広]の貸寮物件の詳細はこちら](/bukken_imgs/thumb/RBT35107-img1_big.jpg)
![三春台 京急本線[南太田駅]の貸寮物件の詳細はこちら](/bukken_imgs/thumb/RBK35100-img1_big.jpg)
![追浜東町 京急本線[追浜駅]の貸寮物件の詳細はこちら](/bukken_imgs/thumb/RBK35093-img1_big.jpg)
![西新井 日暮里・舎人ライナー[西新井大師西駅]の貸寮物件の詳細はこちら](/bukken_imgs/thumb/RBT34978-img1_big.jpg)
![金町 JR常磐線(上野~取手)[金町駅]の貸寮物件の詳細はこちら](/bukken_imgs/thumb/RBT34977-img1_big.jpg)
![西青木 JR京浜東北線[西川口駅]の貸寮物件の詳細はこちら](/bukken_imgs/thumb/RBS34973-img1_big.jpg)
![細田 京成本線[京成高砂駅]の貸寮物件の詳細はこちら](/bukken_imgs/thumb/RBT34972-img1_big.jpg)
![新松戸 JR武蔵野線[新松戸駅]の貸寮物件の詳細はこちら](/bukken_imgs/thumb/RBC28902-img1_big.jpg)
![東駒形 都営浅草線[本所吾妻橋駅]の貸寮物件の詳細はこちら](/bukken_imgs/thumb/RBT34893-img1_big.jpg)
![清水が丘 京王線[東府中駅]の貸寮物件の詳細はこちら](/bukken_imgs/thumb/RBT34800-img1_big.jpg)
![中葛西 東京メトロ東西線[葛西駅]の貸寮物件の詳細はこちら](/bukken_imgs/thumb/_big.jpg)
![東寺尾東台 京急本線[生麦駅]の貸寮物件の詳細はこちら](/bukken_imgs/thumb/RBK34682-img1_big.jpg)
![本町 JR埼京線[戸田公園駅]の貸寮物件の詳細はこちら](/bukken_imgs/thumb/RBS34681-img1_big.jpg)
![上粕屋 小田急小田原線[伊勢原駅]の貸寮物件の詳細はこちら](/bukken_imgs/thumb/RBK30069-img1_big.jpg)
![大久保 JR山手線[新大久保駅]の貸寮物件の詳細はこちら](/bukken_imgs/thumb/RBT31418-img1_big.jpg)
![若松町 JR東海道本線(東京~熱海)[茅ケ崎駅]の貸寮物件の詳細はこちら](/bukken_imgs/thumb/RBK34607-img1_big.jpg)
![山手町 JR根岸線[石川町駅]の貸寮物件の詳細はこちら](/bukken_imgs/thumb/RBK34602-img1_big.jpg)
![高石 小田急小田原線[読売ランド前駅]の貸寮物件の詳細はこちら](/bukken_imgs/thumb/RBK34487-img1_big.jpg)
![谷津 京成本線[谷津駅]の貸寮物件の詳細はこちら](/bukken_imgs/thumb/RBC34472-img1_big.jpg)
![栗原 西武池袋線[ひばりヶ丘駅]の貸寮物件の詳細はこちら](/bukken_imgs/thumb/RBS32367-img1_big.jpg)
![平塚 埼玉新都市交通伊奈線[志久駅]の貸寮物件の詳細はこちら](/bukken_imgs/thumb/RBS34317-img1_big.jpg)
![上花輪新町 東武野田線[野田市駅]の貸寮物件の詳細はこちら](/bukken_imgs/thumb/RBC34297-img1_big.jpg)
![上鶴間本町 小田急小田原線[相模大野駅]の貸寮物件の詳細はこちら](/bukken_imgs/thumb/RBK22296-img1_big.jpg)
![中野 JR武蔵野線[吉川駅]の貸寮物件の詳細はこちら](/bukken_imgs/thumb/RBS34191-img1_big.jpg)
![錦町 JR南武線[西国立駅]の貸寮物件の詳細はこちら](/bukken_imgs/thumb/RBT34150-img1_big.jpg)
![瀬谷 相鉄本線[瀬谷駅]の貸寮物件の詳細はこちら](/bukken_imgs/thumb/RBK24612-img1_big.jpg)
![浦島町 京急本線[神奈川新町駅]の貸寮物件の詳細はこちら](/bukken_imgs/thumb/RBK33965-img1_big.jpg)
![古川町 JR南武線[鹿島田駅]の貸寮物件の詳細はこちら](/bukken_imgs/thumb/RBK33949-img1_big.jpg)
![多摩平 JR中央本線(東京~塩尻)[日野駅]の貸寮物件の詳細はこちら](/bukken_imgs/thumb/RBT33928-img1_big.jpg)
![滝頭 横浜市高速鉄道1号線・3号線[蒔田駅]の貸寮物件の詳細はこちら](/bukken_imgs/thumb/RBK33856-img1_big.jpg)
![東中野 JR中央・総武緩行線[東中野駅]の貸寮物件の詳細はこちら](/bukken_imgs/thumb/RBT33737-img1_big.jpg)
![東中野 JR中央・総武緩行線[東中野駅]の貸寮物件の詳細はこちら](/bukken_imgs/thumb/RBT33736-img1_big.jpg)
![児玉町秋山 JR八高線(高麗川~高崎)[児玉駅]の貸寮物件の詳細はこちら](/bukken_imgs/thumb/RBS33583-img1_big.jpg)
![白糸台 京王線[武蔵野台駅]の貸寮物件の詳細はこちら](/bukken_imgs/thumb/RBT33546-img1_big.jpg)
![東野 JR高崎線[鴻巣駅]の貸寮物件の詳細はこちら](/bukken_imgs/thumb/RBS33545-img1_big.jpg)
![瀬谷 相鉄本線[瀬谷駅]の貸寮物件の詳細はこちら](/bukken_imgs/thumb/RBK33511-img1_big.jpg)
![前野町 都営三田線[志村三丁目駅]の貸寮物件の詳細はこちら](/bukken_imgs/thumb/RBT33489-img1_big.jpg)
![駒場 京王井の頭線[駒場東大前駅]の貸寮物件の詳細はこちら](/bukken_imgs/thumb/RBT33461-img1_big.jpg)
![小島町 京王線[調布駅]の貸寮物件の詳細はこちら](/bukken_imgs/thumb/RBT32442-img1_big.jpg)
![上清戸 西武池袋線[清瀬駅]の貸寮物件の詳細はこちら](/bukken_imgs/thumb/RBT33148-img1_big.jpg)
![瀬谷 相鉄本線[瀬谷駅]の貸寮物件の詳細はこちら](/bukken_imgs/thumb/RBK32981-img1_big.jpg)
![本町 JR埼京線[戸田公園駅]の貸寮物件の詳細はこちら](/bukken_imgs/thumb/RBS32790-img1_big.jpg)
![瀬谷 相鉄本線[瀬谷駅]の貸寮物件の詳細はこちら](/bukken_imgs/thumb/RBK32395-img1_big.jpg)
![小机町 JR横浜線[小机駅]の貸寮物件の詳細はこちら](/bukken_imgs/thumb/RBK09127-img1_big.jpg)
![村田町 JR内房線[浜野駅]の貸寮物件の詳細はこちら](/bukken_imgs/thumb/RBC31912-img1_big.jpg)
![岡沢町 横浜市高速鉄道1号線・3号線[三ツ沢上町駅]の貸寮物件の詳細はこちら](/bukken_imgs/thumb/RBK31641-img1_big.jpg)
![市沢町 相鉄本線[星川駅]の貸寮物件の詳細はこちら](/bukken_imgs/thumb/RBK30208-img1_big.jpg)
![JR八高線(八王子~高麗川)[箱根ケ崎駅]の貸寮物件の詳細はこちら](/bukken_imgs/thumb/_big_s.jpg)




