貸工場・貸倉庫
貸工場・貸倉庫の公開物件を検索する
お探しのエリアを選択して「物件を検索する」ボタンを押してください。選択した検索条件でお問い合わせも可能です。
「貸工場・貸倉庫を貸したい」とお考えの方へ - 無料査定・管理キャンペーンのお知らせ!-
■ 査定方法は2種類
査定方法やご不明点などは、担当スタッフまでお気軽にご相談ください。
お客様の状況に合わせ、フレキシブルに対応いたします。
- 簡易査定
現地確認や打ち合わせを行わず、データなどをもとに査定額を算出します。
最短で即日回答が可能です! - 詳細査定
現地確認と打ち合わせを行い、より精度の高い調査をもとに査定額を算出します。
正確な査定をご希望の方におすすめです。
■ 賃貸借管理サービス
賃料の徴収やトラブル対応、更新・再契約手続き、退去時立会い、敷金精算など、
貸主さまに代わって一連の業務をサポートいたします。
■ リアルタイムで管理状況を報告
募集活動や管理業務の状況などを、できる限りリアルタイムでご報告。
日々の進捗はもちろん、現場や打ち合わせ時なども電話・メール・LINEで随時ご連絡可能です。
まずはお気軽にお問い合わせください!
首都圏の貸工場・貸倉庫ガイド
首都圏の工場・倉庫エリアの特徴・魅力
■工場エリアの分布や主要な規模
首都圏では、地域によって工場・倉庫の規模や用途に違いが見られます。
- 東京都:湾岸部には大型物流施設が集中し、多摩地域には中小規模の工場が点在しています。
- 神奈川県:川崎・横浜の臨海部には大規模工業地帯が広がり、相模原など内陸部では中小企業向けの工場が多く見られます。
- 埼玉県:平地が広く、首都高速や圏央道沿線に中規模~大規模の倉庫・工場が発展しています。
- 千葉県(都内寄り):市川・船橋・柏周辺に物流施設が集積し、首都圏と関東各地を結ぶ配送拠点の役割を担っています。
■産業クラスターが形成されている地域の概要
首都圏には、分野ごとに特化した産業クラスターが見られます。
- 京浜工業地帯(東京・川崎・横浜):重化学工業や自動車関連産業の集積地。
- 多摩地域(東京都西部):電子機器・精密機械関連の中小製造業が集まるエリア。
- 埼玉・千葉の物流拠点:EC関連物流や食品・医薬品の倉庫機能が強化されています。
■用途地域や工場立地における規制・特徴
首都圏では、土地利用に関する規制が細かく設定されています。
- 工業専用地域:製造業専用地であり、住宅や店舗の建設は禁止。
- 工業地域・準工業地域:中小規模の工場や、作業場と住居が混在する用途にも対応可能。
用途区分だけでなく、建蔽率・容積率、防災・環境基準なども確認が必要です。
首都圏の貸工場・貸倉庫の需要と供給
■首都圏における貸工場・貸倉庫の市場動向
- 貸工場:国内生産回帰の動きにより、都心アクセスや幹線道路沿いの工場需要が堅調。
- 貸倉庫:EC需要の拡大により、大型~中小型倉庫まで広範なニーズが存在。人気エリアでは賃料上昇傾向。
今後の市場動向の簡単な展望
■今後の首都圏における工場・倉庫需要の見通し
- 物流インフラの整備により、郊外拠点の需要拡大が期待。
- 生産拠点の分散化で、小型~中型工場の需要も継続。
- 省力化・自動化施設へのニーズ増加。
■企業が貸工場・貸倉庫を検討する際に着目すべきポイント
- 経営者視点:初期・維持コストを総合的に試算し、拡張性も考慮。
- 従業員視点:通勤の利便性、職場環境、安全性をチェック。
- 地域社会視点:騒音・交通影響への配慮、災害リスク対策、地域との良好な関係構築。
| 地域 | 公開物件 | 取扱物件 |
|---|---|---|
| 東京都 | 226 | 829 |
| 神奈川県 | 226 | 573 |
| 埼玉県 | 431 | 581 |
| 千葉県 | 112 | 153 |
| 合計 | 995 | 2,136 |
ホームページに公開されている物件以外にも多数取り扱い物件がございます。
オーナー様が掲載をご希望されていない物件や経済条件が決定されていない物件などは掲載されません。
非公開物件からの提案、新着物件からの随時提案については、担当の営業スタッフが、お客様の業種・用途・ご要望などに応じて個別に行なっております。
非公開物件に関するお問い合わせはこちらから
貸工場・貸倉庫の新着情報
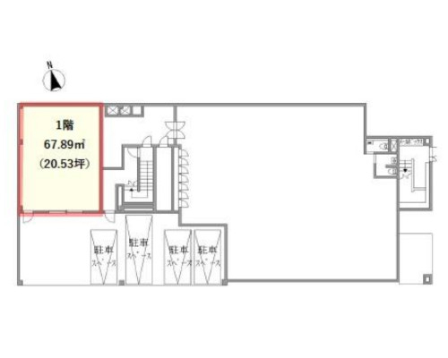
【RBK21813】高座郡寒川町の貸工場・貸倉庫 | 最寄駅はJR相模線「倉見駅」です。
鉄骨造平屋建て
| 最寄駅 所在地 |
JR相模線「倉見駅」徒歩20分 神奈川県高座郡寒川町倉見 |
|---|---|
| 賃料 | 170,000円礼 1ヶ月 / 敷 3ヶ月 |
| 建物面積 | 102.47㎡ (31.00坪) |
| 種別 | 貸工場・貸倉庫 |
| おすすめポイント |
|
【RBS27970】川口市の貸工場・貸倉庫 | 最寄駅は埼玉高速鉄道「川口元郷駅」です。
鉄骨造平屋建て
| 最寄駅 所在地 |
埼玉高速鉄道「川口元郷駅」バス10分バス停徒歩1分 埼玉県川口市弥平 |
|---|---|
| 賃料 | 572,000円礼 2ヶ月 / 敷 2ヶ月 |
| 建物面積 | 259.00㎡ (78.34坪) |
| 種別 | 貸工場・貸倉庫 |
| おすすめポイント |
|
【RBS35241】川越市の貸工場・貸倉庫 | 最寄駅はJR埼京線「南古谷駅」です。
鉄骨造平屋建て
| 最寄駅 所在地 |
JR埼京線「南古谷駅」約1.5km 埼玉県川越市南田島 |
|---|---|
| 賃料 | 209,000円礼 2ヶ月 / 敷 4ヶ月 |
| 建物面積 | 149.00㎡ (45.07坪) |
| 種別 | 貸工場・貸倉庫 |
| おすすめポイント |
|
【RBS35239】朝霞市の貸工場・貸倉庫 | 最寄駅は東武東上線「朝霞台駅」です。
B棟:鉄骨造平屋建て約305.38坪 事務所:2階建て約30坪
| 最寄駅 所在地 |
東武東上線「朝霞台駅」徒歩27分 埼玉県朝霞市泉水 |
|---|---|
| 賃料 | 2,310,000円礼 1ヶ月 / 敷 4ヶ月 |
| 建物面積 | 1,009.55㎡ (305.38坪) |
| 種別 | 貸工場・貸倉庫 |
| おすすめポイント |
|
【RBS35238】朝霞市の貸工場・貸倉庫 | 最寄駅は東武東上線「朝霞台駅」です。
A棟:鉄骨造2階建て約416.46坪 事務所:2階建て約30坪
| 最寄駅 所在地 |
東武東上線「朝霞台駅」徒歩27分 埼玉県朝霞市泉水 |
|---|---|
| 賃料 | 1,760,000円礼 1ヶ月 / 敷 4ヶ月 |
| 建物面積 | 1,376.58㎡ (416.41坪) |
| 種別 | 貸工場・貸倉庫 |
| おすすめポイント |
|
【RBS35237】川口市の貸倉庫 | 最寄駅は埼玉高速鉄道線「鳩ヶ谷駅」です。
鉄骨造2階建て
| 最寄駅 所在地 |
埼玉高速鉄道線「鳩ヶ谷駅」徒歩17分 埼玉県川口市赤井 |
|---|---|
| 賃料 | 418,000円礼 1ヶ月 / 敷 2ヶ月 |
| 建物面積 | 325.22㎡ (98.37坪) |
| 種別 | 貸倉庫 |
| おすすめポイント |
|
【RBK35236】厚木市の貸倉庫 | 最寄駅は小田急小田原線「本厚木駅」です。
鉄骨造2階建て
| 最寄駅 所在地 |
小田急小田原線「本厚木駅」徒歩33分 神奈川県厚木市岡田 |
|---|---|
| 賃料 | 3,520,000円礼 1ヶ月 / 敷 3ヶ月 |
| 建物面積 | 1,604.42㎡ (485.33坪) |
| 種別 | 貸倉庫 |
| おすすめポイント |
|
【RBS35235】朝霞市の貸工場・貸倉庫 | 最寄駅は東武東上線「朝霞台駅」です。
A棟:2階建て416.46坪 B棟:平屋建て305.38坪 事務所:2階建て30坪
| 最寄駅 所在地 |
東武東上線「朝霞台駅」徒歩27分 埼玉県朝霞市泉水 |
|---|---|
| 賃料 | 3,850,000円礼 1ヶ月 / 敷 4ヶ月 |
| 建物面積 | 2,386.13㎡ (721.80坪) |
| 種別 | 貸工場・貸倉庫 |
| おすすめポイント |
|
【RBK31256】横浜市旭区の貸倉庫 | 最寄駅は相鉄本線「鶴ヶ峰駅」です。
鉄筋コンクリート造4階建て1階部分
| 最寄駅 所在地 |
相鉄本線「鶴ヶ峰駅」徒歩8分 神奈川県横浜市旭区白根 |
|---|---|
| 賃料 | 300,000円礼 1ヶ月 / 保 3ヶ月 |
| 建物面積 | 166.20㎡ (50.27坪) |
| 種別 | 貸倉庫 |
| おすすめポイント |
|
【RBS23449】加須市の貸倉庫 | 最寄駅は東武伊勢崎線「花崎駅」です。
鉄骨造平屋建て 倉庫:270坪 事務所:6坪
| 最寄駅 所在地 |
東武伊勢崎線「花崎駅」徒歩8分 埼玉県加須市花崎 |
|---|---|
| 賃料 | 1,062,600円礼 1ヶ月 / 保 4ヶ月 |
| 建物面積 | 912.81㎡ (276.12坪) |
| 種別 | 貸倉庫 |
| おすすめポイント |
|
【RBS27377】八潮市の貸倉庫 | 最寄駅は首都圏新都市鉄道つくばエクスプレス「八潮駅」です。
鉄骨造平屋建て 1階:132.25坪 中2階:85.66坪 事務所4.91坪
| 最寄駅 所在地 |
首都圏新都市鉄道つくばエクスプレス「八潮駅」徒歩19分 埼玉県八潮市八潮 |
|---|---|
| 賃料 | 1,102,900円礼 1ヶ月 / 保 4ヶ月 |
| 建物面積 | 736.66㎡ (222.83坪) |
| 種別 | 貸倉庫 |
| おすすめポイント |
|
【RBC35232】千葉市稲毛区の貸工場・貸倉庫 | 最寄駅は千葉都市モノレール2号線「スポーツセンター駅」です。
鉄骨造平屋建て
| 最寄駅 所在地 |
千葉都市モノレール2号線「スポーツセンター駅」徒歩30分 千葉県千葉市稲毛区長沼町 |
|---|---|
| 賃料 | 352,000円礼 1ヶ月 / 敷 3ヶ月 |
| 建物面積 | 282.72㎡ (85.52坪) |
| 種別 | 貸工場・貸倉庫 |
| おすすめポイント |
|
【RBC35231】千葉市若葉区の貸倉庫 | 最寄駅はJR外房線「土気駅」です。
鉄骨造平屋建て
| 最寄駅 所在地 |
JR外房線「土気駅」約5km 千葉県千葉市若葉区中野町 |
|---|---|
| 賃料 | 434,500円礼 1ヶ月 / 敷 3ヶ月 |
| 建物面積 | 295.51㎡ (89.39坪) |
| 種別 | 貸倉庫 |
| おすすめポイント |
|
【RBS35230】草加市の貸倉庫 | 最寄駅は東武伊勢崎線「谷塚駅」です。
鉄骨造2階建て 1階:17.09坪 2階:19.32坪
| 最寄駅 所在地 |
東武伊勢崎線「谷塚駅」徒歩3分 埼玉県草加市谷塚 |
|---|---|
| 賃料 | 250,000円礼 1ヶ月 / 敷 1ヶ月 |
| 建物面積 | 120.40㎡ (36.42坪) |
| 種別 | 貸倉庫 |
| おすすめポイント |
|
【RBK06822】伊勢原市の貸工場・貸倉庫 | 最寄駅は小田急小田原線「伊勢原駅」です。
鉄骨造平屋建て
| 最寄駅 所在地 |
小田急小田原線「伊勢原駅」約2.1km 神奈川県伊勢原市白根 |
|---|---|
| 賃料 | 1,056,330円礼 1ヶ月 / 敷 4ヶ月 |
| 建物面積 | 705.47㎡ (213.40坪) |
| 種別 | 貸工場・貸倉庫 |
| おすすめポイント |
|
【RBK23374】相模原市緑区の貸工場・貸倉庫 | 最寄駅は京王相模原線「橋本駅」です。
鉄骨造平家建て
| 最寄駅 所在地 |
京王相模原線「橋本駅」徒歩17分 神奈川県相模原市緑区西橋本 |
|---|---|
| 賃料 | 1,250,000円礼 なし / 敷 6ヶ月 |
| 建物面積 | 498.86㎡ (150.90坪) |
| 種別 | 貸工場・貸倉庫 |
| おすすめポイント |
|
【RBC35216】千葉市花見川区の貸倉庫 | 最寄駅はJR総武本線「四街道駅」です。
鉄骨・木造平屋建て
| 最寄駅 所在地 |
JR総武本線「四街道駅」約3.2km 千葉県千葉市花見川区宇那谷町 |
|---|---|
| 賃料 | 605,000円礼 1,100,000円 / 敷 1,100,000円 |
| 建物面積 | 446.30㎡ (135.00坪) |
| 種別 | 貸倉庫 |
| おすすめポイント |
|
【RBS31273】所沢市の貸倉庫 | 最寄駅はJR武蔵野線「東所沢駅」です。
鉄骨造2階建て
| 最寄駅 所在地 |
JR武蔵野線「東所沢駅」約2.5km 埼玉県所沢市亀ケ谷 |
|---|---|
| 賃料 | 242,000円礼 2ヶ月 / 敷 4ヶ月 |
| 建物面積 | 224.00㎡ (67.75坪) |
| 種別 | 貸倉庫 |
| おすすめポイント |
|
【RBT35204】目黒区の貸倉庫 | 最寄駅は東急東横線「学芸大学駅」です。
鉄骨鉄筋コンクリート造2階建て地下1階1階部分
| 最寄駅 所在地 |
東急東横線「学芸大学駅」徒歩4分 東京都目黒区鷹番 |
|---|---|
| 賃料 | 385,000円礼 1ヶ月 / 敷 3ヶ月 |
| 建物面積 | 135.00㎡ (40.83坪) |
| 種別 | 貸倉庫 |
| おすすめポイント |
|
【RBS35200】草加市の貸工場・貸倉庫 | 最寄駅は東武伊勢崎線「獨協大学前〈草加松原〉駅」です。
重量鉄骨造2階建て 1階:148坪 2階:148坪
| 最寄駅 所在地 |
東武伊勢崎線「獨協大学前〈草加松原〉駅」徒歩25分 埼玉県草加市弁天 |
|---|---|
| 賃料 | 1,628,000円礼 1ヶ月 / 保 4ヶ月 |
| 建物面積 | 978.51㎡ (296.00坪) |
| 種別 | 貸工場・貸倉庫 |
| おすすめポイント |
|
【RBC19840】白井市の貸倉庫 | 最寄駅は北総鉄道北総線「白井駅」です。
鉄骨造2階建て 1階:約120.04坪 2階:約115.1坪
| 最寄駅 所在地 |
北総鉄道北総線「白井駅」1.9km 千葉県白井市復 |
|---|---|
| 賃料 | 485,000円礼 1ヶ月 / 敷 3ヶ月 |
| 建物面積 | 777.36㎡ (235.15坪) |
| 種別 | 貸倉庫 |
| おすすめポイント |
|
【RBK35199】厚木市の貸倉庫 | 最寄駅は小田急小田原線「本厚木駅」です。
鉄骨造2階建て
| 最寄駅 所在地 |
小田急小田原線「本厚木駅」徒歩20分 神奈川県厚木市岡田 |
|---|---|
| 賃料 | 132,000円礼 1ヶ月 / 敷 1ヶ月 |
| 建物面積 | 34.71㎡ (10.49坪) |
| 種別 | 貸倉庫 |
| おすすめポイント |
|
【RBS35198】三郷市の貸倉庫 | 最寄駅は首都圏新都市鉄道つくばエクスプレス「三郷中央駅」です。
重量鉄骨造平屋建て倉庫2棟 A:170坪 B:209坪 2階建て事務所:各階45坪
| 最寄駅 所在地 |
首都圏新都市鉄道つくばエクスプレス「三郷中央駅」徒歩38分 埼玉県三郷市彦沢 |
|---|---|
| 賃料 | 2,837,450円礼 1ヶ月 / 保 4ヶ月 |
| 建物面積 | 1,550.41㎡ (469.00坪) |
| 種別 | 貸倉庫 |
| おすすめポイント |
|
【RBS18258】越谷市の貸倉庫 | 最寄駅は東武伊勢崎線「北越谷駅」です。
鉄骨造平屋建て
| 最寄駅 所在地 |
東武伊勢崎線「北越谷駅」徒歩26分 埼玉県越谷市西新井 |
|---|---|
| 賃料 | 250,000円礼 1ヶ月 / 敷 2ヶ月 |
| 建物面積 | 246.00㎡ (74.41坪) |
| 種別 | 貸倉庫 |
| おすすめポイント |
|
【RBT35186】荒川区の貸倉庫 | 最寄駅はJR常磐線(上野~取手)「三河島駅」です。
3階建て
| 最寄駅 所在地 |
JR常磐線(上野~取手)「三河島駅」徒歩9分 東京都荒川区東日暮里 |
|---|---|
| 賃料 | 407,000円礼 1ヶ月 / 保 6ヶ月 |
| 建物面積 | 125.60㎡ (37.99坪) |
| 種別 | 貸倉庫 |
| おすすめポイント |
|
【RBS35184】本庄市の貸倉庫 | 最寄駅はJR八高線(高麗川~高崎)「児玉駅」です。
鉄骨造2階建て
| 最寄駅 所在地 |
JR八高線(高麗川~高崎)「児玉駅」徒歩11分 埼玉県本庄市児玉町児玉 |
|---|---|
| 賃料 | 473,000円礼 なし / 敷 1ヶ月 |
| 建物面積 | 1,201.00㎡ (363.30坪) |
| 種別 | 貸倉庫 |
| おすすめポイント |
|
【RBS35175】白岡市の貸倉庫 | 最寄駅はJR東北本線「白岡駅」です。
鉄骨造平屋建て
| 最寄駅 所在地 |
JR東北本線「白岡駅」徒歩25分 埼玉県白岡市西 |
|---|---|
| 賃料 | 330,000円礼 なし / 敷 3ヶ月 |
| 建物面積 | 246.40㎡ (74.53坪) |
| 種別 | 貸倉庫 |
| おすすめポイント |
|
【RBS28696】白岡市の貸倉庫 | 最寄駅は東武伊勢崎線「東武動物公園駅」です。
鉄骨造2階建て 1階118.3坪 2階112坪
| 最寄駅 所在地 |
東武伊勢崎線「東武動物公園駅」3.5km 埼玉県白岡市太田新井 |
|---|---|
| 賃料 | 429,000円礼 1ヶ月 / 敷 3ヶ月 |
| 建物面積 | 761.66㎡ (230.40坪) |
| 種別 | 貸倉庫 |
| おすすめポイント |
|
【RBK35171】川崎市宮前区の貸倉庫 | 最寄駅は東急田園都市線「鷺沼駅」です。
重量鉄骨造3階建て1階部分
| 最寄駅 所在地 |
東急田園都市線「鷺沼駅」バス10分バス停徒歩2分 神奈川県川崎市宮前区東有馬 |
|---|---|
| 賃料 | 110,000円礼 2ヶ月 / 敷 3ヶ月 |
| 建物面積 | 60.00㎡ (18.14坪) |
| 種別 | 貸倉庫 |
| おすすめポイント |
|
【RBS35167】鴻巣市の貸工場・貸倉庫 | 最寄駅はJR高崎線「鴻巣駅」です。
鉄骨造平屋建て
| 最寄駅 所在地 |
JR高崎線「鴻巣駅」約6.6km 埼玉県鴻巣市広田 |
|---|---|
| 賃料 | 539,000円礼 1ヶ月 / 敷 2ヶ月 |
| 建物面積 | 548.00㎡ (165.77坪) |
| 種別 | 貸工場・貸倉庫 |
| おすすめポイント |
|
【RBC35165】千葉市花見川区の貸工場・貸倉庫 | 最寄駅は京成本線「八千代台駅」です。
鉄骨造3階建て
| 最寄駅 所在地 |
京成本線「八千代台駅」約3km 千葉県千葉市花見川区犢橋町 |
|---|---|
| 賃料 | 3,850,000円礼 1ヶ月 / 敷 3ヶ月 |
| 建物面積 | 1,873.16㎡ (566.63坪) |
| 種別 | 貸工場・貸倉庫 |
| おすすめポイント |
|
【RBS35164】所沢市の貸倉庫 | 最寄駅はJR武蔵野線「東所沢駅」です。
鉄骨造2階建て
| 最寄駅 所在地 |
JR武蔵野線「東所沢駅」約3.8km 埼玉県所沢市南永井 |
|---|---|
| 賃料 | 1,210,000円礼 1ヶ月 / 敷 4ヶ月 |
| 建物面積 | 1,689.58㎡ (511.09坪) |
| 種別 | 貸倉庫 |
| おすすめポイント |
|
【RBK35160】高座郡寒川町の貸倉庫 | 最寄駅はJR相模線「倉見駅」です。
鉄骨造平屋建て 5号247.74坪 6号247.74坪 7号171.51坪
| 最寄駅 所在地 |
JR相模線「倉見駅」約1.6km 神奈川県高座郡寒川町倉見 |
|---|---|
| 賃料 | 3,668,445円礼 1ヶ月 / 敷 4ヶ月 |
| 建物面積 | 2,204.92㎡ (666.98坪) |
| 種別 | 貸倉庫 |
| おすすめポイント |
|
【RBK35159】海老名市の貸倉庫 | 最寄駅はJR相模線「門沢橋駅」です。
鉄骨造平屋建て
| 最寄駅 所在地 |
JR相模線「門沢橋駅」徒歩12分 神奈川県海老名市門沢橋 |
|---|---|
| 賃料 | 561,500円礼 1ヶ月 / 敷 4ヶ月 |
| 建物面積 | 337.50㎡ (102.09坪) |
| 種別 | 貸倉庫 |
| おすすめポイント |
|
【RBK09848】大和市の貸工場・貸倉庫 | 最寄駅は小田急江ノ島線「桜ヶ丘駅」です。
軽量鉄骨造2階建て 1階15.14坪 2階10.64坪
| 最寄駅 所在地 |
小田急江ノ島線「桜ヶ丘駅」徒歩14分 神奈川県大和市代官 |
|---|---|
| 賃料 | 187,000円礼 2ヶ月 / 敷 3ヶ月 |
| 建物面積 | 85.21㎡ (25.77坪) |
| 種別 | 貸工場・貸倉庫 |
| おすすめポイント |
|
【RBT35155】八王子市の貸倉庫 | 最寄駅はJR中央本線(東京~塩尻)「八王子駅」です。
①鉄筋コンクリート造2階建て ②鉄骨・軽量鉄骨造2階建て ③鉄骨造2階建て
| 最寄駅 所在地 |
JR中央本線(東京~塩尻)「八王子駅」バス22分バス停徒歩2分 東京都八王子市戸吹町 |
|---|---|
| 賃料 | 550,000円礼 1ヶ月 / 敷 3ヶ月 |
| 建物面積 | 596.19㎡ (180.34坪) |
| 種別 | 貸倉庫 |
| おすすめポイント |
|
【RBT35151】江戸川区の貸工場・貸倉庫 | 最寄駅はJR中央・総武緩行線「新小岩駅」です。
鉄骨鉄筋コンクリート造7階建て1階部分
| 最寄駅 所在地 |
JR中央・総武緩行線「新小岩駅」徒歩18分 東京都江戸川区中央 |
|---|---|
| 賃料 | 407,000円礼 2ヶ月 / 保 5ヶ月 |
| 建物面積 | 151.00㎡ (45.67坪) |
| 種別 | 貸工場・貸倉庫 |
| おすすめポイント |
|
【RBC35150】船橋市の貸倉庫 | 最寄駅はJR京葉線「二俣新町駅」です。
軽量鉄骨造2階建て
| 最寄駅 所在地 |
JR京葉線「二俣新町駅」徒歩20分 千葉県船橋市栄町 |
|---|---|
| 賃料 | 250,000円礼 2ヶ月 / 敷 3ヶ月 |
| 建物面積 | 100.00㎡ (30.25坪) |
| 種別 | 貸倉庫 |
| おすすめポイント |
|
【RBS19392】日高市の貸工場・貸倉庫 | 最寄駅はJR川越線「高麗川駅」です。
鉄骨造平屋建て
| 最寄駅 所在地 |
JR川越線「高麗川駅」徒歩18分 埼玉県日高市新堀新田 |
|---|---|
| 賃料 | 3,300,000円礼 1ヶ月 / 敷 4ヶ月 |
| 建物面積 | 2,321.95㎡ (702.38坪) |
| 種別 | 貸工場・貸倉庫 |
| おすすめポイント |
|
【RBS20783】所沢市の貸倉庫 | 最寄駅は西武池袋線「狭山ヶ丘駅」です。
木造平屋建て
| 最寄駅 所在地 |
西武池袋線「狭山ヶ丘駅」徒歩15分 埼玉県所沢市西狭山ケ丘 |
|---|---|
| 賃料 | 308,000円礼 1ヶ月 / 敷 2ヶ月 |
| 建物面積 | 314.00㎡ (94.98坪) |
| 種別 | 貸倉庫 |
| おすすめポイント |
|
【RBK09580】横浜市旭区の貸倉庫 | 最寄駅は相鉄いずみ野線「南万騎が原駅」です。
鉄骨造平屋建て2棟 倉庫①102.2坪 倉庫②30.59坪
| 最寄駅 所在地 |
相鉄いずみ野線「南万騎が原駅」徒歩14分 神奈川県横浜市旭区善部町 |
|---|---|
| 賃料 | 1,320,000円礼 2ヶ月 / 敷 4ヶ月 |
| 建物面積 | 439.00㎡ (132.79坪) |
| 種別 | 貸倉庫 |
| おすすめポイント |
|
【RBT08497】江戸川区の貸倉庫 | 最寄駅は都営新宿線「篠崎駅」です。
重量鉄骨造2階建て1階部分 倉庫約49.68坪 事務所約3.34坪
| 最寄駅 所在地 |
都営新宿線「篠崎駅」徒歩12分 東京都江戸川区篠崎町 |
|---|---|
| 賃料 | 660,000円礼 1ヶ月 / 保 3ヶ月 |
| 建物面積 | 175.32㎡ (53.03坪) |
| 種別 | 貸倉庫 |
| おすすめポイント |
|
【RBK35147】横浜市泉区の貸倉庫 | 最寄駅は相鉄いずみ野線「緑園都市駅」です。
鉄骨造2階建て1階部分
| 最寄駅 所在地 |
相鉄いずみ野線「緑園都市駅」徒歩23分 神奈川県横浜市泉区岡津町 |
|---|---|
| 賃料 | 149,000円礼 1ヶ月 / 敷 4ヶ月 |
| 建物面積 | 39.75㎡ (12.02坪) |
| 種別 | 貸倉庫 |
| おすすめポイント |
|
【RBC35145】千葉市花見川区の貸倉庫 | 最寄駅は京成本線「八千代台駅」です。
作業所:軽量鉄骨造2階建て約227.31坪 倉庫:軽量鉄骨造平屋建て約50.1坪
| 最寄駅 所在地 |
京成本線「八千代台駅」徒歩27分 千葉県千葉市花見川区柏井町 |
|---|---|
| 賃料 | 2,200,000円礼 1ヶ月 / 保 3ヶ月 |
| 建物面積 | 917.07㎡ (277.41坪) |
| 種別 | 貸倉庫 |
| おすすめポイント |
|
【RBS35131】吉川市の貸工場・貸倉庫 | 最寄駅はJR武蔵野線「吉川駅」です。
鉄骨造2階建てA棟:約344坪 鉄骨造3階建てB棟:511.11坪
| 最寄駅 所在地 |
JR武蔵野線「吉川駅」徒歩34分 埼玉県吉川市中井 |
|---|---|
| 賃料 | 1,650,000円礼 1ヶ月 / 敷 2ヶ月 |
| 建物面積 | 2,826.81㎡ (855.11坪) |
| 種別 | 貸工場・貸倉庫 |
| おすすめポイント |
|
【RBT35130】江戸川区の貸工場・貸倉庫 | 最寄駅はJR中央・総武緩行線「新小岩駅」です。
鉄骨木造2階建て1階部分 A
| 最寄駅 所在地 |
JR中央・総武緩行線「新小岩駅」徒歩18分 東京都江戸川区中央 |
|---|---|
| 賃料 | 473,000円礼 2ヶ月 / 保 5ヶ月 |
| 建物面積 | 198.19㎡ (59.95坪) |
| 種別 | 貸工場・貸倉庫 |
| おすすめポイント |
|
【RBK35129】相模原市緑区の貸倉庫 | 最寄駅はJR中央本線(東京~塩尻)「相模湖駅」です。
木造2階建て
| 最寄駅 所在地 |
JR中央本線(東京~塩尻)「相模湖駅」バス9分バス停徒歩3分 神奈川県相模原市緑区若柳 |
|---|---|
| 賃料 | 158,000円礼 なし / 相談(2ヶ月~6ヶ月) |
| 建物面積 | 234.34㎡ (70.88坪) |
| 種別 | 貸倉庫 |
| おすすめポイント |
|
【RBS35128】さいたま市岩槻区の貸倉庫 | 最寄駅は東武伊勢崎線「大袋駅」です。
倉庫:軽量鉄骨造平屋建て 事務所:軽量鉄骨造2階建て
| 最寄駅 所在地 |
東武伊勢崎線「大袋駅」約3.9km 埼玉県さいたま市岩槻区末田 |
|---|---|
| 賃料 | 1,080,000円礼 1ヶ月 / 敷 2ヶ月 |
| 建物面積 | 351.00㎡ (106.17坪) |
| 種別 | 貸倉庫 |
| おすすめポイント |
|
【RBS35127】越谷市の貸倉庫 | 最寄駅は東武伊勢崎線「越谷駅」です。
軽量鉄骨造平屋建て
| 最寄駅 所在地 |
東武伊勢崎線「越谷駅」徒歩27分 埼玉県越谷市谷中町 |
|---|---|
| 賃料 | 1,100,000円礼 1ヶ月 / 敷 1ヶ月 |
| 建物面積 | 493.00㎡ (149.13坪) |
| 種別 | 貸倉庫 |
| おすすめポイント |
|
【RBK35126】小田原市の貸倉庫 | 最寄駅はJR東海道本線(東京~熱海)「鴨宮駅」です。
鉄骨造2階建て 1階72.6坪 2階24.2坪
| 最寄駅 所在地 |
JR東海道本線(東京~熱海)「鴨宮駅」徒歩25分 神奈川県小田原市成田 |
|---|---|
| 賃料 | 511,500円礼 1ヶ月 / 保 3ヶ月 |
| 建物面積 | 320.00㎡ (96.80坪) |
| 種別 | 貸倉庫 |
| おすすめポイント |
|
貸工場・貸倉庫を金属加工に活用するポイント
借主(利用者)目線での物件チェックポイントと、貸主目線でのメリット・デメリットを分かりやすく解説します。
1.借主目線:金属加工業者が貸工場選びでチェックしたいポイント
金属加工は騒音や振動、また大型の機械設備が必要となるケースが多いため、以下のチェック項目を押さえておきましょう。
1-1.接道状況
原材料や製品の運搬でトラックを使用することが多いため、道路幅員や進入経路の確保が重要です。
道路法などの関係で接道条件が厳しくなる場合もあります。
契約前に必ず現地で確認しましょう。
1-2.駐車場の有無
従業員や来客用の駐車スペースは欠かせません。
社用車・営業車の保管場所として、大型のトラックやバンなどを使用する場合は十分なスペースが必要になります。
1-3.天井高
大型の機械やクレーンを設置する場合、プレス機やレーザーカッター、溶接機など背の高い設備が必要になることがあります。
また粉塵や煙が発生するため、高い天井は通気や換気の面でも有利です。
1-4.搬出入の間口
搬入口の高さ・幅が十分でないと、材料の搬入や製品の出荷時に作業効率が下がります。
フォークリフトを使用する場合は、大型パレットごと運ぶスペースの確保が重要です。
1-5.設備・インフラ
金属加工で必要となる大きな電力や三相200Vなどの電源容量を契約前に確認しましょう。
切削液を使用する場合の排水設備、溶接や塗装などの排気設備が整っているかも重要です。
2.貸主目線:貸工場に金属加工事業者を迎えるメリット・デメリット
貸工場のオーナーとしては、金属加工業者に貸し出すことで安定した家賃収入を得られる一方、注意すべき点も存在します。
2-1.メリット
金属加工業者は大型機械導入などの初期コストが大きいため、一度入居すると長期利用となるケースが多く、安定的な賃貸運用が期待できます。
製造業は景気の波に左右される部分はあるものの、長期的には一定の需要が見込まれます。
工業専用地域や工業地域、準工業地域であれば周辺住環境とのトラブルが少なく、事業継続性が高まりやすいです。
2-2.デメリット
騒音・振動・排気などへの対策が必要になる場合があり、退去時の原状回復についてルールを事前に明確化しておく必要があります。
住宅地に近い立地では近隣からクレームが出る可能性が高まるため、防音・防振などの対策協力がオーナーにも求められます。
高負荷機械の長期使用により建物や設備が劣化しやすいリスクも考慮が必要です。
貸工場・貸倉庫を配送センターで利用する
借主(利用者)目線と貸主目線の両方からポイントを解説します。
倉庫を選ぶ・貸し出す際の判断材料としてぜひ参考にしてください。
1.借主目線:配送センターとして活用する際に押さえておきたいチェックポイント
配送センターは荷物の集積・仕分け・発送が主な役割です。
そのため、以下の点に着目して貸倉庫を選ぶことが重要です。
1-1.接道状況
■トラックや大型車両の進入がスムーズか
配送センターでは大量の荷物が出入りするため、中型〜大型トラックの進入路が確保されているかどうかは必須です。
道路幅員や高さ制限を事前に確認しましょう。
■公道との接道が確保されているか
法令による接道要件を満たしているか、また進入禁止や一方通行など交通規制もないかなど、周辺交通状況を細かくチェックしましょう。
1-2.駐車場の有無
■従業員用・来客用の駐車スペース
社員の通勤だけでなく、取引先や訪問者の車が停められるスペースがあるかもポイントです。
■トラック待機スペース
仕分けのタイミングによっては複数のトラックが同時に待機する可能性があります。
スペース不足による近隣トラブルを回避するためにも駐車場の広さは要確認です。
1-3.天井高
■ラックや収納設備の効率化
高い天井があれば、ラックを縦方向に多段化でき、保管効率が高まります。
保管する荷物の最大高さを念頭に、必要な天井高をチェックしましょう。
■フォークリフトの稼働範囲
パレットごとの積み卸しを行う場合、リーチフォークリフトが使える天井高があるとスムーズに作業できます。
1-4.搬出入の間口
■入口の高さ・幅
大きな荷物やパレットを扱う場合、シャッターやドアのサイズが充分であるかは非常に重要です。
無理な荷物の搬出入は作業効率低下や事故のリスクを高めます。
■バリアフリー性
段差が多いと荷物の移動に手間がかかるため、フラットな床やスロープがあるかどうかも確認しておきましょう。
1-5.周辺環境
■騒音・交通量
早朝・深夜に出荷や搬入がある場合、近隣とのトラブルにならないよう周辺の居住環境を把握する必要があります。
■治安の良し悪し
倉庫への侵入や盗難リスクを低減するためにも、周辺のセキュリティ状況や人通りをチェックしておきましょう。
1-6.設備・インフラ
■空調設備
夏場の高温や冬場の低温に耐えられる空調設備があるかは、作業員の快適さや保管物の品質維持に直結します。
■通信回線・ネットワーク
配送システムや在庫管理システムを利用する場合、回線速度や安定性は非常に重要です。
■防犯・セキュリティ対策
監視カメラやセキュリティシステムの有無に加えて、門扉や鍵の管理がどのように行われているかも確認が必要です。
2.貸主目線:貸倉庫を配送センターとして貸し出すメリット・デメリット
2-1.メリット
■造作が少なく済む場合が多い
配送センターは大きな機械設備や特殊な改修を必要としないケースが多く、倉庫としての基本的な構造が整っていれば契約に至りやすいです。
■幅広いニーズに対応できる
倉庫を必要とする業種は多岐にわたります。
特にECサイト関連や物流企業の需要は高く、借り手を見つけやすい傾向にあります。
■比較的短期〜中長期の安定契約
物流・配送業は一定の需要が見込まれるため、長期契約になる可能性も高く、収益の安定が期待できます。
また、季節やキャンペーン時期だけの短期利用を希望する事業者もいるため、柔軟に賃貸条件を設定できる点もメリットです。
2-2.デメリット
■大きな車両の出入りに伴う近隣トラブル
大型トラックが頻繁に出入りすることにより、騒音や交通渋滞の原因になる可能性があります。
住宅地の近くでは周囲への配慮が必要です。
■建物・床への負荷
荷物の大量搬入やフォークリフト走行により、床や建物の劣化が早まるリスクがあります。
契約前に建物の耐荷重を正確に把握しておきましょう。
■セキュリティ強化に対するオーナー負担
盗難や不法侵入を防ぐため、柵や防犯カメラなどを新たに設置する場合があります。
安全対策は借主とどこまで共有するか、契約時に詰めておくことが大切です。
貸工場・貸倉庫に関するFAQ
- Q1貸工場とは?
- A1
製造・加工・組立などの工業用途を想定した建物や敷地を賃貸形式で提供するもので、多くの場合、準工業地域・工業地域・工業専用地域などの用途地域に立地しています。さらに、大型機械の設置や重機の稼働を念頭に置き、天井高・床耐荷重・搬入口などを十分に確保しているケースが多いのが特徴です。
- Q2貸倉庫とは?
- A2
物品の保管や物流拠点として利用される建物を、賃貸形式で提供するものです。荷捌きのしやすさや、保管対象に応じた空調・セキュリティなどが重要視されます。
主な特徴
1.広い床面積・搬入口
・パレットラックやフォークリフトの運用を想定し、十分な床面積や天井高が確保されている。
・トラックの荷降ろしが円滑に行えるよう、ドッグレベラー(荷役リフト)やシャッターが備わっている場合が多い。
2.温度・湿度管理
・食品、医薬品、精密機器などを保管する場合、空調設備や湿度管理システムを完備しているケースも。
・冷凍・冷蔵対応の倉庫もあり、用途に応じてスペックを選択できる。
3.セキュリティ・消防設備
・警備システムや防犯カメラを設置している物件も多く、在庫管理や盗難リスクを軽減できる。
・倉庫用途に即した消防設備(スプリンクラーや消火器など)が整えられているか要確認。 - Q3貸工場を借りたい方へのポイント
- A3
・必要設備の有無を確認
自社の製造ラインに必要な電力容量、床耐荷重、天井高、排気設備などを事前に把握する。
・周辺環境との調整
騒音や排水等で近隣に影響を及ぼす場合、行政への届出やオーナーの同意が必要になるケースも。
・改修・改造の範囲
大規模な設備増設を検討する際は、事前に契約書で改装範囲と原状回復義務を確認する。 - Q4貸工場を貸したい方へのポイント
- A4
・物件概要の明確化
電力容量、クレーン設置や換気設備の有無など、工場稼働に不可欠な情報を把握する。
・法令順守の点検
消防法や環境関連法規に適合しているかを定期的に点検し、違反箇所があれば改善する。
・騒音や振動対策
周辺住民や近隣企業とのトラブルを防ぐためにも、入居者との協議を事前に行う。 - Q5貸倉庫を借りたい方へのポイント
- A5
・搬入出の導線
大型トラックやフォークリフトが出入りできるスペースと扉のサイズ、動線を確かめる。
・床耐荷重・天井高
保管する荷物の重量や梱包形態によって必要な仕様が変わるため、契約前に仕様を確認。
・防犯・保険
防犯カメラや警備システムの有無、荷物への火災保険・盗難保険などの加入条件もチェックする。 - Q6貸倉庫を貸したい方へのポイント
- A6
・倉庫スペックの詳細提示
床荷重、天井高、ドッグレベラーの有無、温度管理などを明確にする。
・消防法への適合
倉庫として使用する際に必要な消火設備や避難経路が確保されているかを再点検し、必要に応じて整備する。
・長期的なメンテナンス計画
倉庫は資材の出し入れが頻繁なため、シャッターや床の耐久性などを定期的に確認し、良好な状態を保つ。 - Q7賃貸契約時に注意すべき点は何ですか?
- A7
・契約形態の確認
事業用の賃貸借は、居住用と異なる更新・解約条件が定められることが多い。
・原状回復義務
工場や倉庫は使用による汚れや設備の損耗が大きいため、退去時の負担範囲を明確にしておく。
・改装・設備増設の可否
大がかりな改修が必要な場合、オーナーの同意を得られるか、費用負担はどうなるかを事前に確認する。 - Q8貸工場・貸倉庫の査定依頼の方法は?
- A8
当社の豊富な経験を活かして適正な査定を行います。
簡易査定
・まだ検討段階の方におすすめです。事業方針を決めるための大まかな参考資料としてご利用ください。
・机上調査のみのため、あくまで概算になります。
詳細査定
・事業方針の決定に向け、より正確な査定を希望される場合に最適です。
・現地調査や行政への確認、法令制限の調査などを行い、査定結果に反映させます。
査定方法やご不明点などは、担当スタッフまでお気軽にご相談ください。
お客様の状況に合わせ、フレキシブルに対応いたします。 - Q9外国人・外国法人であっても貸工場・貸倉庫の取引をする事は可能ですか?
- A9
はい、法律上は外国人・外国法人であっても、日本人・日本法人と同様に貸工場・貸倉庫のお取引をいただくことが可能です。
ただし、実務上、円滑にお取引を進めさせていただくためには、以下の点をご確認させていただいております。
■日本国内における法人格: 日本支社または子会社として、日本国内で法人登記がされていること。
■国内銀行口座: 日本国内の銀行口座をお持ちであること。
■国内での会計処理: 日本国内の会計基準に則った会計処理体制が整っていること。
■日本語でのコミュニケーション: お取引に関するコミュニケーションが日本語で円滑に行えること。
これらのご準備が整っている場合、よりスムーズなお取引が可能となります。
ご不明な点がございましたら、お気軽にお問い合わせください。
Under Japanese law, foreign nationals and foreign companies can conduct "factories for rent" and "warehouses for rent" transactions in the same manner as Japanese individuals and companies.
However, to ensure smooth transactions in practice, our company kindly asks you to confirm the following points.
These are important points for mutual peace of mind and to ensure that transactions proceed correctly.
What we would like you to confirm
■Are you registered as a company in Japan?
Is it registered with the Legal Affairs Bureau as a Japanese company?
■Do you have an account with a Japanese bank?
A Japanese bank account will be necessary.
■Are you prepared for accounting in Japan?
For example, this could mean having a contract with a Japanese tax accountant.
■Is communication in Japanese possible?
Can important discussions, such as confirming contract details, be conducted smoothly in Japanese?
If these preparations are in place, transactions will proceed much more smoothly.
If you have any unclear points or concerns, please feel free to contact us.
根据日本法律,外国人及外国法人与日本个人及法人同样可以进行“工厂出租”“仓库出租”。
但是,为了确保实际交易的顺利进行,请确认以下几点。
这些是确保双方安全、顺利进行交易的重要事项。
确认事项
贵公司是否已在日本注册?
是否已在日本法务局注册为日本公司。
贵公司是否在日本拥有银行账户?
需要日本的银行账户。
会计处理是否可以在日本进行?
例如,是否与日本的税务师签订了合同等。
是否可以用日语进行交流?
例如,确认合同内容等重要洽谈是否可以用日语顺利进行。
如果以上准备工作就绪,交易将会顺利进行。
如有不明之处,请随时垂询。
貸工場・貸倉庫についてのお知らせ・ニュース
-
(貸工場・貸倉庫) 「朝霞台駅」 305坪 2,310,000円 (貸工場・貸倉庫) 「朝霞台駅」 416坪 1,760,000円 (貸倉庫) 「鳩ヶ谷駅」 98坪 418,000円
【お知らせ】神奈川県横浜市鶴見区元宮の貸し工場・貸し倉庫(RBK17558)。鉄骨造2階建約32坪。準工業地域。京浜急行線「鶴見市場」駅徒歩9分。別途契約駐車場あり。即入居可能な貸工場・貸倉庫です。
【賃料変更】埼玉県深谷市岡の貸倉庫(RBS34861)。新賃料(1,430,000円)。A棟:鉄骨造2階建て316.38坪・B棟:鉄骨造3階建て338.63坪。
【お知らせ】埼玉県朝霞市泉水の貸し工場・貸し倉庫(RBS35239)。B棟:平屋建て305.38坪。事務所:2階建て30坪。工業地域。駐車場あり(無料)。大型トラック搬入可。B棟:天井高7m以上。
【お知らせ】埼玉県川口市赤井の貸し倉庫(RBS35237)。鉄骨造2階建ての約98.37坪。第二種住居地域。駐車場あり。空き倉庫・貸作業所。
-
(貸倉庫) 「本厚木駅」 485坪 3,520,000円 (貸工場・貸倉庫) 「朝霞台駅」 722坪 3,850,000円 (貸倉庫) 「鶴ヶ峰駅」 50坪 300,000円 (貸倉庫) 「花崎駅」 276坪 1,062,600円 (貸倉庫) 「八潮駅」 223坪 1,102,900円 (貸工場・貸倉庫) 「スポーツセンター駅」 86坪 352,000円 その他あり
【お知らせ】神奈川県厚木市岡田の貸し倉庫(RBK35236)。鉄骨造2階建ての約485.33坪。第一種住居地域・第二種住居地域。40ftコンテナ進入可。駐車場あり。空き倉庫・貸作業所。
【お知らせ】神奈川県横浜市旭区白根の貸し倉庫(RBK31256)。鉄筋コンクリート造4階建て1階部分の約50.27坪。第二種住居地域。駐車場あり(無料)。空き倉庫・貸作業所。
【お知らせ】埼玉県加須市花崎の貸し倉庫(RBS23449)。鉄骨造平屋建ての約276.12坪。第一種住居地域。駐車場あります。空き倉庫・貸作業所。
【お知らせ】千葉県千葉市稲毛区長沼町の貸し工場・貸し倉庫(RBC35232)。鉄骨造平屋建ての約85.52坪。工業地域。駐車場あり。道路幅員約3.1m公道に接道。空き工場・空き倉庫。
【お知らせ】千葉県千葉市若葉区中野町の貸し倉庫(RBC35231)。鉄骨造平屋建ての約89.39坪。駐車場あり(12~15台可)。動力あり。西側道路幅員約4m公道・東側道路幅員約7m公道に接道。
【お知らせ】埼玉県草加市谷塚の貸し倉庫(RBS35230)。鉄骨造2階建ての約36.42坪。1階:17.09坪・2階:19.32坪。駐車場あり。貨物用エレベーターあり。空き倉庫・貸作業所。
【賃料変更】埼玉県行田市下忍の貸工場・貸倉庫(RBS34463)。新賃料(780,000円)。鉄骨造2階建て、事務所・工場116.31坪、店舗・事務所1階71.84坪/2階40.11坪。
【賃料変更】神奈川県横浜市旭区上川井町の貸工場・貸倉庫(RBK29002)。新賃料(1,650,000円)。鉄骨造2階建て208.62坪。接道状況は、北東側道路幅員約6m公道。
-
(貸工場・貸倉庫) 「伊勢原駅」 213坪 1,056,330円 (貸工場・貸倉庫) 「橋本駅」 151坪 1,250,000円
【お知らせ】神奈川県伊勢原市白根の貸し工場・貸し倉庫(RBK06822)。鉄骨造平屋建ての約213.4坪。準工業地域。駐車場あり。東側道路幅員約5.4m公道に接道。空き工場・空き倉庫・貸作業所。
-
【賃料変更】埼玉県草加市松江の貸工場・貸倉庫(RBS35034)。新賃料(450,000円)。木造2階建て1階32.03坪・2階26.05坪。接道状況は、道路幅員約7.9m公道。
【お知らせ】千葉県千葉市花見川区宇那谷町の貸し倉庫(RBC35216)。鉄骨・木造平屋建ての約135坪。駐車場あり(3台分以上)。道路幅員約6m公道に接道。
【賃料変更】埼玉県上尾市中妻の貸倉庫(RBS33228)。新賃料(528,000円)。鉄骨造2階建て1階60.16坪・2階30.08坪。接道状況は、道路幅員約6m公道。
-
【お知らせ】東京都町田市図師町の貸し倉庫(RBT34961)。鉄骨造2階建約99.97坪。準住居地域。駐車場あり。現況、空き。事務所付貸倉庫です。
-
【お知らせ】埼玉県川口市石神の貸し倉庫(RBS34889)。鉄骨造2階建約125.84坪。準住居地域。埼玉高速鉄道「戸塚案業」駅徒歩18分。国道122号線沿い。事務所付き貸倉庫です。
【お知らせ】東京都目黒区鷹番の貸し倉庫(RBT35204)。鉄骨鉄筋コンクリート造2階建て地下1階1階部分の約40.83坪。半地下物件。駐車場あり(空き1台・35,000円/月)。


![倉見 JR相模線[倉見駅]の貸工場・貸倉庫物件の詳細はこちら](/bukken_imgs/thumb/RBK21813-img1_big.jpg)
![弥平 埼玉高速鉄道[川口元郷駅]の貸工場・貸倉庫物件の詳細はこちら](/bukken_imgs/thumb/RBS27970-img1_big.jpg)
![南田島 JR埼京線[南古谷駅]の貸工場・貸倉庫物件の詳細はこちら](/bukken_imgs/thumb/RBS35241-img1_big.jpg)
![泉水 東武東上線[朝霞台駅]の貸工場・貸倉庫物件の詳細はこちら](/bukken_imgs/thumb/RBS35239-img1_big.jpg)
![泉水 東武東上線[朝霞台駅]の貸工場・貸倉庫物件の詳細はこちら](/bukken_imgs/thumb/RBS35238-img1_big.jpg)
![赤井 埼玉高速鉄道線[鳩ヶ谷駅]の貸倉庫物件の詳細はこちら](/bukken_imgs/thumb/RBS35237-img1_big.jpg)
![岡田 小田急小田原線[本厚木駅]の貸倉庫物件の詳細はこちら](/bukken_imgs/thumb/RBK35236-img1_big.jpg)
![泉水 東武東上線[朝霞台駅]の貸工場・貸倉庫物件の詳細はこちら](/bukken_imgs/thumb/RBS35235-img1_big.jpg)
![白根 相鉄本線[鶴ヶ峰駅]の貸倉庫物件の詳細はこちら](/bukken_imgs/thumb/RBK31256-img1_big.jpg)
![花崎 東武伊勢崎線[花崎駅]の貸倉庫物件の詳細はこちら](/bukken_imgs/thumb/RBS23449-img1_big.jpg)
![八潮 首都圏新都市鉄道つくばエクスプレス[八潮駅]の貸倉庫物件の詳細はこちら](/bukken_imgs/thumb/RBS27377-img1_big.jpg)
![長沼町 千葉都市モノレール2号線[スポーツセンター駅]の貸工場・貸倉庫物件の詳細はこちら](/bukken_imgs/thumb/RBC35232-img1_big.jpg)
![中野町 JR外房線[土気駅]の貸倉庫物件の詳細はこちら](/bukken_imgs/thumb/RBC35231-img1_big.jpg)
![谷塚 東武伊勢崎線[谷塚駅]の貸倉庫物件の詳細はこちら](/bukken_imgs/thumb/RBS35230-img1_big.jpg)
![白根 小田急小田原線[伊勢原駅]の貸工場・貸倉庫物件の詳細はこちら](/bukken_imgs/thumb/RBK06822-img1_big.jpg)
![西橋本 京王相模原線[橋本駅]の貸工場・貸倉庫物件の詳細はこちら](/bukken_imgs/thumb/RBK23374-img1_big.jpg)
![宇那谷町 JR総武本線[四街道駅]の貸倉庫物件の詳細はこちら](/bukken_imgs/thumb/RBC35216-img1_big.jpg)
![亀ケ谷 JR武蔵野線[東所沢駅]の貸倉庫物件の詳細はこちら](/bukken_imgs/thumb/RBS31273-img1_big.jpg)
![鷹番 東急東横線[学芸大学駅]の貸倉庫物件の詳細はこちら](/bukken_imgs/thumb/_big.jpg)
![弁天 東武伊勢崎線[獨協大学前〈草加松原〉駅]の貸工場・貸倉庫物件の詳細はこちら](/bukken_imgs/thumb/RBS35200-img1_big.jpg)
![復 北総鉄道北総線[白井駅]の貸倉庫物件の詳細はこちら](/bukken_imgs/thumb/RBC19840-img1_big.jpg)
![岡田 小田急小田原線[本厚木駅]の貸倉庫物件の詳細はこちら](/bukken_imgs/thumb/RBK35199-img1_big.jpg)
![彦沢 首都圏新都市鉄道つくばエクスプレス[三郷中央駅]の貸倉庫物件の詳細はこちら](/bukken_imgs/thumb/RBS35198-img1_big.jpg)
![西新井 東武伊勢崎線[北越谷駅]の貸倉庫物件の詳細はこちら](/bukken_imgs/thumb/RBS18258-img1_big.jpg)
![児玉町児玉 JR八高線(高麗川~高崎)[児玉駅]の貸倉庫物件の詳細はこちら](/bukken_imgs/thumb/RBS35184-img1_big.jpg)
![西 JR東北本線[白岡駅]の貸倉庫物件の詳細はこちら](/bukken_imgs/thumb/RBS35175-img1_big.jpg)
![太田新井 東武伊勢崎線[東武動物公園駅]の貸倉庫物件の詳細はこちら](/bukken_imgs/thumb/RBS28696-img1_big.jpg)
![東有馬 東急田園都市線[鷺沼駅]の貸倉庫物件の詳細はこちら](/bukken_imgs/thumb/RBK35171-img1_big.jpg)
![広田 JR高崎線[鴻巣駅]の貸工場・貸倉庫物件の詳細はこちら](/bukken_imgs/thumb/RBS35167-img1_big.jpg)
![犢橋町 京成本線[八千代台駅]の貸工場・貸倉庫物件の詳細はこちら](/bukken_imgs/thumb/RBC35165-img1_big.jpg)
![南永井 JR武蔵野線[東所沢駅]の貸倉庫物件の詳細はこちら](/bukken_imgs/thumb/RBS35164-img1_big.jpg)
![倉見 JR相模線[倉見駅]の貸倉庫物件の詳細はこちら](/bukken_imgs/thumb/RBK35160-img1_big.jpg)
![門沢橋 JR相模線[門沢橋駅]の貸倉庫物件の詳細はこちら](/bukken_imgs/thumb/RBK35159-img1_big.jpg)
![代官 小田急江ノ島線[桜ヶ丘駅]の貸工場・貸倉庫物件の詳細はこちら](/bukken_imgs/thumb/RBK09848-img1_big.jpg)
![戸吹町 JR中央本線(東京~塩尻)[八王子駅]の貸倉庫物件の詳細はこちら](/bukken_imgs/thumb/RBT35155-img1_big.jpg)
![中央 JR中央・総武緩行線[新小岩駅]の貸工場・貸倉庫物件の詳細はこちら](/bukken_imgs/thumb/RBT35151-img1_big.jpg)
![栄町 JR京葉線[二俣新町駅]の貸倉庫物件の詳細はこちら](/bukken_imgs/thumb/RBC35150-img1_big.jpg)
![新堀新田 JR川越線[高麗川駅]の貸工場・貸倉庫物件の詳細はこちら](/bukken_imgs/thumb/RBS19392-img1_big.jpg)
![西狭山ケ丘 西武池袋線[狭山ヶ丘駅]の貸倉庫物件の詳細はこちら](/bukken_imgs/thumb/RBS20783-img1_big.jpg)
![善部町 相鉄いずみ野線[南万騎が原駅]の貸倉庫物件の詳細はこちら](/bukken_imgs/thumb/RBK09580-img1_big.jpg)
![篠崎町 都営新宿線[篠崎駅]の貸倉庫物件の詳細はこちら](/bukken_imgs/thumb/RBT08497-img1_big.jpg)
![岡津町 相鉄いずみ野線[緑園都市駅]の貸倉庫物件の詳細はこちら](/bukken_imgs/thumb/RBK35147-img1_big.jpg)
![柏井町 京成本線[八千代台駅]の貸倉庫物件の詳細はこちら](/bukken_imgs/thumb/RBC35145-img1_big.jpg)
![中井 JR武蔵野線[吉川駅]の貸工場・貸倉庫物件の詳細はこちら](/bukken_imgs/thumb/RBS35131-img1_big.jpg)
![中央 JR中央・総武緩行線[新小岩駅]の貸工場・貸倉庫物件の詳細はこちら](/bukken_imgs/thumb/RBT35130-img1_big.jpg)
![若柳 JR中央本線(東京~塩尻)[相模湖駅]の貸倉庫物件の詳細はこちら](/bukken_imgs/thumb/RBK35129-img1_big.jpg)
![末田 東武伊勢崎線[大袋駅]の貸倉庫物件の詳細はこちら](/bukken_imgs/thumb/RBS35128-img1_big.jpg)
![谷中町 東武伊勢崎線[越谷駅]の貸倉庫物件の詳細はこちら](/bukken_imgs/thumb/RBS35127-img1_big.jpg)
![成田 JR東海道本線(東京~熱海)[鴨宮駅]の貸倉庫物件の詳細はこちら](/bukken_imgs/thumb/RBK35126-img1_big.jpg)
![下馬 東急東横線[学芸大学駅]の貸倉庫物件の詳細はこちら](/bukken_imgs/thumb/RBT31740-img1_big.jpg)
![小山町 JR横浜線[相模原駅]の貸倉庫物件の詳細はこちら](/bukken_imgs/thumb/RBT35124-img1_big.jpg)
![大島 都営新宿線[大島駅]の貸倉庫物件の詳細はこちら](/bukken_imgs/thumb/RBT35123-img1_big.jpg)
![宮崎 東急田園都市線[宮崎台駅]の貸倉庫物件の詳細はこちら](/bukken_imgs/thumb/RBK35122-img1_big.jpg)
![下連雀 JR中央本線(東京~塩尻)[三鷹駅]の貸工場・貸倉庫物件の詳細はこちら](/bukken_imgs/thumb/RBT35117-img1_big.jpg)
![大熊町 横浜市営地下鉄ブルーライン[新羽駅]の貸工場・貸倉庫物件の詳細はこちら](/bukken_imgs/thumb/RBK06248-img1_big.jpg)
![東立石 京成押上線[京成立石駅]の貸倉庫物件の詳細はこちら](/bukken_imgs/thumb/RBT35113-img1_big.jpg)
![門沢橋 JR相模線[門沢橋駅]の貸工場・貸倉庫物件の詳細はこちら](/bukken_imgs/thumb/RBK35111-img1_big.jpg)
![大竹 東武伊勢崎線[大袋駅]の貸倉庫物件の詳細はこちら](/bukken_imgs/thumb/RBS34584-img1_big.jpg)
![入谷 日暮里・舎人ライナー[舎人駅]の貸倉庫物件の詳細はこちら](/bukken_imgs/thumb/RBT35110-img1_big.jpg)
![小石川 東京メトロ丸ノ内線[茗荷谷駅]の貸倉庫物件の詳細はこちら](/bukken_imgs/thumb/RBT35109-img1_big.jpg)
![上青木西 JR京浜東北線[西川口駅]の貸工場・貸倉庫物件の詳細はこちら](/bukken_imgs/thumb/RBS30238-img1_big.jpg)
![南鳩ヶ谷 埼玉高速鉄道線[南鳩ヶ谷駅]の貸工場・貸倉庫物件の詳細はこちら](/bukken_imgs/thumb/RBS35102-img1_big.jpg)
![渡田向町 JR東海道本線(東京~熱海)[川崎駅]の貸倉庫物件の詳細はこちら](/bukken_imgs/thumb/RBK35101-img1_big.jpg)
![新町 JR青梅線[小作駅]の貸工場・貸倉庫物件の詳細はこちら](/bukken_imgs/thumb/RBT35091-img1_big.jpg)
![小前田 秩父鉄道秩父本線[小前田駅]の貸倉庫物件の詳細はこちら](/bukken_imgs/thumb/RBS35090-img1_big.jpg)
![新羽町 横浜市営地下鉄ブルーライン[北新横浜駅]の貸工場・貸倉庫物件の詳細はこちら](/bukken_imgs/thumb/RBK14756-img1_big.jpg)
![寿町 JR東海道本線(東京~熱海)[小田原駅]の貸工場・貸倉庫物件の詳細はこちら](/bukken_imgs/thumb/RBK17835-img1_big.jpg)
![上馬 東急田園都市線[駒沢大学駅]の貸倉庫物件の詳細はこちら](/bukken_imgs/thumb/RBT07269-img1_big.jpg)
![佐江戸町 JR横浜線[鴨居駅]の貸工場・貸倉庫物件の詳細はこちら](/bukken_imgs/thumb/RBK35087-img1_big.jpg)
![下高野 山万ユーカリが丘線[中学校駅]の貸倉庫物件の詳細はこちら](/bukken_imgs/thumb/RBC29122-img1_big.jpg)
![木曽根 首都圏新都市鉄道つくばエクスプレス[八潮駅]の貸倉庫物件の詳細はこちら](/bukken_imgs/thumb/RBS35086-img1_big.jpg)
![森 京急本線[屏風浦駅]の貸倉庫物件の詳細はこちら](/bukken_imgs/thumb/RBK35085-img1_big.jpg)
![大熊町 横浜市営地下鉄ブルーライン[新羽駅]の貸工場・貸倉庫物件の詳細はこちら](/bukken_imgs/thumb/RBK06044-img1_big.jpg)
![新町 JR青梅線[小作駅]の貸工場・貸倉庫物件の詳細はこちら](/bukken_imgs/thumb/RBT35080-img1_big.jpg)
![新町 JR青梅線[小作駅]の貸工場・貸倉庫物件の詳細はこちら](/bukken_imgs/thumb/RBT35079-img1_big.jpg)
![新町 JR青梅線[小作駅]の貸工場・貸倉庫物件の詳細はこちら](/bukken_imgs/thumb/RBT35078-img1_big.jpg)
![大日町 京成本線[勝田台駅]の貸倉庫物件の詳細はこちら](/bukken_imgs/thumb/RBC13013-img1_big.jpg)
![丸山 東武野田線[鎌ヶ谷駅]の貸倉庫物件の詳細はこちら](/bukken_imgs/thumb/RBC35077-img1_big.jpg)
![久喜東 JR東北本線[久喜駅]の貸倉庫物件の詳細はこちら](/bukken_imgs/thumb/RBS35076-img1_big.jpg)
![木曽根 首都圏新都市鉄道つくばエクスプレス[八潮駅]の貸工場・貸倉庫物件の詳細はこちら](/bukken_imgs/thumb/RBS35067-img1_big.jpg)
![六木 首都圏新都市鉄道つくばエクスプレス[八潮駅]の貸工場・貸倉庫物件の詳細はこちら](/bukken_imgs/thumb/RBT35065-img1_big.jpg)
![青柳 JR内房線[姉ケ崎駅]の貸工場・貸倉庫物件の詳細はこちら](/bukken_imgs/thumb/RBC35064-img1_big.jpg)
![宇喜田町 東京メトロ東西線[西葛西駅]の貸倉庫物件の詳細はこちら](/bukken_imgs/thumb/RBT35063-img1_big.jpg)
![南野川 横浜市営地下鉄グリーンライン[東山田駅]の貸倉庫物件の詳細はこちら](/bukken_imgs/thumb/RBK35062-img1_big.jpg)
![卸本町 東急田園都市線[南町田グランベリーパーク駅]の貸倉庫物件の詳細はこちら](/bukken_imgs/thumb/RBK08564-img1_big.jpg)
![下宗岡 東武東上線[柳瀬川駅]の貸倉庫物件の詳細はこちら](/bukken_imgs/thumb/RBS27548-img1_big.jpg)
![宮内 JR南武線[武蔵新城駅]の貸工場・貸倉庫物件の詳細はこちら](/bukken_imgs/thumb/RBK35058-img1_big.jpg)
![加賀 日暮里・舎人ライナー[谷在家駅]の貸倉庫物件の詳細はこちら](/bukken_imgs/thumb/RBT35057-img1_big.jpg)
![東道野辺 新京成電鉄新京成線[鎌ヶ谷大仏駅]の貸倉庫物件の詳細はこちら](/bukken_imgs/thumb/RBC35056-img1_big.jpg)
![山口 西武狭山線[下山口駅]の貸倉庫物件の詳細はこちら](/bukken_imgs/thumb/RBS35054-img1_big.jpg)
![小仲台 JR中央・総武緩行線[稲毛駅]の貸倉庫物件の詳細はこちら](/bukken_imgs/thumb/RBC35053-img1_big.jpg)
![上品濃 JR横須賀線[東戸塚駅]の貸倉庫物件の詳細はこちら](/bukken_imgs/thumb/RBK35048-img1_big.jpg)
![小向西町 JR南武線[矢向駅]の貸倉庫物件の詳細はこちら](/bukken_imgs/thumb/RBK35047-img1_big.jpg)
![上青木 埼玉高速鉄道線[鳩ヶ谷駅]の貸工場・貸倉庫物件の詳細はこちら](/bukken_imgs/thumb/RBS35046-img1_big.jpg)
![谷津 東武野田線[七光台駅]の貸工場・貸倉庫物件の詳細はこちら](/bukken_imgs/thumb/RBC35045-img1_big.jpg)
![芝下 JR京浜東北線[蕨駅]の貸工場・貸倉庫物件の詳細はこちら](/bukken_imgs/thumb/RBS35044-img1_big.jpg)
![新木場 JR京葉線[新木場駅]の貸工場・貸倉庫物件の詳細はこちら](/bukken_imgs/thumb/RBT04027-img1_big.jpg)
![赤井 埼玉高速鉄道[鳩ヶ谷駅]の貸倉庫物件の詳細はこちら](/bukken_imgs/thumb/RBS28237-img1_big.jpg)
![岡泉 JR東北本線[白岡駅]の貸倉庫物件の詳細はこちら](/bukken_imgs/thumb/RBS35043-img1_big.jpg)
![谷中町 東武伊勢崎線[越谷駅]の貸倉庫物件の詳細はこちら](/bukken_imgs/thumb/RBS35042-img1_big.jpg)
![美山町 JR中央本線(東京~塩尻)[高尾駅]の貸倉庫物件の詳細はこちら](/bukken_imgs/thumb/RBT35041-img1_big.jpg)
![松江 東武伊勢崎線[草加駅]の貸工場・貸倉庫物件の詳細はこちら](/bukken_imgs/thumb/RBS35034-img1_big.jpg)
![谷中町 東武伊勢崎線[越谷駅]の貸倉庫物件の詳細はこちら](/bukken_imgs/thumb/RBS35033-img1_big.jpg)
![三ツ和 埼玉高速鉄道線[鳩ヶ谷駅]の貸倉庫物件の詳細はこちら](/bukken_imgs/thumb/RBS35032-img1_big.jpg)
![緑町 JR青梅線[昭島駅]の貸倉庫物件の詳細はこちら](/bukken_imgs/thumb/RBT33659-img1_big.jpg)
![大楽寺町 JR中央本線(東京~塩尻)[西八王子駅]の貸倉庫物件の詳細はこちら](/bukken_imgs/thumb/RBT35028-img1_big.jpg)
![西浦 JR京葉線[二俣新町駅]の貸工場・貸倉庫物件の詳細はこちら](/bukken_imgs/thumb/RBC33323-img1_big.jpg)
![葛原 小田急江ノ島線[長後駅]の貸倉庫物件の詳細はこちら](/bukken_imgs/thumb/RBK35024-img1_big.jpg)
![石川 小田急江ノ島線[湘南台駅]の貸倉庫物件の詳細はこちら](/bukken_imgs/thumb/RBK35023-img1_big.jpg)
![東糀谷 京急空港線[大鳥居駅]の貸工場・貸倉庫物件の詳細はこちら](/bukken_imgs/thumb/RBT35016-img1_big.jpg)
![南荻島 東武伊勢崎線[北越谷駅]の貸倉庫物件の詳細はこちら](/bukken_imgs/thumb/RBS35014-img1_big.jpg)
![川町 JR中央本線(東京~塩尻)[西八王子駅]の貸工場・貸倉庫物件の詳細はこちら](/bukken_imgs/thumb/RBT35008-img1_big.jpg)
![十日市場町 JR横浜線[十日市場駅]の貸倉庫物件の詳細はこちら](/bukken_imgs/thumb/RBK30620-img1_big.jpg)
![松本 JR武蔵野線[西浦和駅]の貸倉庫物件の詳細はこちら](/bukken_imgs/thumb/RBS17764-img1_big.jpg)
![中央港 JR京葉線[千葉みなと駅]の貸工場・貸倉庫物件の詳細はこちら](/bukken_imgs/thumb/RBC35002-img1_big.jpg)
![中央港 JR京葉線[千葉みなと駅]の貸工場・貸倉庫物件の詳細はこちら](/bukken_imgs/thumb/RBC35001-img1_big.jpg)
![中央港 JR京葉線[千葉みなと駅]の貸工場・貸倉庫物件の詳細はこちら](/bukken_imgs/thumb/RBC35000-img1_big.jpg)
![大崎 埼玉高速鉄道線[浦和美園駅]の貸倉庫物件の詳細はこちら](/bukken_imgs/thumb/RBS34999-img1_big.jpg)
![藤ケ谷 東武野田線[高柳駅]の貸倉庫物件の詳細はこちら](/bukken_imgs/thumb/RBC34998-img1_big.jpg)
![渋谷 小田急江ノ島線[高座渋谷駅]の貸倉庫物件の詳細はこちら](/bukken_imgs/thumb/RBK34995-img1_big.jpg)
![麻溝台 小田急小田原線[相武台前駅]の貸倉庫物件の詳細はこちら](/bukken_imgs/thumb/RBK34994-img1_big.jpg)
![牛久保西 横浜市営地下鉄ブルーライン[中川駅]の貸倉庫物件の詳細はこちら](/bukken_imgs/thumb/RBK34993-img1_big.jpg)
![粕壁東 東武伊勢崎線[春日部駅]の貸倉庫物件の詳細はこちら](/bukken_imgs/thumb/RBS34992-img1_big.jpg)
![青葉台 新京成電鉄新京成線[常盤平駅]の貸倉庫物件の詳細はこちら](/bukken_imgs/thumb/RBC34991-img1_big.jpg)
![青葉台 新京成電鉄新京成線[常盤平駅]の貸倉庫物件の詳細はこちら](/bukken_imgs/thumb/RBC34990-img1_big.jpg)
![小比企町 JR横浜線[八王子みなみ野駅]の貸倉庫物件の詳細はこちら](/bukken_imgs/thumb/RBT34989-img1_big.jpg)
![新吉田町 横浜市営地下鉄ブルーライン[新羽駅]の貸倉庫物件の詳細はこちら](/bukken_imgs/thumb/RBK34986-img1_big.jpg)
![太田ヶ谷 JR川越線[笠幡駅]の貸工場・貸倉庫物件の詳細はこちら](/bukken_imgs/thumb/RBS26262-img1_big.jpg)
![元宮 京急本線[鶴見市場駅]の貸工場・貸倉庫物件の詳細はこちら](/bukken_imgs/thumb/RBK17900-img1_big.jpg)
![本郷 JR相模線[門沢橋駅]の貸工場・貸倉庫物件の詳細はこちら](/bukken_imgs/thumb/RBK34980-img1_big.jpg)
![上川井町 東急田園都市線[すずかけ台駅]の貸工場・貸倉庫物件の詳細はこちら](/bukken_imgs/thumb/RBK29002-img1_big.jpg)
![尾ケ崎 埼玉高速鉄道線[浦和美園駅]の貸倉庫物件の詳細はこちら](/bukken_imgs/thumb/RBS34736-img1_big.jpg)
![末田 東武伊勢崎線[大袋駅]の貸倉庫物件の詳細はこちら](/bukken_imgs/thumb/RBS34979-img1_big.jpg)
![新河岸 都営三田線[高島平駅]の貸工場・貸倉庫物件の詳細はこちら](/bukken_imgs/thumb/RBT34975-img1_big.jpg)
![石田 西武新宿線[本川越駅]の貸倉庫物件の詳細はこちら](/bukken_imgs/thumb/RBS34974-img1_big.jpg)
![泉水 JR武蔵野線[新座駅]の貸工場・貸倉庫物件の詳細はこちら](/bukken_imgs/thumb/RBS34970-img1_big.jpg)
![大野台 JR横浜線[淵野辺駅]の貸工場・貸倉庫物件の詳細はこちら](/bukken_imgs/thumb/RBK34969-img1_big.jpg)
![立野 多摩都市モノレール線[桜街道駅]の貸倉庫物件の詳細はこちら](/bukken_imgs/thumb/RBT34968-img1_big.jpg)
![中丸町 東京メトロ有楽町線[要町駅]の貸工場・貸倉庫物件の詳細はこちら](/bukken_imgs/thumb/RBT07390-img1_big.jpg)
![下今泉 小田急小田原線[海老名駅]の貸倉庫物件の詳細はこちら](/bukken_imgs/thumb/RBK16250-img1_big.jpg)
![辻 JR埼京線[北戸田駅]の貸倉庫物件の詳細はこちら](/bukken_imgs/thumb/RBS34967-img1_big.jpg)
![武 京急本線[横須賀中央駅]の貸倉庫物件の詳細はこちら](/bukken_imgs/thumb/RBK34966-img1_big.jpg)
![桜木北 千葉都市モノレール2号線[桜木駅]の貸倉庫物件の詳細はこちら](/bukken_imgs/thumb/RBC34965-img1_big.jpg)
![中井 JR武蔵野線[吉川駅]の貸工場・貸倉庫物件の詳細はこちら](/bukken_imgs/thumb/RBS34963-img1_big.jpg)
![中井 JR武蔵野線[吉川駅]の貸工場・貸倉庫物件の詳細はこちら](/bukken_imgs/thumb/RBS34962-img1_big.jpg)
![図師町 小田急小田原線[町田]の貸倉庫物件の詳細はこちら](/bukken_imgs/thumb/RBT34961-img1_big.jpg)
![八幡木 埼玉高速鉄道[南鳩ヶ谷駅]の貸工場・貸倉庫物件の詳細はこちら](/bukken_imgs/thumb/RBS21281-img1_big.jpg)
![本行徳 JR京葉線[市川塩浜駅]の貸工場・貸倉庫物件の詳細はこちら](/bukken_imgs/thumb/RBC14127-img1_big.jpg)
![飯積 東武日光線[柳生駅]の貸倉庫物件の詳細はこちら](/bukken_imgs/thumb/RBS34949-img1_big.jpg)
![飯積 東武日光線[柳生駅]の貸倉庫物件の詳細はこちら](/bukken_imgs/thumb/RBS34948-img1_big.jpg)
![飯積 東武日光線[柳生駅]の貸倉庫物件の詳細はこちら](/bukken_imgs/thumb/RBS34947-img1_big.jpg)
![新川町 横浜市営地下鉄ブルーライン[吉野町駅]の貸倉庫物件の詳細はこちら](/bukken_imgs/thumb/RBK33526-img1_big.jpg)
![荒川 京成本線[新三河島駅]の貸倉庫物件の詳細はこちら](/bukken_imgs/thumb/RBT34944-img1_big.jpg)
![亀戸 JR中央・総武緩行線[錦糸町駅]の貸倉庫物件の詳細はこちら](/bukken_imgs/thumb/RBT34943-img1_big.jpg)
![八條 JR武蔵野線[新三郷駅]の貸倉庫物件の詳細はこちら](/bukken_imgs/thumb/RBS11344-img1_big.jpg)
![飯積 東武日光線[柳生駅]の貸倉庫物件の詳細はこちら](/bukken_imgs/thumb/RBS34939-img1_big.jpg)
![上青木 埼玉高速鉄道線[南鳩ヶ谷駅]の貸工場・貸倉庫物件の詳細はこちら](/bukken_imgs/thumb/RBS28200-img1_big.jpg)
![大宮町 京成千原線[大森台駅]の貸倉庫物件の詳細はこちら](/bukken_imgs/thumb/RBC29379-img1_big.jpg)
![青砥町 JR横浜線[中山駅]の貸倉庫物件の詳細はこちら](/bukken_imgs/thumb/RBK34932-img1_big.jpg)
![松原 京王線[明大前駅]の貸倉庫物件の詳細はこちら](/bukken_imgs/thumb/RBT34931-img1_big.jpg)
![亀沢 JR総武本線[錦糸町駅]の貸倉庫物件の詳細はこちら](/bukken_imgs/thumb/RBT34928-img1_big.jpg)
![亀沢 JR総武本線[錦糸町駅]の貸倉庫物件の詳細はこちら](/bukken_imgs/thumb/RBT34926-img1_big.jpg)
![秋山 北総鉄道北総線[秋山駅]の貸倉庫物件の詳細はこちら](/bukken_imgs/thumb/RBC34925-img1_big.jpg)
![光町 JR中央線(快速)[国立駅]の貸倉庫物件の詳細はこちら](/bukken_imgs/thumb/RBT34923-img1_big.jpg)
![下宗岡 JR武蔵野線[北朝霞駅]の貸工場・貸倉庫物件の詳細はこちら](/bukken_imgs/thumb/RBS28176-img1_big.jpg)
![六万部 JR東北本線[久喜駅]の貸倉庫物件の詳細はこちら](/bukken_imgs/thumb/RBS34918-img1_big.jpg)
![小深町 JR総武本線[四街道駅]の貸倉庫物件の詳細はこちら](/bukken_imgs/thumb/RBC34917-img1_big.jpg)
![弥平 日暮里・舎人ライナー[舎人駅]の貸工場・貸倉庫物件の詳細はこちら](/bukken_imgs/thumb/RBS33525-img1_big.jpg)
![柳崎 JR武蔵野線[東浦和駅]の貸工場・貸倉庫物件の詳細はこちら](/bukken_imgs/thumb/RBS34914-img1_big.jpg)
![氷川町 JR横浜線[相模原駅]の貸倉庫物件の詳細はこちら](/bukken_imgs/thumb/RBK21499-img1_big.jpg)
![曲本 JR武蔵野線[西浦和駅]の貸倉庫物件の詳細はこちら](/bukken_imgs/thumb/RBS20844-img1_big.jpg)
![三枚町 相鉄新横浜線[羽沢横浜国大駅]の貸倉庫物件の詳細はこちら](/bukken_imgs/thumb/RBK34911-img1_big.jpg)
![飯積 東武日光線[柳生駅]の貸倉庫物件の詳細はこちら](/bukken_imgs/thumb/RBS34906-img1_big.jpg)
![馬絹 東急田園都市線[宮崎台駅]の貸倉庫物件の詳細はこちら](/bukken_imgs/thumb/RBK34905-img1_big.jpg)
![西新宿 JR東北本線[白岡駅]の貸倉庫物件の詳細はこちら](/bukken_imgs/thumb/RBS34900-img1_big.jpg)
![芝原 JR武蔵野線[東浦和駅]の貸倉庫物件の詳細はこちら](/bukken_imgs/thumb/RBS29284-img1_big.jpg)
![篠崎町 都営新宿線[篠崎駅]の貸倉庫物件の詳細はこちら](/bukken_imgs/thumb/RBT34899-img1_big.jpg)
![高久 JR武蔵野線[吉川美南駅]の貸倉庫物件の詳細はこちら](/bukken_imgs/thumb/RBS34898-img1_big.jpg)
![高久 JR武蔵野線[吉川美南駅]の貸倉庫物件の詳細はこちら](/bukken_imgs/thumb/RBS34897-img1_big.jpg)
![高久 JR武蔵野線[吉川美南駅]の貸倉庫物件の詳細はこちら](/bukken_imgs/thumb/RBS34896-img1_big.jpg)
![高久 JR武蔵野線[吉川美南駅]の貸倉庫物件の詳細はこちら](/bukken_imgs/thumb/RBS34895-img1_big.jpg)
![高久 JR武蔵野線[吉川美南駅]の貸倉庫物件の詳細はこちら](/bukken_imgs/thumb/RBS34894-img1_big.jpg)
![石神 埼玉高速鉄道線[戸塚安行駅]の貸倉庫物件の詳細はこちら](/bukken_imgs/thumb/RBS34889-img1_big.jpg)
![宝町 京成本線[お花茶屋駅]の貸工場・貸倉庫物件の詳細はこちら](/bukken_imgs/thumb/RBT34888-img1_big.jpg)
![奥戸 JR中央・総武緩行線[小岩駅]の貸倉庫物件の詳細はこちら](/bukken_imgs/thumb/RBT34887-img1_big.jpg)
![諏訪 東武東上線[成増駅]の貸倉庫物件の詳細はこちら](/bukken_imgs/thumb/RBS34886-img1_big.jpg)
![西葛西 東京メトロ東西線[西葛西駅]の貸倉庫物件の詳細はこちら](/bukken_imgs/thumb/RBT34885-img1_big.jpg)
![北入曽 西武新宿線[入曽駅]の貸工場・貸倉庫物件の詳細はこちら](/bukken_imgs/thumb/RBS11329-img1_big.jpg)
![小川東町 西武多摩湖線[青梅街道駅]の貸倉庫物件の詳細はこちら](/bukken_imgs/thumb/RBT20955-img1_big.jpg)
![大草町 千葉都市モノレール2号線[千城台駅]の貸倉庫物件の詳細はこちら](/bukken_imgs/thumb/RBC27423-img1_big.jpg)
![川井宿町 相鉄本線[鶴ヶ峰駅]の貸工場・貸倉庫物件の詳細はこちら](/bukken_imgs/thumb/RBK34878-img1_big.jpg)
![矢野口 JR南武線[矢野口駅]の貸倉庫物件の詳細はこちら](/bukken_imgs/thumb/RBT34877-img1_big.jpg)
![差間 JR武蔵野線[東川口駅]の貸倉庫物件の詳細はこちら](/bukken_imgs/thumb/RBS24338-img1_big.jpg)
![新狭山 西武新宿線[新狭山駅]の貸倉庫物件の詳細はこちら](/bukken_imgs/thumb/RBS26766-img1_big.jpg)
![東山田町 横浜市営地下鉄グリーンライン[東山田駅]の貸倉庫物件の詳細はこちら](/bukken_imgs/thumb/RBK34872-img1_big.jpg)
![上谷 JR高崎線[鴻巣駅]の貸倉庫物件の詳細はこちら](/bukken_imgs/thumb/RBS34871-img1_big.jpg)
![新大橋 都営大江戸線[森下駅]の貸倉庫物件の詳細はこちら](/bukken_imgs/thumb/RBT34870-img1_big.jpg)
![岡 JR高崎線[岡部駅]の貸倉庫物件の詳細はこちら](/bukken_imgs/thumb/RBS34861-img1_big.jpg)
![前ケ崎 首都圏新都市鉄道つくばエクスプレス[流山セントラルパーク駅]の貸倉庫物件の詳細はこちら](/bukken_imgs/thumb/RBC34860-img1_big.jpg)
![巣鴨 JR山手線[巣鴨駅]の貸倉庫物件の詳細はこちら](/bukken_imgs/thumb/RBT34858-img1_big.jpg)
![鬼柳 小田急小田原線[栢山駅]の貸倉庫物件の詳細はこちら](/bukken_imgs/thumb/RBK34856-img1_big.jpg)
![伊奈平 西武拝島線[西武立川駅]の貸工場・貸倉庫物件の詳細はこちら](/bukken_imgs/thumb/RBT06308-img1_big.jpg)
![青柳 東武伊勢崎線[獨協大学前駅]の貸工場・貸倉庫物件の詳細はこちら](/bukken_imgs/thumb/RBS23171-img1_big.jpg)
![二本木 JR八高線(八王子~高麗川)[箱根ケ崎駅]の貸倉庫物件の詳細はこちら](/bukken_imgs/thumb/RBS34852-img1_big.jpg)
![大庭 小田急江ノ島線[藤沢本町駅]の貸倉庫物件の詳細はこちら](/bukken_imgs/thumb/RBK34851-img1_big.jpg)
![新羽町 横浜市営地下鉄ブルーライン[北新横浜駅]の貸工場・貸倉庫物件の詳細はこちら](/bukken_imgs/thumb/RBK19378-img1_big.jpg)
![大桑 東武伊勢崎線[花崎駅]の貸工場・貸倉庫物件の詳細はこちら](/bukken_imgs/thumb/RBS34850-img1_big.jpg)
![恩多町 西武新宿線[久米川駅]の貸工場・貸倉庫物件の詳細はこちら](/bukken_imgs/thumb/RBT34849-img1_big.jpg)
![竹間沢 東武東上線[みずほ台駅]の貸工場・貸倉庫物件の詳細はこちら](/bukken_imgs/thumb/RBS34848-img1_big.jpg)
![西浅草 首都圏新都市鉄道つくばエクスプレス[浅草駅]の貸倉庫物件の詳細はこちら](/bukken_imgs/thumb/RBT34847-img1_big.jpg)
![田名 JR横浜線[相模原駅]の貸工場・貸倉庫物件の詳細はこちら](/bukken_imgs/thumb/RBK23014-img1_big.jpg)
![南葛西 JR京葉線[葛西臨海公園駅]の貸工場・貸倉庫物件の詳細はこちら](/bukken_imgs/thumb/RBT28293-img1_big.jpg)
![皿沼 日暮里・舎人ライナー[舎人公園駅]の貸倉庫物件の詳細はこちら](/bukken_imgs/thumb/RBT34842-img1_big.jpg)
![東大沢 東武伊勢崎線[北越谷駅]の貸倉庫物件の詳細はこちら](/bukken_imgs/thumb/RBS25749-img1_big.jpg)
![大神 JR相模線[門沢橋駅]の貸倉庫物件の詳細はこちら](/bukken_imgs/thumb/RBK34841-img1_big.jpg)
![藤ケ谷 東武野田線[高柳駅]の貸倉庫物件の詳細はこちら](/bukken_imgs/thumb/RBC34840-img1_big.jpg)
![笹目 都営三田線[西高島平駅]の貸工場・貸倉庫物件の詳細はこちら](/bukken_imgs/thumb/RBS28542-img1_big.jpg)
![白鳥 京成本線[お花茶屋駅]の貸工場・貸倉庫物件の詳細はこちら](/bukken_imgs/thumb/RBT34833-img1_big.jpg)
![佐江戸町 JR横浜線[鴨居駅]の貸倉庫物件の詳細はこちら](/bukken_imgs/thumb/RBK34825-img1_big.jpg)
![大和田町 JR八高線(八王子~高麗川)[北八王子駅]の貸倉庫物件の詳細はこちら](/bukken_imgs/thumb/RBT34822-img1_big.jpg)
![藤金 東武東上線[若葉駅]の貸倉庫物件の詳細はこちら](/bukken_imgs/thumb/RBS27210-img1_big.jpg)
![湯島 JR中央線(快速)[御茶ノ水駅]の貸倉庫物件の詳細はこちら](/bukken_imgs/thumb/RBT34809-img1_big.jpg)
![亀ケ谷 JR武蔵野線[東所沢駅]の貸倉庫物件の詳細はこちら](/bukken_imgs/thumb/RBS34805-img1_big.jpg)
![獅子ケ谷 東急東横線[大倉山駅]の貸工場・貸倉庫物件の詳細はこちら](/bukken_imgs/thumb/RBK34803-img1_big.jpg)
![西亀有 JR常磐線(上野~取手)[綾瀬駅]の貸倉庫物件の詳細はこちら](/bukken_imgs/thumb/RBT34802-img1_big.jpg)
![高島平 都営三田線[西台駅]の貸倉庫物件の詳細はこちら](/bukken_imgs/thumb/RBT34801-img1_big.jpg)
![流通団地 JR武蔵野線[越谷レイクタウン駅]の貸工場・貸倉庫物件の詳細はこちら](/bukken_imgs/thumb/RBS30355-img1_big.jpg)
![茂田井 JR武蔵野線[三郷駅]の貸倉庫物件の詳細はこちら](/bukken_imgs/thumb/RBS34796-img1_big.jpg)
![北方町 JR武蔵野線[船橋法典駅]の貸倉庫物件の詳細はこちら](/bukken_imgs/thumb/RBC34795-img1_big.jpg)
![中爪 JR八高線(高麗川~高崎)[小川町駅]の貸倉庫物件の詳細はこちら](/bukken_imgs/thumb/RBS31760-img1_big.jpg)
![杉戸 東武伊勢崎線[東武動物公園駅]の貸倉庫物件の詳細はこちら](/bukken_imgs/thumb/RBS34787-img1_big.jpg)
![谷津 東武野田線[七光台駅]の貸工場・貸倉庫物件の詳細はこちら](/bukken_imgs/thumb/RBC34782-img1_big.jpg)
![鹿浜 日暮里・舎人ライナー[西新井大師西駅]の貸倉庫物件の詳細はこちら](/bukken_imgs/thumb/RBT34779-img1_big.jpg)
![赤城下町 東京メトロ東西線[神楽坂駅]の貸倉庫物件の詳細はこちら](/bukken_imgs/thumb/RBT34776-img1_big.jpg)
![諏訪町 JR中央本線(東京~塩尻)[八王子駅]の貸工場・貸倉庫物件の詳細はこちら](/bukken_imgs/thumb/RBT34775-img1_big.jpg)
![南永井 JR武蔵野線[東所沢駅]の貸工場・貸倉庫物件の詳細はこちら](/bukken_imgs/thumb/RBS29758-img1_big.jpg)
![柄沢 JR東海道本線(東京~熱海)[藤沢駅]の貸倉庫物件の詳細はこちら](/bukken_imgs/thumb/RBK34772-img1_big.jpg)
![東豊田 JR中央本線(東京~塩尻)[豊田駅]の貸倉庫物件の詳細はこちら](/bukken_imgs/thumb/RBT34771-img1_big.jpg)
![八幡木 埼玉高速鉄道線[南鳩ヶ谷駅]の貸倉庫物件の詳細はこちら](/bukken_imgs/thumb/RBS34766-img1_big.jpg)
![下永谷 横浜市営地下鉄ブルーライン[下永谷駅]の貸倉庫物件の詳細はこちら](/bukken_imgs/thumb/RBK34765-img1_big.jpg)
![大棚町 横浜市営地下鉄ブルーライン[センター北]の貸倉庫物件の詳細はこちら](/bukken_imgs/thumb/RBK34762-img1_big.jpg)
![新町 JR青梅線[小作駅]の貸工場・貸倉庫物件の詳細はこちら](/bukken_imgs/thumb/RBT24183-img1_big.jpg)
![奥戸 京成押上線[京成立石駅]の貸倉庫物件の詳細はこちら](/bukken_imgs/thumb/RBT29935-img1_big.jpg)
![神田須田町 東京メトロ丸ノ内線[淡路町駅]の貸倉庫物件の詳細はこちら](/bukken_imgs/thumb/RBT34759-img1_big.jpg)
![中野 JR武蔵野線[吉川駅]の貸工場・貸倉庫物件の詳細はこちら](/bukken_imgs/thumb/RBS34754-img1_big.jpg)
![篠原町 横浜市高速鉄道1号線・3号線[岸根公園駅]の貸倉庫物件の詳細はこちら](/bukken_imgs/thumb/RBK34752-img1_big.jpg)
![中央港 JR京葉線[千葉みなと駅]の貸倉庫物件の詳細はこちら](/bukken_imgs/thumb/RBC14781-img1_big.jpg)
![前川 JR京浜東北線[蕨駅]の貸倉庫物件の詳細はこちら](/bukken_imgs/thumb/RBS34749-img1_big.jpg)
![花栗 東武伊勢崎線[獨協大学前〈草加松原〉駅]の貸倉庫物件の詳細はこちら](/bukken_imgs/thumb/RBS34748-img1_big.jpg)
![恩多町 西武新宿線[久米川駅]の貸工場・貸倉庫物件の詳細はこちら](/bukken_imgs/thumb/RBT34745-img1_big.jpg)
![小松原 小田急江ノ島線[南林間駅]の貸工場・貸倉庫物件の詳細はこちら](/bukken_imgs/thumb/RBK34744-img1_big.jpg)
![新小岩 JR中央・総武緩行線[新小岩駅]の貸倉庫物件の詳細はこちら](/bukken_imgs/thumb/RBT34740-img1_big.jpg)
![金久保 JR高崎線[神保原駅]の貸倉庫物件の詳細はこちら](/bukken_imgs/thumb/RBS34739-img1_big.jpg)




