貸倉庫 国立市 JR南武線谷保駅 の貸倉庫 (募集は終了しました。)
| 物件No. | RBT30951 |
|---|---|
| 最寄駅 所在地 |
JR南武線「谷保駅」 東京都国立市 |
| 賃料 | 498,000円 礼 1ヶ月 / 保 3ヶ月 |
国立市-貸倉庫・貸し倉庫・賃貸倉庫
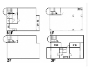
- Point 1鉄骨鉄筋コンクリート造地下1階付3階建て
- Point 2国立市|1階・2階はスケルトン、3階住居
- Point 3第一種中高層住居専用地域
| 物件No. | RBT30951 | ||
|---|---|---|---|
| 所在地 | 東京都国立市 | ||
| 交通 ※駅までの直線距離で自動表示 実際の交通とは異なります。 |
JR南武線 「谷保駅」 JR南武線 「矢川駅」 JR中央線(快速) 「国立駅」 | ||
| 賃料(月額) | 498,000円 | 管理費(月額) | |
| 敷金/保証金 | 保 3ヶ月 | 礼金 | 1ヶ月 |
| 建物面積 | 約67坪 | ||
| 土地面積 | 約38坪 | ||
| 構造・規模 | 鉄骨鉄筋コンクリート造地下1階付3階建て | ||
| 築年月 | 1993年7月 | ||
| 接道状況 | |||
| 設備 | トイレ キッチン シャワールーム バス | ||
| 備考 | 消費税10%込表示。 ■■■ 個別提案によるマッチングサポート ■■■ 入手する物件情報は、オーナー様より直接、不動産業者、士業者、デベロッパーなどこれまでの取引を通じたネットワークによるものです。 ホームページに公開していない物件も多数ございます。 掲載をご希望されていない物件や、経済条件が決定していない物件などは公開されません。 公開できない物件情報については、いただいているお客様のご要望の中からマッチングして個別に提案させて頂いております。 ホームページに公開されている物件は、取扱物件全体のわずか一部です。 ホームページにマッチする物件がない場合でも、お気軽にご要望をお知らせください。 事業用不動産の賃貸・売買を取り巻く環境は絶えず変化しています。 最近の大きな変化では、2020年4月1日施行の民法改正があります。 また、お客様のコンプライアンスに関する基本方針も日々変化しています。 こうした環境変化・多様化するニーズに対応しながら、お客様のご要望に対し、全力でサポートいたします。 |
||
| 取引態様 | 媒介 | ||
|
こちらの物件は、募集終了しました。 他の物件検索はこちら |
|||
お問い合わせ可能な国立市周辺の貸工場・貸倉庫物件
座標の取得が出来ない場合など大きくずれを生じる場合があります。
貸倉庫
![西 JR中央線[国立駅]の貸倉庫物件の詳細はこちら](https://www.tatsuwa.com/bukken_imgs/thumb/RBT22390-img1_sch.jpg)
国立市西
[国立駅]
350.00㎡ (105.87坪)
715,000円
貸工場・貸倉庫
![西原町 JR武蔵野線[北府中駅]の貸工場・貸倉庫物件の詳細はこちら](https://www.tatsuwa.com/bukken_imgs/thumb/RBT33812-img1_sch.jpg)
府中市西原町
[北府中駅]
951.05㎡ (287.69坪)
2,200,000円
貸倉庫
![武蔵台 JR武蔵野線[北府中駅]の貸倉庫物件の詳細はこちら](https://www.tatsuwa.com/bukken_imgs/thumb/RBT32846-img1_sch.jpg)
府中市武蔵台
[北府中駅]
17,382.30㎡ (5,258.13坪)
相談
貸倉庫
![錦町 JR中央本線[立川駅]の貸倉庫物件の詳細はこちら](https://www.tatsuwa.com/bukken_imgs/thumb/RBT19209-img1_sch.jpg)
立川市錦町
[立川駅]
564.08㎡ (170.63坪)
970,000円
貸倉庫
![柴崎町 JR中央本線[立川駅]の貸倉庫物件の詳細はこちら](https://www.tatsuwa.com/bukken_imgs/thumb/RBT34507-img1_sch.jpg)
立川市柴崎町
[立川駅]
78.60㎡ (23.77坪)
220,000円
貸倉庫
![幸町 多摩都市モノレール線[砂川七番駅]の貸倉庫物件の詳細はこちら](https://www.tatsuwa.com/bukken_imgs/thumb/RBT32324-img1_sch.jpg)
立川市幸町
[砂川七番駅]
767.76㎡ (232.24坪)
1,870,000円
貸工場・貸倉庫
![新町 JR中央線(快速)[東小金井駅]の貸工場・貸倉庫物件の詳細はこちら](https://www.tatsuwa.com/bukken_imgs/thumb/RBT33315-img1_sch.jpg)
日野市新町
[東小金井駅]
4,298.87㎡ (1,300.40坪)
7,553,948円
貸工場・貸倉庫
![新町 JR八高線(八王子~高麗川)[小宮駅]の貸工場・貸倉庫物件の詳細はこちら](https://www.tatsuwa.com/bukken_imgs/thumb/RBT33892-img1_sch.jpg)
日野市新町
[小宮駅]
2,414.38㎡ (730.34坪)
4,418,600円
貸工場・貸倉庫
![新町 JR八高線(八王子~高麗川)[小宮駅]の貸工場・貸倉庫物件の詳細はこちら](https://www.tatsuwa.com/bukken_imgs/thumb/RBT34312-img1_sch.jpg)
日野市新町
[小宮駅]
4,298.89㎡ (1,300.41坪)
7,553,948円
貸倉庫
![立野 多摩都市モノレール線[桜街道駅]の貸倉庫物件の詳細はこちら](https://www.tatsuwa.com/bukken_imgs/thumb/RBT32840-img1_sch.jpg)
東大和市立野
[桜街道駅]
534.81㎡ (161.78坪)
720,000円
貸工場・貸倉庫
![武蔵野 西武拝島線[西武立川駅]の貸工場・貸倉庫物件の詳細はこちら](https://www.tatsuwa.com/bukken_imgs/thumb/RBT19941-img1_sch.jpg)
昭島市武蔵野
[西武立川駅]
367.35㎡ (111.12坪)
440,000円
貸倉庫
![東平山 JR中央本線(東京~塩尻)[豊田駅]の貸倉庫物件の詳細はこちら](https://www.tatsuwa.com/bukken_imgs/thumb/RBT33231-img1_sch.jpg)
日野市東平山
[豊田駅]
22.44㎡ (6.78坪)
110,000円
貸工場・貸倉庫
![高倉町 JR横浜線[八王子駅]の貸工場・貸倉庫物件の詳細はこちら](https://www.tatsuwa.com/bukken_imgs/thumb/RBT33660-img1_sch.jpg)
八王子市高倉町
[八王子駅]
213.59㎡ (64.61坪)
400,000円
貸倉庫
![狭山 西武多摩湖線[武蔵大和駅]の貸倉庫物件の詳細はこちら](https://www.tatsuwa.com/bukken_imgs/thumb/RBT32600-img1_sch.jpg)
東大和市狭山
[武蔵大和駅]
288.00㎡ (87.12坪)
440,000円
貸倉庫
![榎 多摩都市モノレール線[上北台駅]の貸倉庫物件の詳細はこちら](https://www.tatsuwa.com/bukken_imgs/thumb/RBT30670-img1_sch.jpg)
武蔵村山市榎
[上北台駅]
997.02㎡ (301.59坪)
1,426,568円
貸倉庫
![田中町 JR青梅線[昭島駅]の貸倉庫物件の詳細はこちら](https://www.tatsuwa.com/bukken_imgs/thumb/RBT34034-img1_sch.jpg)
昭島市田中町
[昭島駅]
86.78㎡ (26.25坪)
200,000円
貸倉庫
![松原町 JR青梅線[拝島駅]の貸倉庫物件の詳細はこちら](https://www.tatsuwa.com/bukken_imgs/thumb/RBT32800-img1_sch.jpg)
昭島市松原町
[拝島駅]
853.99㎡ (258.33坪)
1,100,000円
貸倉庫
![南黒川 小田急多摩線[黒川駅]の貸倉庫物件の詳細はこちら](https://www.tatsuwa.com/bukken_imgs/thumb/RBK33800-img1_sch.jpg)
川崎市麻生区南黒川
[黒川駅]
115.70㎡ (35.00坪)
350,000円
貸倉庫
![恩多町 西武新宿線[久米川駅]の貸倉庫物件の詳細はこちら](https://www.tatsuwa.com/bukken_imgs/thumb/RBT03848-img1_sch.jpg)
東村山市恩多町
[久米川駅]
1,473.34㎡ (445.68坪)
2,108,066円
貸倉庫
![野口町 西武新宿線[東村山駅]の貸倉庫物件の詳細はこちら](https://www.tatsuwa.com/bukken_imgs/thumb/RBT33633-img1_sch.jpg)
東村山市野口町
[東村山駅]
124.50㎡ (37.66坪)
275,000円
貸工場・貸倉庫
![伊奈平 西武拝島線[武蔵砂川駅]の貸工場・貸倉庫物件の詳細はこちら](https://www.tatsuwa.com/bukken_imgs/thumb/RBT33707-img1_sch.jpg)
武蔵村山市伊奈平
[武蔵砂川駅]
983.28㎡ (297.44坪)
1,320,000円
貸倉庫
![小野路町 小田急多摩線[小田急多摩センター駅]の貸倉庫物件の詳細はこちら](https://www.tatsuwa.com/bukken_imgs/thumb/RBT34592-img1_sch.jpg)
町田市小野路町
[小田急多摩センター駅]
49.58㎡ (15.00坪)
242,000円
貸工場・貸倉庫
![残堀 西武拝島線[西武立川駅]の貸工場・貸倉庫物件の詳細はこちら](https://www.tatsuwa.com/bukken_imgs/thumb/RBT34375-img1_sch.jpg)
武蔵村山市残堀
[西武立川駅]
77.76㎡ (23.52坪)
216,051円
貸工場・貸倉庫
![残堀 西武拝島線[西武立川駅]の貸工場・貸倉庫物件の詳細はこちら](https://www.tatsuwa.com/bukken_imgs/thumb/RBT34374-img1_sch.jpg)
武蔵村山市残堀
[西武立川駅]
80.61㎡ (24.38坪)
223,949円
貸工場・貸倉庫
![残堀 西武拝島線[西武立川駅]の貸工場・貸倉庫物件の詳細はこちら](https://www.tatsuwa.com/bukken_imgs/thumb/RBT34103-img1_sch.jpg)
武蔵村山市残堀
[西武立川駅]
331.07㎡ (100.15坪)
605,000円
貸工場・貸倉庫
![残堀 西武拝島線[西武立川駅]の貸工場・貸倉庫物件の詳細はこちら](https://www.tatsuwa.com/bukken_imgs/thumb/RBT34373-img1_sch.jpg)
武蔵村山市残堀
[西武立川駅]
158.37㎡ (47.90坪)
440,000円
貸工場・貸倉庫
![残堀 西武拝島線[西武立川駅]の貸工場・貸倉庫物件の詳細はこちら](https://www.tatsuwa.com/bukken_imgs/thumb/RBT34359-img1_sch.jpg)
武蔵村山市残堀
[西武立川駅]
137.16㎡ (41.49坪)
220,000円
貸工場・貸倉庫
![残堀 西武拝島線[西武立川駅]の貸工場・貸倉庫物件の詳細はこちら](https://www.tatsuwa.com/bukken_imgs/thumb/RBT33126-img1_sch.jpg)
武蔵村山市残堀
[西武立川駅]
106.00㎡ (32.06坪)
230,000円
貸倉庫
![熊川 西武拝島線[拝島駅]の貸倉庫物件の詳細はこちら](https://www.tatsuwa.com/bukken_imgs/thumb/RBT28295-img1_sch.jpg)
福生市熊川
[拝島駅]
134.41㎡ (40.65坪)
330,000円
貸倉庫
![中原 JR八高線[箱根ヶ崎駅]の貸倉庫物件の詳細はこちら](https://www.tatsuwa.com/bukken_imgs/thumb/RBT26672-img1_sch.jpg)
武蔵村山市中原
[箱根ヶ崎駅]
419.10㎡ (126.77坪)
462,000円
貸倉庫
![高石 小田急小田原線[読売ランド前駅]の貸倉庫物件の詳細はこちら](https://www.tatsuwa.com/bukken_imgs/thumb/RBK33424-img1_sch.jpg)
川崎市麻生区高石
[読売ランド前駅]
100.00㎡ (30.25坪)
330,000円
貸倉庫
![佐須町 京王線[布田駅]の貸倉庫物件の詳細はこちら](https://www.tatsuwa.com/bukken_imgs/thumb/RBT01365-img1_sch.jpg)
調布市佐須町
[布田駅]
1,182.01㎡ (357.55坪)
3,034,356円
貸倉庫
![野津田町 小田急小田原線[町田駅]の貸倉庫物件の詳細はこちら](https://www.tatsuwa.com/bukken_imgs/thumb/RBT23997-img1_sch.jpg)
町田市野津田町
[町田駅]
104.13㎡ (31.50坪)
350,000円
貸工場・貸倉庫
![野津田町 京王相模原線[京王多摩センター駅]の貸工場・貸倉庫物件の詳細はこちら](https://www.tatsuwa.com/bukken_imgs/thumb/RBT34101-img1_sch.jpg)
町田市野津田町
[京王多摩センター駅]
473.38㎡ (143.19坪)
330,000円
貸工場・貸倉庫
![野津田町 京王相模原線[京王多摩センター駅]の貸工場・貸倉庫物件の詳細はこちら](https://www.tatsuwa.com/bukken_imgs/thumb/RBT33595-img1_sch.jpg)
町田市野津田町
[京王多摩センター駅]
946.76㎡ (286.39坪)
1,320,000円
貸工場・貸倉庫
![野津田町 京王相模原線[京王多摩センター駅]の貸工場・貸倉庫物件の詳細はこちら](https://www.tatsuwa.com/bukken_imgs/thumb/RBT33594-img1_sch.jpg)
町田市野津田町
[京王多摩センター駅]
461.70㎡ (139.66坪)
693,000円
貸倉庫
![図師町 小田急小田原線[町田駅]の貸倉庫物件の詳細はこちら](https://www.tatsuwa.com/bukken_imgs/thumb/RBT17662-img1_sch.jpg)
町田市図師町
[町田駅]
82.00㎡ (24.80坪)
200,000円
貸倉庫
![染地 京王線[布田駅]の貸倉庫物件の詳細はこちら](https://www.tatsuwa.com/bukken_imgs/thumb/RBT33404-img1_sch.jpg)
調布市染地
[布田駅]
310.00㎡ (93.77坪)
730,000円
貸倉庫
![柴崎 京王線[つつじヶ丘駅]の貸倉庫物件の詳細はこちら](https://www.tatsuwa.com/bukken_imgs/thumb/RBT27813-img1_sch.jpg)
調布市柴崎
[つつじヶ丘駅]
172.14㎡ (52.07坪)
220,000円
貸倉庫
![東伏見 西武新宿線[東伏見駅]の貸倉庫物件の詳細はこちら](https://www.tatsuwa.com/bukken_imgs/thumb/RBT34398-img1_sch.jpg)
西東京市東伏見
[東伏見駅]
70.80㎡ (21.41坪)
220,000円
貸倉庫
![台町 JR中央線[西八王子駅]の貸倉庫物件の詳細はこちら](https://www.tatsuwa.com/bukken_imgs/thumb/RBT28524-img1_sch.jpg)
八王子市台町
[西八王子駅]
64.02㎡ (19.36坪)
143,000円
貸倉庫
![菊野台 京王線[柴崎駅]の貸倉庫物件の詳細はこちら](https://www.tatsuwa.com/bukken_imgs/thumb/RBT30720-img1_sch.jpg)
調布市菊野台
[柴崎駅]
245.60㎡ (74.29坪)
660,000円
貸倉庫
![上安松 西武池袋線[秋津駅]の貸倉庫物件の詳細はこちら](https://www.tatsuwa.com/bukken_imgs/thumb/RBS33288-img1_sch.jpg)
所沢市上安松
[秋津駅]
211.00㎡ (63.82坪)
352,000円
貸倉庫
![宮下町 JR五日市線[秋川駅]の貸倉庫物件の詳細はこちら](https://www.tatsuwa.com/bukken_imgs/thumb/RBT33025-img1_sch.jpg)
八王子市宮下町
[秋川駅]
100.61㎡ (30.43坪)
165,000円
貸倉庫
![泉町 西武新宿線[航空公園駅]の貸倉庫物件の詳細はこちら](https://www.tatsuwa.com/bukken_imgs/thumb/RBS33246-img1_sch.jpg)
所沢市泉町
[航空公園駅]
344.55㎡ (104.22坪)
737,000円
貸工場・貸倉庫
![淵野辺 JR横浜線[淵野辺駅]の貸工場・貸倉庫物件の詳細はこちら](https://www.tatsuwa.com/bukken_imgs/thumb/RBK30118-img1_sch.jpg)
相模原市中央区淵野辺
[淵野辺駅]
2,852.45㎡ (862.87坪)
備考のとおり
貸工場・貸倉庫
![淵野辺 JR横浜線[淵野辺駅]の貸工場・貸倉庫物件の詳細はこちら](https://www.tatsuwa.com/bukken_imgs/thumb/RBK30034-img1_sch.jpg)
相模原市中央区淵野辺
[淵野辺駅]
13,855.30㎡ (4,191.25坪)
備考のとおり
貸工場・貸倉庫
![淵野辺 JR横浜線[淵野辺駅]の貸工場・貸倉庫物件の詳細はこちら](https://www.tatsuwa.com/bukken_imgs/thumb/RBK30121-img1_sch.jpg)
相模原市中央区淵野辺
[淵野辺駅]
11,461.70㎡ (3,467.18坪)
備考のとおり
貸工場・貸倉庫
![淵野辺 JR横浜線[淵野辺駅]の貸工場・貸倉庫物件の詳細はこちら](https://www.tatsuwa.com/bukken_imgs/thumb/RBK30116-img1_sch.jpg)
相模原市中央区淵野辺
[淵野辺駅]
2,527.59㎡ (764.60坪)
備考のとおり
貸工場・貸倉庫
![淵野辺 JR横浜線[淵野辺駅]の貸工場・貸倉庫物件の詳細はこちら](https://www.tatsuwa.com/bukken_imgs/thumb/RBK30036-img1_sch.jpg)
相模原市中央区淵野辺
[淵野辺駅]
13,974.70㎡ (4,227.36坪)
備考のとおり
貸工場・貸倉庫
![淵野辺 JR横浜線[淵野辺駅]の貸工場・貸倉庫物件の詳細はこちら](https://www.tatsuwa.com/bukken_imgs/thumb/RBK30125-img1_sch.jpg)
相模原市中央区淵野辺
[淵野辺駅]
28,441.10㎡ (8,603.45坪)
備考のとおり
貸工場・貸倉庫
![淵野辺 JR横浜線[淵野辺駅]の貸工場・貸倉庫物件の詳細はこちら](https://www.tatsuwa.com/bukken_imgs/thumb/RBK30123-img1_sch.jpg)
相模原市中央区淵野辺
[淵野辺駅]
18,180.00㎡ (5,499.45坪)
備考のとおり
貸工場・貸倉庫
![淵野辺 JR横浜線[淵野辺駅]の貸工場・貸倉庫物件の詳細はこちら](https://www.tatsuwa.com/bukken_imgs/thumb/RBK30124-img1_sch.jpg)
相模原市中央区淵野辺
[淵野辺駅]
12,579.00㎡ (3,805.15坪)
備考のとおり
貸工場・貸倉庫
![淵野辺 JR横浜線[淵野辺駅]の貸工場・貸倉庫物件の詳細はこちら](https://www.tatsuwa.com/bukken_imgs/thumb/RBK30119-img1_sch.jpg)
相模原市中央区淵野辺
[淵野辺駅]
2,770.37㎡ (838.04坪)
備考のとおり
貸工場・貸倉庫
![淵野辺 JR横浜線[淵野辺駅]の貸工場・貸倉庫物件の詳細はこちら](https://www.tatsuwa.com/bukken_imgs/thumb/RBK30120-img1_sch.jpg)
相模原市中央区淵野辺
[淵野辺駅]
2,646.97㎡ (800.71坪)
備考のとおり
貸倉庫
![東淵野辺 JR横浜線[古淵駅]の貸倉庫物件の詳細はこちら](https://www.tatsuwa.com/bukken_imgs/thumb/RBK30648-img1_sch.jpg)
相模原市中央区東淵野辺
[古淵駅]
103.50㎡ (31.30坪)
275,000円
貸倉庫
![狭山ヶ丘 西武池袋線[狭山ヶ丘駅]の貸倉庫物件の詳細はこちら](https://www.tatsuwa.com/bukken_imgs/thumb/RBS31960-img1_sch.jpg)
所沢市狭山ヶ丘
[狭山ヶ丘駅]
386.71㎡ (116.97坪)
550,000円
貸倉庫
![旭町 小田急小田原線[町田駅]の貸倉庫物件の詳細はこちら](https://www.tatsuwa.com/bukken_imgs/thumb/RBT30586-img1_sch.jpg)
町田市旭町
[町田駅]
62.20㎡ (18.81坪)
330,000円
貸倉庫
![中町 JR横浜線[町田駅]の貸倉庫物件の詳細はこちら](https://www.tatsuwa.com/bukken_imgs/thumb/RBT33990-img1_sch.jpg)
町田市中町
[町田駅]
237.80㎡ (71.93坪)
647,000円
貸倉庫
![上鶴間本町 小田急小田原線[相模大野駅]の貸倉庫物件の詳細はこちら](https://www.tatsuwa.com/bukken_imgs/thumb/RBK07277-img1_sch.jpg)
相模原市南区上鶴間本町
[相模大野駅]
1,486.93㎡ (449.79坪)
3,520,000円
ホームページに掲載されている国立市の貸工場・貸倉庫に関するFAQ
- Q1ホームページに掲載されている国立市周辺の貸工場・貸倉庫はあるのか?
- A1
こちらの貸工場・貸倉庫(RBT30951)の募集は終了しました。
参考情報としてご利用ください。
立和コーポレーションは首都圏の事業用物件を専門に取り扱う不動産会社です。
ホームページでは多くの貸工場・貸倉庫を公開しておりますが、これは取扱物件全体の一部で、公開されていない非公開物件も多数ございます。
非公開となっている貸工場・貸倉庫については、担当営業スタッフより個別提案とさせていただいております。
お探しのエリアの非公開物件の有無は、担当営業スタッフへお問い合わせください。
ご要望にマッチする物件が無い場合でも、担当営業スタッフによる新着情報からの随時提案や、ホームページには新着物件情報や更新情報を自動配信する物件さがしのサポートツール「新着お知らせメール」もあります。 - Q2国立市で貸工場・貸倉庫を探すためのポイント
- A2
1. 国立市周辺の事業用不動産市場の特性を知る
国立市周辺にて貸工場・貸倉庫を探す際は、市場動向や地域特性をしっかり理解することが重要です。
エリアごとの成長性や再開発情報を把握しておくと、将来的な事業展開にも役立ちます。
2. 貸工場・貸倉庫選びにおける重要なポイント
① 立地条件の確認
交通アクセスの良さは、事業の効率化や従業員の通勤利便性に直結します。
国立市周辺の交通アクセスを確認しましょう。
駅や高速道路のインターチェンジに近い物件は、物流効率や事業運営のスムーズさを高めるため、積極的に検討しましょう。
② 用途適合性の確認
物件選定時は、都市計画法で規定されている用途地域を確認することが必須です。
国立市周辺の用途地域を確認しましょう。
インターネットの検索エンジンで調べたい「市区町村名 都市計画図」と検索すればほとんどが閲覧できます。
各用途地域の制限の概略はこちらで確認できます。⇒用途地域による建築物の用途制限の概要資料
特定の業種の場合、物件利用に制限がかかる可能性があるため、事前に行政窓口や専門家に相談することをお勧めします。
③ コストと予算計画
東京都の主要エリアでは、人気物件ほど賃料や購入価格が高騰する傾向があります。
初期投資だけでなく、物件維持費、管理費、将来的な改修・設備投資などの費用も含めた総合的な予算計画を立てましょう。
3. 最適な貸工場・貸倉庫を見つけるために
国立市周辺で事業用物件を成功裏に選ぶためには、立地条件・用途規制・総合的なコストバランスを慎重に評価する必要があります。
また、最新情報を常に収集し、賢明な選択を心がけましょう。 - Q3国立市周辺の貸工場・貸倉庫を貸したい!
- A3
是非、お気軽にお問い合わせください!
・「簡易査定」「詳細査定」と無料査定を随時実施中です!
貸工場・貸倉庫の豊富な取り扱い経験から適正査定を行ないます。
・「専任媒介」「専属専任媒介」「サブリース」はもちろん!
「一般媒介」からもお受けいたします!
・非公開での賃貸仲介も可能です。
弊社のストロングポイント!貸工場・貸倉庫をおさがしのお客様へ個別提案を行ないます。
『安心と信頼の取引。早く高くを追及しています。』 - Q4賃貸管理もお願いできますか?
- A4
はい、承っております。
賃料の入金管理・回収業務、入居者との調整、修繕アドバイス、明渡しの立会い・精算業務など、オーナー様の事業用不動産経営におけるさまざまなご負担やご心配を軽減いたします。
■ キャンペーン概要
弊社媒介(「専任媒介」または「専属専任媒介」に限ります)で賃貸借契約を締結のうえ、
「賃貸管理契約」をご利用いただいたお客様には、管理費3ヵ月分を無料とさせていただきます。
■ リアルタイムで管理状況を報告
募集活動や管理業務の状況などを、できる限りリアルタイムでご報告。
日々の進捗はもちろん、現場や打ち合わせ時なども電話・メール・LINEで随時ご連絡可能です。
まずはお気軽にお問い合わせください!
国立市の貸倉庫についてのお知らせ・ニュース
事業用不動産取引の知恵袋|「準工業地域」とは?

「準工業地域」とは、住宅と軽工業施設が共存できる用途地域のことです。
環境を著しく悪化させない工場であれば建築可能で、職住近接を叶えたい事業者や、店舗兼作業場を持ちたい方にとって、非常に使い勝手の良いエリアです。
この地域の最大の魅力は、土地活用の柔軟性です。
一戸建てやマンションはもちろん、店舗、オフィス、倉庫、町工場など、多様な建物が許可されています。
しかし、落とし穴もあります。
「準工業地域ならどこでも条件は同じ」ではありません。
騒音や振動、操業時間などの細かい規制は、各自治体の「条例」によって大きく異なるからです。
同じ準工業地域でも、自治体が変われば「騒音・振動規制の変化」「使える機械の制限」などが変わるケースも珍しくありません。
失敗を防ぐためには、候補地の自治体が定める独自のルールを事前に確認することが不可欠です。
都市計画図をチェックするだけでなく、事業用不動産に詳しい専門家に相談し、周辺環境や条例について正確な情報を得ることが成功の鍵となります。
自由と利便性を兼ね備えた準工業地域を、賢く活用しましょう。
「使っていない工場・倉庫あるけど、このままでいいのか…」

貸し倉庫の用途・使用方法について
- 成約済み物件は当サイトに掲載していた物件情報で、成約済みとなった情報を一部抜粋して掲載しています。
- それぞれの物件情報について、すべての制限・情報が表示されているわけではありません。
- 参考資料としてご利用下さい。








