売工場 足立区 つくばエクスプレス六町駅 の売工場
| 物件No. | BBT34458 |
|---|---|
| 最寄駅 所在地 |
つくばエクスプレス「六町駅」徒歩25分 東京都足立区神明 |
| 価格 | 140,000,000円 |
| 建物面積 | 912.46㎡ (276.01坪) |
足立区-売工場・売買工場・作業場|準工業地域
- Point 1足立区|準工業地域
| 物件No. | BBT34458 | ||
|---|---|---|---|
| 所在地 | 東京都足立区神明 | ||
| 交通 | つくばエクスプレス 「六町駅」 徒歩25分 | ||
| 価格 | 140,000,000円 | ||
| 構造・規模 | 備考のとおり | ||
| 建物面積 | 912.46㎡ (276.01坪) | 土地面積 | 657.98㎡ (199.03坪) |
| 土地権利 | 所有権 | 地目 | 宅地 |
| 築年月 | 備考のとおり | ||
| 駐車場 | |||
| 現況 | |||
| 引渡し日 | 相談 | ||
| 都市計画 | 市街化区域 | ||
| 建ぺい率/容積率 | 60/200(300) | ||
| 用途地域 | 準工業地域 | ||
| 他の法令上制限 | 防火地域 準防火地域 第三種高度地区 | ||
| 接道状況 | 約4m私道 (図面参照) | ||
| 設備 | |||
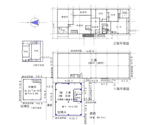
| 備考 | 【既存建物の概要】 本棟: 鉄骨造2階建て 工場・事務所・居宅 1978年10月築 1992年5月増築 別棟A: 鉄骨造2階建て 工場・居宅 1992年5月築 別棟B:(再建築不可) 木・鉄骨造2階建て 工場・居宅 1984年3月築 ■■■ 豊富なラインナップから見極め提案します! ■■■ 「立和コーポレーション」が取り扱う物件種目は、「物流施設」「工場」「商業施設」「社宅」などラインナップが豊富です。 売却情報については、ホームページに掲載していない物件も多数ございます。 オーナー様が掲載をご希望されていない物件や、目安価格があるものの価格が決定していない物件などは掲載されません。 また、情報拡散に向かない物件、経済条件が正式に決定していない場合は、ホームページに掲載することができない為、お客様の購入目的やご予算、希望のエリアに沿って個別に提案させて頂いております。 日々入手する売却情報から、お客様のご要望を満たす物件はどれか見極め提案します! ■■■ 関連キーワード(サイト内検索用) ■■■ 売買作業場 売買作業所用地 中古 査定 購入 売却 販売 売物件 |
||
| 取引態様 | 媒介 | ||
周辺地図
神明周辺の売工場・売倉庫物件
周辺の物件との距離の計測は、Googleマップを利用し、直線距離となっております。
交通距離とは異なりますのでご注意ください。
座標の取得が出来ない場合など大きくずれを生じる場合があります。
売倉庫
神明から約0.70km
![六木 つくばエクスプレス[八潮駅]の売倉庫物件の詳細はこちら](https://www.tatsuwa.com/bukken_imgs/thumb/BBT34648-img1_sch.jpg)
足立区六木
[八潮駅]
178.01㎡ (53.84坪)
64,800,000円
売工場
神明から約5.29km
![松江 東武伊勢崎線[草加駅]の売工場物件の詳細はこちら](https://www.tatsuwa.com/bukken_imgs/thumb/_sch.jpg)
草加市松江
[草加駅]
192.11㎡ (58.11坪)
59,000,000円
売倉庫
神明から約7.20km
![弥平 日暮里・舎人ライナー[舎人公園駅]の売倉庫物件の詳細はこちら](https://www.tatsuwa.com/bukken_imgs/thumb/BBS35095-img1_sch.jpg)
川口市弥平
[舎人公園駅]
496.95㎡ (150.32坪)
130,000,000円
売倉庫
神明から約10.18km
![後平井 つくばエクスプレス[流山セントラルパーク駅]の売倉庫物件の詳細はこちら](https://www.tatsuwa.com/bukken_imgs/thumb/_sch.jpg)
流山市後平井
[流山セントラルパーク駅]
980.00㎡ (296.45坪)
399,000,000円
売工場
神明から約13.26km
![駒木 東武野田線・つくばエクスプレス[流山おおたかの森駅]の売工場物件の詳細はこちら](https://www.tatsuwa.com/bukken_imgs/thumb/_sch.jpg)
流山市駒木
[流山おおたかの森駅]
463.93㎡ (140.33坪)
94,800,000円
売倉庫
神明から約14.38km
![西葛西 東京メトロ東西線[西葛西駅]の売倉庫物件の詳細はこちら](https://www.tatsuwa.com/bukken_imgs/thumb/BBT34730-img1_sch.jpg)
江戸川区西葛西
[西葛西駅]
380.97㎡ (115.24坪)
365,000,000円
売工場・売倉庫
神明から約16.68km
![新木場 JR京葉線・東京メトロ有楽町線・りんかい線[新木場駅]の売工場・売倉庫物件の詳細はこちら](https://www.tatsuwa.com/bukken_imgs/thumb/_sch.jpg)
江東区新木場
[新木場駅]
494.15㎡ (149.48坪)
750,000,000円
売工場・売倉庫
神明から約16.68km
![新木場 JR京葉線・東京メトロ有楽町線・りんかい線[新木場駅]の売工場・売倉庫物件の詳細はこちら](https://www.tatsuwa.com/bukken_imgs/thumb/_sch.jpg)
江東区新木場
[新木場駅]
605.04㎡ (183.02坪)
455,000,000円
売工場
神明から約18.19km
![筑比地 東武野田線[七光台駅]の売工場物件の詳細はこちら](https://www.tatsuwa.com/bukken_imgs/thumb/_sch.jpg)
北葛飾郡松伏町筑比地
[七光台駅]
395.00㎡ (119.48坪)
120,000,000円
売倉庫
神明から約18.66km
![岩名 東武野田線[川間駅]の売倉庫物件の詳細はこちら](https://www.tatsuwa.com/bukken_imgs/thumb/BBC34144-img1_sch.jpg)
野田市岩名
[川間駅]
150.70㎡ (45.58坪)
69,800,000円
売工場
神明から約22.59km
![膝折町 JR武蔵野線[北朝霞駅]の売工場物件の詳細はこちら](https://www.tatsuwa.com/bukken_imgs/thumb/BBS30046-img1_sch.jpg)
朝霞市膝折町
[北朝霞駅]
51.10㎡ (15.45坪)
39,800,000円
売工場
神明から約22.80km
![東大井 京急本線[鮫洲駅]の売工場物件の詳細はこちら](https://www.tatsuwa.com/bukken_imgs/thumb/BBT35148-img1_sch.jpg)
品川区東大井
[鮫洲駅]
49.92㎡ (15.10坪)
33,800,000円
売倉庫
神明から約27.18km
![栄 JR東北本線[蓮田駅]の売倉庫物件の詳細はこちら](https://www.tatsuwa.com/bukken_imgs/thumb/BBS34780-img1_sch.jpg)
北足立郡伊奈町栄
[蓮田駅]
925.75㎡ (280.03坪)
138,000,000円
売倉庫
神明から約28.54km
![こてはし台 京成本線・東葉高速線[勝田台駅]の売倉庫物件の詳細はこちら](https://www.tatsuwa.com/bukken_imgs/thumb/BBC35176-img1_sch.jpg)
千葉市花見川区こてはし台
[勝田台駅]
233.59㎡ (70.66坪)
48,800,000円
売倉庫
神明から約28.88km
![三角町 京成本線[京成大和田駅]の売倉庫物件の詳細はこちら](https://www.tatsuwa.com/bukken_imgs/thumb/BBC33392-img1_sch.jpg)
千葉市花見川区三角町
[京成大和田駅]
164.08㎡ (49.63坪)
57,700,000円
売工場
神明から約29.95km
![松郷 JR武蔵野線[東所沢駅]の売工場物件の詳細はこちら](https://www.tatsuwa.com/bukken_imgs/thumb/BBS34951-img1_sch.jpg)
所沢市松郷
[東所沢駅]
310.11㎡ (93.80坪)
128,000,000円
売倉庫
神明から約30.03km
![長沼原町 JR総武本線[稲毛駅]の売倉庫物件の詳細はこちら](https://www.tatsuwa.com/bukken_imgs/thumb/BBC34242-img1_sch.jpg)
千葉市稲毛区長沼原町
[稲毛駅]
1,091.47㎡ (330.16坪)
298,000,000円
売倉庫
神明から約31.51km
![池上新町 京急大師線[川崎大師駅]の売倉庫物件の詳細はこちら](https://www.tatsuwa.com/bukken_imgs/thumb/BBK35119-img1_sch.jpg)
川崎市川崎区池上新町
[川崎大師駅]
368.86㎡ (111.58坪)
150,000,000円
売工場・売倉庫
神明から約31.59km
![中富 西武池袋線・西武新宿線[所沢駅]の売工場・売倉庫物件の詳細はこちら](https://www.tatsuwa.com/bukken_imgs/thumb/BBS32376-img1_sch.jpg)
所沢市中富
[所沢駅]
1,708.41㎡ (516.79坪)
250,000,000円
売倉庫
神明から約34.13km
![鶴沢町 千葉都市モノレール1号線[葭川公園駅]の売倉庫物件の詳細はこちら](https://www.tatsuwa.com/bukken_imgs/thumb/BBC34924-img1_sch.jpg)
千葉市中央区鶴沢町
[葭川公園駅]
178.02㎡ (53.85坪)
33,800,000円
足立区神明の売工場・売倉庫に関するFAQ
- Q1ホームページに掲載されている物件以外に足立区神明周辺の売工場・売倉庫はあるのか?
- A1
当社のホームページに掲載されている売工場・売倉庫物件は、取扱物件全体の一部に過ぎません。
オーナー様が公開を希望されない物件や、募集条件が未確定の物件など、多数の非公開物件がございます。
これらの非公開物件につきましては、担当営業スタッフが個別にご提案させていただいております。
条件に合った売工場・売倉庫物件のご提案:
事業用不動産は物件特有の条件が強く、お客様のご要望も独自性が高いのが特徴です。
最近では供給も非常に少なく、物件探しは非常に大変になってきています。
お問い合わせいただくことで、担当スタッフがご希望に合った物件を探し、情報提供いたします。
公開物件に加え、非公開物件も含めた選択肢が広がります。
公開前の新着の売工場・売倉庫物件情報の入手:
物件種目やエリアによっては、募集開始から非常に人気となり、すぐにお申し込みが殺到する物件も多くあります。
こういった物件情報を公開前に入手することが可能となります。
売工場・売倉庫物件の情報配信サービスの利用:
お客様の希望条件に合った物件情報をメールにてタイムリーに配信するサービスも行っております。このサービスには非公開物件も含まれますので、より多くの情報を得ることができます。
立和コーポレーションの強み
独自ルートで収集した売工場・売倉庫物件情報:
オーナー様より直接いただく情報や、地元不動産会社様からの公開・非公開情報など、これまでの取引を通じたネットワークを大切にしております。
これにより、公開前の情報を担当スタッフから提供することが可能です。
専門性で的確なサポート:
物件種目や地域の特徴など、長年の経験と豊富な物件ラインナップを活かし、お客様の安全かつスムーズな不動産取引を全力でサポートいたします。
「なかなか条件に合う売工場・売倉庫が見つからない」という方は、ぜひお気軽にお問い合わせください。担当スタッフが全力でサポートいたします。
新着の売工場・売倉庫物件情報をいち早くゲット!「新着お知らせメール」
新着公開物件情報や更新情報を自動配信する物件さがしのサポートツール「新着お知らせメール」もあります。
新着物件情報を毎日自動でお知らせします!
届いたメールの中に気になる物件があれば、物件詳細ページで確認できます。
希望物件があればすぐに借りたい・買いたい方に便利な機能です。 - Q2足立区神明で売工場・売倉庫を探すためのポイント
- A2
1. 足立区神明周辺の事業用不動産市場の特性を知る
足立区神明周辺にて売工場・売倉庫を探す際は、市場動向や地域特性をしっかり理解することが重要です。
エリアごとの成長性や再開発情報を把握しておくと、将来的な事業展開にも役立ちます。
2. 売工場・売倉庫選びにおける重要なポイント
① 立地条件の確認
交通アクセスの良さは、事業の効率化や従業員の通勤利便性に直結します。
足立区神明周辺の交通アクセスを確認しましょう。
駅や高速道路のインターチェンジに近い物件は、物流効率や事業運営のスムーズさを高めるため、積極的に検討しましょう。
② 用途適合性の確認
物件選定時は、都市計画法で規定されている用途地域を確認することが必須です。
足立区神明周辺の用途地域を確認しましょう。
インターネットの検索エンジンで調べたい「市区町村名 都市計画図」と検索すればほとんどが閲覧できます。
各用途地域の制限の概略はこちらで確認できます。⇒用途地域による建築物の用途制限の概要資料
特定の業種の場合、物件利用に制限がかかる可能性があるため、事前に行政窓口や専門家に相談することをお勧めします。
③ コストと予算計画
東京都の主要エリアでは、人気物件ほど賃料や購入価格が高騰する傾向があります。
初期投資だけでなく、物件維持費、管理費、将来的な改修・設備投資などの費用も含めた総合的な予算計画を立てましょう。
3. 最適な売工場・売倉庫を見つけるために
足立区神明周辺で事業用物件を成功裏に選ぶためには、立地条件・用途規制・総合的なコストバランスを慎重に評価する必要があります。
また、最新情報を常に収集し、賢明な選択を心がけましょう。 - Q3足立区神明の売工場・売倉庫を売りたい!
- A3
是非、お気軽にお問い合わせください!
・「簡易査定」「詳細査定」と無料査定を随時実施中です!
売工場・売倉庫の豊富な取り扱い経験から適正査定を行ないます。
・「専任媒介」「専属専任媒介」はもちろん!
「一般媒介」からもお受けいたします!
・4つの売却方法を提案します!
①通常仲介
最も一般的な売却方法です。
売主様と買主様の間で立和コーポレーションが媒介し、売買取引をする方法です。
非公開での営業活動も可能です。
②業者買取(複数同時査定)
提携している事業用不動産の買取業者なかから、足立区神明の売工場・売倉庫を積極的に買取りする業者を複数社ご紹介させていただきます。
決済・引渡しまで立和コーポレーションが媒介し、売買取引の取りまとめを行ないます。
③買取保証
期限を決めて、その期日までに通常仲介にて売却できなかった場合に、あらかじめ取り決めた買取価格で買取業者へ売却する方法です。
通常仲介と業者買取の良い所取りです。
④リースバック買取
業者買取後、その買取業者と賃貸借契約を結びます。資金を得た後も賃料を支払うことで、これまでと同様にその不動産で事業を継続することができる方法です。
決済・引渡し・賃貸借契約まで立和コーポレーションが媒介し、取引の取りまとめを行ないます。
買取価格と賃料・契約期間など売買・賃貸とバランスを考慮し総合的に判断する必要があります。
複数業者で比較検討することが可能です。
『安心と信頼の取引。早く高くを追及しています。』 - Q4売却キャンペーンとは?
- A4
弊社にて不動産売却の仲介をご依頼いただいたお客様へ、お得なキャンペーンをご用意しております。
■ 空室管理サービス無料キャンペーン※1
売却期間中の空室維持管理(例:定期的な簡易清掃、換気など)を無料で行います。
売主様の負担を軽減し、物件価値の維持に努めます。
■ ギフト券プレゼントキャンペーン※2
売却成立時に5万円分のギフト券をプレゼント!
高く売れてさらにうれしい。
※1 設備機器の点検、修理・修繕、法定点検等の専門的な建物管理業務は対象外です。
※2 弊社の仲介によるお取引に限ります。お取引のお引渡し完了前に契約解除となった場合には適用されません。お取引のお引渡し完了をもって適用となります。弊社規定の仲介手数料をお支払いいただいたお客様に限ります。1つのお取引につき1回の適用となります。共有名義の場合には1名様のみ適用となります。その他弊社の規定による適用条件がございます。(不当景品類及び不当表示防止法による制限)
足立区の売工場についてのお知らせ・ニュース
建築確認済証・検査済証の必要性

建築確認済証は、建物を建てる前に計画が法令に合っていると確認されたことを示す書類です。
検査済証は、完成後に建物が計画どおりにつくられ、完了検査を終えたことを示す書類です。
書類がそろっていると、建物の履歴を確認しやすく、融資や各種手続きを進めやすくなります。
特に事業用不動産では、建物の活用方法に関わるため、重要性が高い書類です。
大切なのは、書類の内容と現在の建物の状態が一致しているかどうかです。
過去の増築や改修によって現況が変わっていると、後の手続きに影響することがあります。
そのため、書類の有無だけでなく、現況との一致も確認することが重要です。
特に銀行融資や用途変更を考える場合は、早めに有無を確認し、必要に応じて専門家に相談することが大切です。
契約前に書類と現況の両方を確認しておくことが、後のトラブル防止につながります。
当社の売工場・売倉庫査定が選ばれる理由は「“建物を活かす”評価」!

売工場・売倉庫について
この物件についてのお問い合わせ
東京都足立区神明 つくばエクスプレス 「六町駅」 徒歩25分の売工場物件です。
物件検索から内覧までの流れ
-

物件を検索する
エリア検索、路線検索、保存リストにて比較・検討ができますのでご利用ください。
-

お問い合わせする
お電話や、物件詳細ページのお問い合わせ、またはまとめてお問い合わせ等、各種フォームでのお問い合わせが可能です。
-

弊社よりご連絡
翌営業日までに担当営業からご連絡差し上げます。
-

ご内覧
担当営業立会いのもと、物件をご案内します。ご不明な点はお気軽にご質問ください。
電話でのお問い合わせ
物件No. : BBT34458
お電話でお問い合わせいただく場合は、東京店にご連絡いただくとスムーズです。
※神奈川店でもお受けいたしております。
東京店

または、神奈川店 042-759-5801
メールでのお問い合わせ
メールフォームでもお問い合わせいただけます。
必要項目をご入力ください。
- 各物件情報について、すべての制限・情報が表示されているわけではありません。
別途必要な費用・詳細情報等は、物件紹介時又は重要事項説明においてご説明いたします。 - 周辺地図は所在地周辺を表示しています。
(マーカーが無い場合は、町村まで表示しています。)
(マーカーがついている場合でも、表示サポート外に存在している場合は正確な位置を示していない場合があります。) - 募集状況は常時変動しているため、お問い合わせを頂いた時点でご紹介できない場合がございます。
経済条件は事情により変更されている場合がございます。








