売事業用地 厚木市 小田急小田原線本厚木駅 の売事業用地
| 物件No. | BLK34761 |
|---|---|
| 最寄駅 所在地 |
小田急小田原線「本厚木駅」バス12分 バス停徒歩5分 神奈川県厚木市下依知 |
| 価格 | 88,518,000円 |
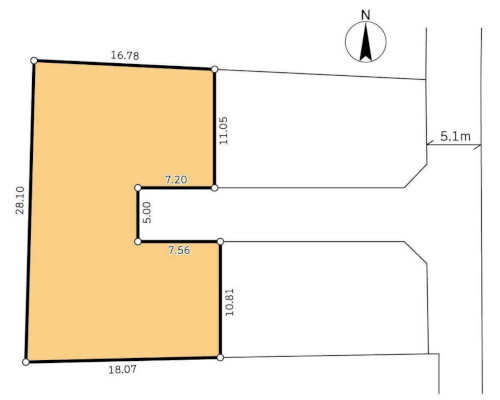
| 土地面積 | 442.59㎡ (133.88坪) |
厚木市-工場用地・営業所用地・事業用地
- Point 1道路幅員約5m(位置指定)
- Point 2厚木市|工業地域
- Point 3現況更地です。
| 物件No. | BLK34761 | ||
|---|---|---|---|
| 所在地 | 神奈川県厚木市下依知 | ||
| 交通 | 小田急小田原線 「本厚木駅」 バス12分 バス停徒歩5分 | ||
| 価格 | 88,518,000円 | ||
| 土地面積 | 442.59㎡ (133.88坪) | ||
| 土地権利 | 所有権 | 地目 | 雑種地 |
| 現況 | 更地 | 引渡し日 | 2026年4月予定 |
| 都市計画 | 市街化区域 | 建ぺい率/容積率 | 60/200 |
| 用途地域 | 工業地域 | ||
| 他の法令上制限 | |||
| 接道状況 | 道路幅員約5m(位置指定) | ||
| 設備 | |||
| 備考 | 私道持ち分あります。(138㎡×4/8) 地勢は平坦です。 ■■■ 売却事業用不動産を募集中です! ■■■ お客様リストから購入が想定されるお客様を選定し、営業活動を行ないます。 物件調査より物件概要書を作成し、お客様へ提案していきます。 不動産会社やファンド、事業法人など提案先を限定したアプローチや、ホームページ等への公開による情報の拡散をせずに個別の営業展開のみも行っています。 査定はもちろん「無料」です。 豊富な取り扱い経験から適性査定を行います。 ●とりあえず事業方針の検討材料に「簡易査定」 ●事業方針の決定に向けた精度の高い「詳細査定」 状況に合わせた査定方法をお選びいただけます。(関東>神奈川県:記事) ■■■ 関連キーワード(サイト内検索用) ■■■ 売地 売り地 土地 作業場用地 作業所用地 倉庫用地 アパート用地 福祉施設用地 売買 売却 検索 売物件 事業用不動産 とは |
||
| 取引態様 | 媒介 | ||
周辺地図
下依知周辺の売事業用地物件
周辺の物件との距離の計測は、Googleマップを利用し、直線距離となっております。
交通距離とは異なりますのでご注意ください。
座標の取得が出来ない場合など大きくずれを生じる場合があります。
売事業用地
下依知から約2.18km
![妻田西 小田急小田原線[本厚木駅]の売事業用地物件の詳細はこちら](https://www.tatsuwa.com/bukken_imgs/thumb/BLK35022-img1_sch.jpg)
厚木市妻田西
[本厚木駅]
284.37㎡ (86.02坪)
60,000,000円
売事業用地
下依知から約2.31km
![三田 小田急小田原線[本厚木駅]の売事業用地物件の詳細はこちら](https://www.tatsuwa.com/bukken_imgs/thumb/BLK33668-img1_sch.jpg)
厚木市三田
[本厚木駅]
1,104.00㎡ (333.96坪)
36,630,000円
売事業用地
下依知から約2.67km
![上今泉 JR相模線[入谷駅]の売事業用地物件の詳細はこちら](https://www.tatsuwa.com/bukken_imgs/thumb/BLK35180-img1_sch.jpg)
海老名市上今泉
[入谷駅]
837.19㎡ (253.24坪)
180,000,000円
売事業用地
下依知から約3.55km
![柏ヶ谷 相鉄本線[かしわ台駅]の売事業用地物件の詳細はこちら](https://www.tatsuwa.com/bukken_imgs/thumb/BLK34345-img1_sch.jpg)
海老名市柏ヶ谷
[かしわ台駅]
662.75㎡ (200.48坪)
32,800,000円
売事業用地
下依知から約3.55km
![柏ヶ谷 相鉄本線[かしわ台駅]の売事業用地物件の詳細はこちら](https://www.tatsuwa.com/bukken_imgs/thumb/BLK34346-img1_sch.jpg)
海老名市柏ヶ谷
[かしわ台駅]
1,174.29㎡ (355.22坪)
39,900,000円
売事業用地
下依知から約3.55km
![柏ヶ谷 相鉄本線[かしわ台駅]の売事業用地物件の詳細はこちら](https://www.tatsuwa.com/bukken_imgs/thumb/BLK34344-img1_sch.jpg)
海老名市柏ヶ谷
[かしわ台駅]
1,838.66㎡ (556.19坪)
69,500,000円
売事業用地
下依知から約3.57km
![下荻野 小田急小田原線[本厚木駅]の売事業用地物件の詳細はこちら](https://www.tatsuwa.com/bukken_imgs/thumb/BLK30772-img1_sch.jpg)
厚木市下荻野
[本厚木駅]
2,953.06㎡ (893.30坪)
44,800,000円
売事業用地
下依知から約5.67km
![愛名 小田急小田原線[愛甲石田駅]の売事業用地物件の詳細はこちら](https://www.tatsuwa.com/bukken_imgs/thumb/_sch.jpg)
厚木市愛名
[愛甲石田駅]
1,382.00㎡ (418.05坪)
38,000,000円
売事業用地
下依知から約6.07km
![中津 JR相模線[原当麻駅]の売事業用地物件の詳細はこちら](https://www.tatsuwa.com/bukken_imgs/thumb/BLK32430-img1_sch.jpg)
愛甲郡愛川町中津
[原当麻駅]
5,248.78㎡ (1,587.75坪)
未定(予告広告)
売事業用地
下依知から約6.15km
![中津 小田急小田原線[本厚木駅]の売事業用地物件の詳細はこちら](https://www.tatsuwa.com/bukken_imgs/thumb/BLK35059-img1_sch.jpg)
愛甲郡愛川町中津
[本厚木駅]
569.94㎡ (172.40坪)
82,800,000円
売事業用地
下依知から約6.15km
![中津 小田急小田原線[本厚木駅]の売事業用地物件の詳細はこちら](https://www.tatsuwa.com/bukken_imgs/thumb/BLK34797-img1_sch.jpg)
愛甲郡愛川町中津
[本厚木駅]
491.20㎡ (148.58坪)
78,800,000円
売事業用地
下依知から約7.01km
![石田 小田急小田原線[愛甲石田駅]の売事業用地物件の詳細はこちら](https://www.tatsuwa.com/bukken_imgs/thumb/BLK34570-img1_sch.jpg)
伊勢原市石田
[愛甲石田駅]
488.11㎡ (147.65坪)
68,000,000円
売事業用地
下依知から約7.44km
![門沢橋 JR相模線[門沢橋駅]の売事業用地物件の詳細はこちら](https://www.tatsuwa.com/bukken_imgs/thumb/BLK34546-img1_sch.jpg)
海老名市門沢橋
[門沢橋駅]
1,138.33㎡ (344.34坪)
200,000,000円
売事業用地
下依知から約7.89km
![用田 小田急江ノ島線・相鉄いずみ野線・ブルーライン[湘南台駅]の売事業用地物件の詳細はこちら](https://www.tatsuwa.com/bukken_imgs/thumb/BLK32719-img1_sch.jpg)
藤沢市用田
[湘南台駅]
3,908.45㎡ (1,182.30坪)
194,000,000円
売事業用地
下依知から約7.89km
![用田 小田急江ノ島線・相鉄いずみ野線・横浜市高速鉄道1号線・3号線[湘南台駅]の売事業用地物件の詳細はこちら](https://www.tatsuwa.com/bukken_imgs/thumb/BLK31347-img1_sch.jpg)
藤沢市用田
[湘南台駅]
14,415.53㎡ (4,360.69坪)
450,000,000円
売事業用地
下依知から約7.89km
![用田 小田急江ノ島線・相鉄いずみ野線・ブルーライン[湘南台駅]の売事業用地物件の詳細はこちら](https://www.tatsuwa.com/bukken_imgs/thumb/BLK35061-img1_sch.jpg)
藤沢市用田
[湘南台駅]
164.00㎡ (49.61坪)
30,800,000円
売事業用地
下依知から約7.89km
![用田 小田急江ノ島線・相鉄いずみ野線・ブルーライン[湘南台駅]の売事業用地物件の詳細はこちら](https://www.tatsuwa.com/bukken_imgs/thumb/BLK32721-img1_sch.jpg)
藤沢市用田
[湘南台駅]
3,185.24㎡ (963.53坪)
158,200,000円
売事業用地
下依知から約7.89km
![用田 小田急江ノ島線・相鉄いずみ野線・ブルーライン[湘南台駅]の売事業用地物件の詳細はこちら](https://www.tatsuwa.com/bukken_imgs/thumb/BLK32720-img1_sch.jpg)
藤沢市用田
[湘南台駅]
1,967.10㎡ (595.04坪)
97,700,000円
売事業用地
下依知から約8.57km
![相模大野 小田急小田原線[相模大野駅]の売事業用地物件の詳細はこちら](https://www.tatsuwa.com/bukken_imgs/thumb/_sch.jpg)
相模原市南区相模大野
[相模大野駅]
201.39㎡ (60.92坪)
64,800,000円
売事業用地
下依知から約10.07km
![千代田 JR横浜線[矢部駅]の売事業用地物件の詳細はこちら](https://www.tatsuwa.com/bukken_imgs/thumb/BLK34829-img1_sch.jpg)
相模原市中央区千代田
[矢部駅]
113.28㎡ (34.26坪)
27,400,000円
厚木市下依知の売事業用地に関するFAQ
- Q1ホームページに掲載されている物件以外に厚木市下依知周辺の売事業用地はあるのか?
- A1
当社のホームページに掲載されている売事業用地物件は、取扱物件全体の一部に過ぎません。
オーナー様が公開を希望されない物件や、募集条件が未確定の物件など、多数の非公開物件がございます。
これらの非公開物件につきましては、担当営業スタッフが個別にご提案させていただいております。
条件に合った売事業用地物件のご提案:
事業用不動産は物件特有の条件が強く、お客様のご要望も独自性が高いのが特徴です。
最近では供給も非常に少なく、物件探しは非常に大変になってきています。
お問い合わせいただくことで、担当スタッフがご希望に合った物件を探し、情報提供いたします。
公開物件に加え、非公開物件も含めた選択肢が広がります。
公開前の新着の売事業用地物件情報の入手:
物件種目やエリアによっては、募集開始から非常に人気となり、すぐにお申し込みが殺到する物件も多くあります。
こういった物件情報を公開前に入手することが可能となります。
売事業用地物件の情報配信サービスの利用:
お客様の希望条件に合った物件情報をメールにてタイムリーに配信するサービスも行っております。このサービスには非公開物件も含まれますので、より多くの情報を得ることができます。
立和コーポレーションの強み
独自ルートで収集した売事業用地物件情報:
オーナー様より直接いただく情報や、地元不動産会社様からの公開・非公開情報など、これまでの取引を通じたネットワークを大切にしております。
これにより、公開前の情報を担当スタッフから提供することが可能です。
専門性で的確なサポート:
物件種目や地域の特徴など、長年の経験と豊富な物件ラインナップを活かし、お客様の安全かつスムーズな不動産取引を全力でサポートいたします。
「なかなか条件に合う売事業用地が見つからない」という方は、ぜひお気軽にお問い合わせください。担当スタッフが全力でサポートいたします。
新着の売事業用地物件情報をいち早くゲット!「新着お知らせメール」
新着公開物件情報や更新情報を自動配信する物件さがしのサポートツール「新着お知らせメール」もあります。
新着物件情報を毎日自動でお知らせします!
届いたメールの中に気になる物件があれば、物件詳細ページで確認できます。
希望物件があればすぐに借りたい・買いたい方に便利な機能です。 - Q2厚木市下依知で売事業用地を探すためのポイント
- A2
1. 厚木市下依知周辺の事業用不動産市場の特性を知る
厚木市下依知周辺にて売事業用地を探す際は、市場動向や地域特性をしっかり理解することが重要です。
エリアごとの成長性や再開発情報を把握しておくと、将来的な事業展開にも役立ちます。
2. 売事業用地選びにおける重要なポイント
① 立地条件の確認
交通アクセスの良さは、事業の効率化や従業員の通勤利便性に直結します。
厚木市下依知周辺の交通アクセスを確認しましょう。
駅や高速道路のインターチェンジに近い物件は、物流効率や事業運営のスムーズさを高めるため、積極的に検討しましょう。
② 用途適合性の確認
物件選定時は、都市計画法で規定されている用途地域を確認することが必須です。
厚木市下依知周辺の用途地域を確認しましょう。
インターネットの検索エンジンで調べたい「市区町村名 都市計画図」と検索すればほとんどが閲覧できます。
各用途地域の制限の概略はこちらで確認できます。⇒用途地域による建築物の用途制限の概要資料
特定の業種の場合、物件利用に制限がかかる可能性があるため、事前に行政窓口や専門家に相談することをお勧めします。
③ コストと予算計画
神奈川県の主要エリアでは、人気物件ほど賃料や購入価格が高騰する傾向があります。
初期投資だけでなく、物件維持費、管理費、将来的な改修・設備投資などの費用も含めた総合的な予算計画を立てましょう。
3. 最適な売事業用地を見つけるために
厚木市下依知周辺で事業用物件を成功裏に選ぶためには、立地条件・用途規制・総合的なコストバランスを慎重に評価する必要があります。
また、最新情報を常に収集し、賢明な選択を心がけましょう。 - Q3厚木市下依知の売事業用地を売りたい!
- A3
是非、お気軽にお問い合わせください!
・「簡易査定」「詳細査定」と無料査定を随時実施中です!
売事業用地の豊富な取り扱い経験から適正査定を行ないます。
・「専任媒介」「専属専任媒介」はもちろん!
「一般媒介」からもお受けいたします!
・4つの売却方法を提案します!
①通常仲介
最も一般的な売却方法です。
売主様と買主様の間で立和コーポレーションが媒介し、売買取引をする方法です。
非公開での営業活動も可能です。
②業者買取(複数同時査定)
提携している事業用不動産の買取業者なかから、厚木市下依知の売事業用地を積極的に買取りする業者を複数社ご紹介させていただきます。
決済・引渡しまで立和コーポレーションが媒介し、売買取引の取りまとめを行ないます。
③買取保証
期限を決めて、その期日までに通常仲介にて売却できなかった場合に、あらかじめ取り決めた買取価格で買取業者へ売却する方法です。
通常仲介と業者買取の良い所取りです。
④リースバック買取
業者買取後、その買取業者と賃貸借契約を結びます。資金を得た後も賃料を支払うことで、これまでと同様にその不動産で事業を継続することができる方法です。
決済・引渡し・賃貸借契約まで立和コーポレーションが媒介し、取引の取りまとめを行ないます。
買取価格と賃料・契約期間など売買・賃貸とバランスを考慮し総合的に判断する必要があります。
複数業者で比較検討することが可能です。
『安心と信頼の取引。早く高くを追及しています。』 - Q4売却キャンペーンとは?
- A4
弊社にて不動産売却の仲介をご依頼いただいたお客様へ、お得なキャンペーンをご用意しております。
■ 空室管理サービス無料キャンペーン※1
売却期間中の空室維持管理(例:定期的な簡易清掃、換気など)を無料で行います。
売主様の負担を軽減し、物件価値の維持に努めます。
■ ギフト券プレゼントキャンペーン※2
売却成立時に5万円分のギフト券をプレゼント!
高く売れてさらにうれしい。
※1 設備機器の点検、修理・修繕、法定点検等の専門的な建物管理業務は対象外です。
※2 弊社の仲介によるお取引に限ります。お取引のお引渡し完了前に契約解除となった場合には適用されません。お取引のお引渡し完了をもって適用となります。弊社規定の仲介手数料をお支払いいただいたお客様に限ります。1つのお取引につき1回の適用となります。共有名義の場合には1名様のみ適用となります。その他弊社の規定による適用条件がございます。(不当景品類及び不当表示防止法による制限)
厚木市の売事業用地についてのお知らせ・ニュース
建築確認済証・検査済証の必要性

建築確認済証は、建物を建てる前に計画が法令に合っていると確認されたことを示す書類です。
検査済証は、完成後に建物が計画どおりにつくられ、完了検査を終えたことを示す書類です。
書類がそろっていると、建物の履歴を確認しやすく、融資や各種手続きを進めやすくなります。
特に事業用不動産では、建物の活用方法に関わるため、重要性が高い書類です。
大切なのは、書類の内容と現在の建物の状態が一致しているかどうかです。
過去の増築や改修によって現況が変わっていると、後の手続きに影響することがあります。
そのため、書類の有無だけでなく、現況との一致も確認することが重要です。
特に銀行融資や用途変更を考える場合は、早めに有無を確認し、必要に応じて専門家に相談することが大切です。
契約前に書類と現況の両方を確認しておくことが、後のトラブル防止につながります。
「立和コーポレーション」の売事業用地査定が選ばれる理由!

「売りたい方へ」 売事業用地物件募集中です!
この物件についてのお問い合わせ
神奈川県厚木市下依知 小田急小田原線 「本厚木駅」 バス12分 バス停徒歩5分の売事業用地物件です。
物件検索から内覧までの流れ
-

物件を検索する
エリア検索、路線検索、保存リストにて比較・検討ができますのでご利用ください。
-

お問い合わせする
お電話や、物件詳細ページのお問い合わせ、またはまとめてお問い合わせ等、各種フォームでのお問い合わせが可能です。
-

弊社よりご連絡
翌営業日までに担当営業からご連絡差し上げます。
-

ご内覧
担当営業立会いのもと、物件をご案内します。ご不明な点はお気軽にご質問ください。
電話でのお問い合わせ
物件No. : BLK34761
お電話でお問い合わせいただく場合は、神奈川店にご連絡いただくとスムーズです。
※東京店でもお受けいたしております。
神奈川店

または、東京店 03-5572-7888
メールでのお問い合わせ
メールフォームでもお問い合わせいただけます。
必要項目をご入力ください。
- 各物件情報について、すべての制限・情報が表示されているわけではありません。
別途必要な費用・詳細情報等は、物件紹介時又は重要事項説明においてご説明いたします。 - 周辺地図は所在地周辺を表示しています。
(マーカーが無い場合は、町村まで表示しています。)
(マーカーがついている場合でも、表示サポート外に存在している場合は正確な位置を示していない場合があります。) - 募集状況は常時変動しているため、お問い合わせを頂いた時点でご紹介できない場合がございます。
経済条件は事情により変更されている場合がございます。








