貸事務所 葛飾区 京成本線青砥駅 の貸事務所
| 物件No. | RBT34284 |
|---|---|
| 最寄駅 所在地 |
京成本線「青砥駅」徒歩5分 東京都葛飾区青戸 |
| 賃料 | 935,000円 礼 2ヶ月 / 敷 2ヶ月 |
| 建物面積 | 733.47㎡ (221.87坪) |
葛飾区-貸事務所・貸し事務所・賃貸事務所
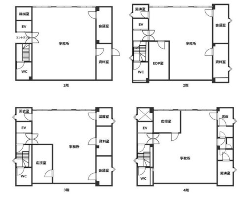
- Point 1鉄筋コンクリート造4階建て
- Point 2葛飾区|駐車場あり(無料)
- Point 3事務所や店舗利用に最適
| 物件No. | RBT34284 | ||
|---|---|---|---|
| 所在地 | 東京都葛飾区青戸 | ||
| 交通 | 京成本線 「青砥駅」 徒歩5分 京成本線 「京成高砂駅」 徒歩17分 |
||
| 賃料(月額) | 935,000円 | 管理費(月額) | なし |
| 敷金/保証金 | 敷 2ヶ月 | 礼金 | 2ヶ月 |
| 建物面積 | 733.47㎡ (221.87坪) | ||
| 土地面積 | |||
| 構造・規模 | 鉄筋コンクリート造4階建て | ||
| 築年月 | 1981年1月 | ||
| 接道状況 | |||
| 設備 | 男女別トイレ エレベーター 施設内会議室あり(無料) | ||
| 備考 | 消費税10%込表示。 ■■■ 独自の物件情報からマッチング ■■■ 事業用不動産取引は、物件特有の条件が強く、また賃借をご検討のお客様のご要望も独自性が強いのが特徴です。 これまで培った専門的な知識やさまざまな経験を基に、お客様の安全な不動産取引のお手伝いができるよう取り組んでいます。 事業用不動産専門だからこそ寄せられる独自の物件情報が豊富! オーナー様より直接の情報や、地元不動産会社様からの公開・非公開情報と、これまでの取引を通じたネットワークを大切にしています。 確かな物件情報から、賃借をご検討のお客様のご要望にマッチングするようご提案をさせていただきます。 ホームページに掲載されている物件は、取扱物件全体のわずか一部です。 まずは、ご希望の条件をお知らせください。 |
||
| 取引態様 | 媒介 | ||
周辺地図
青戸周辺の貸事務所物件
周辺の物件との距離の計測は、Googleマップを利用し、直線距離となっております。
交通距離とは異なりますのでご注意ください。
座標の取得が出来ない場合など大きくずれを生じる場合があります。
貸事務所
青戸から約2.64km
![東和 東京メトロ千代田線[北綾瀬駅]の貸事務所物件の詳細はこちら](https://www.tatsuwa.com/bukken_imgs/thumb/RBT27091-img1_sch.jpg)
足立区東和
[北綾瀬駅]
198.25㎡ (59.97坪)
1,265,000円
貸事務所
青戸から約4.89km
![千住河原町 京成本線[千住大橋駅]の貸事務所物件の詳細はこちら](https://www.tatsuwa.com/bukken_imgs/thumb/RBT27735-img1_sch.jpg)
足立区千住河原町
[千住大橋駅]
311.37㎡ (94.18坪)
770,000円
貸事務所
青戸から約4.91km
![松島 JR中央・総武緩行線[新小岩駅]の貸事務所物件の詳細はこちら](https://www.tatsuwa.com/bukken_imgs/thumb/_sch.jpg)
江戸川区松島
[新小岩駅]
167.00㎡ (50.51坪)
500,000円
貸事務所
青戸から約6.18km
![荒川 京成本線[新三河島駅]の貸事務所物件の詳細はこちら](https://www.tatsuwa.com/bukken_imgs/thumb/RBT31459-img1_sch.jpg)
荒川区荒川
[新三河島駅]
198.65㎡ (60.09坪)
680,000円
貸事務所
青戸から約6.19km
![浅草 つくばエクスプレス[浅草駅]の貸事務所物件の詳細はこちら](https://www.tatsuwa.com/bukken_imgs/thumb/_sch.jpg)
台東区浅草
[浅草駅]
58.28㎡ (17.62坪)
534,600円
貸事務所
青戸から約6.47km
![町屋 京成本線[町屋駅]の貸事務所物件の詳細はこちら](https://www.tatsuwa.com/bukken_imgs/thumb/RBT33779-img1_sch.jpg)
荒川区町屋
[町屋駅]
645.43㎡ (195.24坪)
2,580,000円
貸事務所
青戸から約6.57km
![大曽根 つくばエクスプレス[八潮駅]の貸事務所物件の詳細はこちら](https://www.tatsuwa.com/bukken_imgs/thumb/_sch.jpg)
八潮市大曽根
[八潮駅]
377.68㎡ (114.24坪)
660,000円
貸事務所
青戸から約7.03km
![根岸 JR山手線[鶯谷駅]の貸事務所物件の詳細はこちら](https://www.tatsuwa.com/bukken_imgs/thumb/RBT29126-img1_sch.jpg)
台東区根岸
[鶯谷駅]
128.40㎡ (38.84坪)
440,000円
貸事務所
青戸から約7.85km
![木曽根 首都圏新都市鉄道つくばエクスプレス[八潮駅]の貸事務所物件の詳細はこちら](https://www.tatsuwa.com/bukken_imgs/thumb/RBS33631-img1_sch.jpg)
八潮市木曽根
[八潮駅]
394.74㎡ (119.40坪)
770,000円
貸事務所
青戸から約7.85km
![木曽根 首都圏新都市鉄道つくばエクスプレス[八潮駅]の貸事務所物件の詳細はこちら](https://www.tatsuwa.com/bukken_imgs/thumb/RBS33547-img1_sch.jpg)
八潮市木曽根
[八潮駅]
158.70㎡ (48.00坪)
440,000円
貸事務所
青戸から約8.43km
![上野 JR山手線[御徒町駅]の貸事務所物件の詳細はこちら](https://www.tatsuwa.com/bukken_imgs/thumb/_sch.jpg)
台東区上野
[御徒町駅]
223.54㎡ (67.62坪)
1,650,000円
貸事務所
青戸から約8.43km
![上野 東京メトロ銀座線[上野広小路駅]の貸事務所物件の詳細はこちら](https://www.tatsuwa.com/bukken_imgs/thumb/_sch.jpg)
台東区上野
[上野広小路駅]
116.28㎡ (35.17坪)
1,309,000円
貸事務所
青戸から約8.58km
![緑町 東武伊勢崎線[草加駅]の貸事務所物件の詳細はこちら](https://www.tatsuwa.com/bukken_imgs/thumb/RBS28970-img1_sch.jpg)
八潮市緑町
[草加駅]
509.82㎡ (154.22坪)
1,100,000円
貸事務所
青戸から約8.94km
![神田佐久間町 JR山手線[秋葉原駅]の貸事務所物件の詳細はこちら](https://www.tatsuwa.com/bukken_imgs/thumb/_sch.jpg)
千代田区神田佐久間町
[秋葉原駅]
186.40㎡ (56.38坪)
770,000円
貸事務所
青戸から約8.95km
![弥生 東京メトロ南北線[東大前駅]の貸事務所物件の詳細はこちら](https://www.tatsuwa.com/bukken_imgs/thumb/RBT30488-img1_sch.jpg)
文京区弥生
[東大前駅]
74.36㎡ (22.49坪)
330,000円
貸事務所
青戸から約9.20km
![湯島 JR中央線(快速)[御茶ノ水駅]の貸事務所物件の詳細はこちら](https://www.tatsuwa.com/bukken_imgs/thumb/RBT32232-img1_sch.jpg)
文京区湯島
[御茶ノ水駅]
189.86㎡ (57.43坪)
980,000円
貸事務所
青戸から約9.32km
![西葛西 東京メトロ東西線[西葛西駅]の貸事務所物件の詳細はこちら](https://www.tatsuwa.com/bukken_imgs/thumb/RBT30345-img1_sch.jpg)
江戸川区西葛西
[西葛西駅]
265.70㎡ (80.37坪)
1,320,000円
貸事務所
青戸から約9.64km
![木場 東京メトロ東西線[木場駅]の貸事務所物件の詳細はこちら](https://www.tatsuwa.com/bukken_imgs/thumb/_sch.jpg)
江東区木場
[木場駅]
202.36㎡ (61.21坪)
770,000円
貸事務所
青戸から約9.64km
![木場 東京メトロ東西線[木場駅]の貸事務所物件の詳細はこちら](https://www.tatsuwa.com/bukken_imgs/thumb/RBT31298-img1_sch.jpg)
江東区木場
[木場駅]
99.28㎡ (30.03坪)
770,000円
貸事務所
青戸から約11.16km
![仁蔵 JR武蔵野線[三郷駅]の貸事務所物件の詳細はこちら](https://www.tatsuwa.com/bukken_imgs/thumb/RBS30388-img1_sch.jpg)
三郷市仁蔵
[三郷駅]
454.00㎡ (137.33坪)
1,254,000円
葛飾区青戸の貸事務所に関するFAQ
- Q1ホームページに掲載されている物件以外に葛飾区青戸周辺の貸事務所はあるのか?
- A1
当社のホームページに掲載されている貸事務所物件は、取扱物件全体の一部に過ぎません。
オーナー様が公開を希望されない物件や、募集条件が未確定の物件など、多数の非公開物件がございます。
これらの非公開物件につきましては、担当営業スタッフが個別にご提案させていただいております。
条件に合った貸事務所物件のご提案:
事業用不動産は物件特有の条件が強く、お客様のご要望も独自性が高いのが特徴です。
最近では供給も非常に少なく、物件探しは非常に大変になってきています。
お問い合わせいただくことで、担当スタッフがご希望に合った物件を探し、情報提供いたします。
公開物件に加え、非公開物件も含めた選択肢が広がります。
公開前の新着の貸事務所物件情報の入手:
物件種目やエリアによっては、募集開始から非常に人気となり、すぐにお申し込みが殺到する物件も多くあります。
こういった物件情報を公開前に入手することが可能となります。
貸事務所物件の情報配信サービスの利用:
お客様の希望条件に合った物件情報をメールにてタイムリーに配信するサービスも行っております。このサービスには非公開物件も含まれますので、より多くの情報を得ることができます。
立和コーポレーションの強み
独自ルートで収集した貸事務所物件情報:
オーナー様より直接いただく情報や、地元不動産会社様からの公開・非公開情報など、これまでの取引を通じたネットワークを大切にしております。
これにより、公開前の情報を担当スタッフから提供することが可能です。
専門性で的確なサポート:
物件種目や地域の特徴など、長年の経験と豊富な物件ラインナップを活かし、お客様の安全かつスムーズな不動産取引を全力でサポートいたします。
「なかなか条件に合う貸事務所が見つからない」という方は、ぜひお気軽にお問い合わせください。担当スタッフが全力でサポートいたします。
新着の貸事務所物件情報をいち早くゲット!「新着お知らせメール」
新着公開物件情報や更新情報を自動配信する物件さがしのサポートツール「新着お知らせメール」もあります。
新着物件情報を毎日自動でお知らせします!
届いたメールの中に気になる物件があれば、物件詳細ページで確認できます。
希望物件があればすぐに借りたい・買いたい方に便利な機能です。 - Q2葛飾区青戸周辺で貸事務所を探すためのポイント
- A2
1. 葛飾区青戸周辺の事業用不動産市場の特性を知る
葛飾区青戸周辺にて貸事務所を探す際は、市場動向や地域特性をしっかり理解することが重要です。
エリアごとの成長性や再開発情報を把握しておくと、将来的な事業展開にも役立ちます。
2. 貸事務所選びにおける重要なポイント
① 立地条件の確認
交通アクセスの良さは、事業の効率化や従業員の通勤利便性に直結します。
葛飾区青戸周辺の交通アクセスを確認しましょう。
駅や高速道路のインターチェンジに近い物件は、物流効率や事業運営のスムーズさを高めるため、積極的に検討しましょう。
② 用途適合性の確認
物件選定時は、都市計画法で規定されている用途地域を確認することが必須です。
葛飾区青戸周辺の用途地域を確認しましょう。
インターネットの検索エンジンで調べたい「市区町村名 都市計画図」と検索すればほとんどが閲覧できます。
各用途地域の制限の概略はこちらで確認できます。⇒用途地域による建築物の用途制限の概要資料
特定の業種の場合、物件利用に制限がかかる可能性があるため、事前に行政窓口や専門家に相談することをお勧めします。
③ コストと予算計画
東京都の主要エリアでは、人気物件ほど賃料や購入価格が高騰する傾向があります。
初期投資だけでなく、物件維持費、管理費、将来的な改修・設備投資などの費用も含めた総合的な予算計画を立てましょう。
3. 最適な貸事務所を見つけるために
葛飾区青戸周辺で事業用物件を成功裏に選ぶためには、立地条件・用途規制・総合的なコストバランスを慎重に評価する必要があります。
また、最新情報を常に収集し、賢明な選択を心がけましょう。 - Q3葛飾区青戸の貸事務所の賃貸査定はどのように行いますか?
- A3
当社では、賃貸物件および売却物件の査定において、豊富な経験と専門知識を活かし、適正かつ精度の高い査定を行っております。
お客様の状況やご要望に応じて、以下の2種類の査定方法をご提供しております。
簡易査定(机上査定)
・概要:物件の基本情報(所在地、面積、築年数など)をもとに、周辺地域の取引データや市場動向を参照し、概算の査定価格を算出いたします。
・おすすめの方:まだ検討段階にあり、事業方針を決めるための大まかな参考資料が必要な方に適しています。
・特記事項:現地調査を行わないため、あくまで概算の査定価格となります。
詳細査定(訪問査定)
・概要:当社の専門スタッフが実際に物件を訪問し、現地調査を実施します。物件の状態、周辺環境、法令上の制限などを詳細に確認し、より正確な査定価格を算出いたします。
・おすすめの方:具体的な事業方針の決定や、正確な査定価格を必要とされる方に最適です。
・特記事項:現地調査や行政への確認、法令制限の調査などを行い、査定結果に反映させます。
査定方法の選択やご不明な点がございましたら、担当スタッフまでお気軽にご相談ください。
お客様の状況に合わせ、柔軟かつ丁寧に対応いたします。 - Q4葛飾区青戸の貸事務所の賃貸管理もお願いできますか?
- A4
はい。当社ではオーナー様の事業用不動産経営をサポートするため、賃貸管理サービスを承っております。賃料の入金管理・回収業務、入居者との調整、修繕アドバイス、明渡しの立会い・精算業務など、さまざまなご負担やご心配を軽減いたします。
■ キャンペーン概要
弊社媒介(「専任媒介」または「専属専任媒介」に限ります)で賃貸借契約を締結のうえ、
「賃貸管理契約」をご利用いただいたお客様には、管理費3ヵ月分を無料とさせていただきます。
■ リアルタイムで管理状況を報告
当社では、募集活動や管理業務の状況などをできる限りリアルタイムでご報告いたします。
日々の進捗はもちろん、現場や打ち合わせ時なども電話・メール・LINEで随時ご連絡可能です。
まずはお気軽にお問い合わせください。
オーナー様の大切な資産を守り、最適な賃貸経営をサポートいたします。
葛飾区の貸事務所についてのお知らせ・ニュース
事業用不動産の引渡時チェックリスト

境界標(杭)を現地で指差し確認し、ブロック塀やフェンスがどちらの所有物かを確認します。
大型車両の出入りに支障がないか、引渡し時の現況を改めて見ておくことで、運用開始後の「思わぬトラブル」を防げます。
三相(動力)電源、キュービクル、クレーン、荷物用リフト、大型シャッター、空調設備など。
雨漏り跡、床のひび割れ、給排水の漏れ。
「譲渡(使ってよいもの)」なのか「撤去対象」なのかを明確にし、リスト化しましょう。
電気・水道・ガスの数値を写真に撮り、精算の基準日を確定させます。
「何を・何本・何部」受け取ったかの一覧表(引渡確認書)を作成し、双方が署名捺印すると最も安心です。
この物件についてのお問い合わせ
東京都葛飾区青戸 京成本線 「青砥駅」 徒歩5分の貸事務所物件です。
物件検索から内覧までの流れ
-

物件を検索する
エリア検索、路線検索、保存リストにて比較・検討ができますのでご利用ください。
-

お問い合わせする
お電話や、物件詳細ページのお問い合わせ、またはまとめてお問い合わせ等、各種フォームでのお問い合わせが可能です。
-

弊社よりご連絡
翌営業日までに担当営業からご連絡差し上げます。
-

ご内覧
担当営業立会いのもと、物件をご案内します。ご不明な点はお気軽にご質問ください。
電話でのお問い合わせ
物件No. : RBT34284
お電話でお問い合わせいただく場合は、東京店にご連絡いただくとスムーズです。
※神奈川店でもお受けいたしております。
東京店

または、神奈川店 042-759-5801
メールでのお問い合わせ
メールフォームでもお問い合わせいただけます。
必要項目をご入力ください。
- 各物件情報について、すべての制限・情報が表示されているわけではありません。
別途必要な費用・詳細情報等は、物件紹介時又は重要事項説明においてご説明いたします。 - 周辺地図は所在地周辺を表示しています。
(マーカーが無い場合は、町村まで表示しています。)
(マーカーがついている場合でも、表示サポート外に存在している場合は正確な位置を示していない場合があります。) - 募集状況は常時変動しているため、お問い合わせを頂いた時点でご紹介できない場合がございます。
経済条件は事情により変更されている場合がございます。








