貸工場・貸倉庫 八王子市 JR中央本線(東京~塩尻)西八王子駅 の貸工場・貸倉庫
| 物件No. | RBT34468 |
|---|---|
| 最寄駅 所在地 |
JR中央本線(東京~塩尻)「西八王子駅」徒歩8分 東京都八王子市千人町 |
| 賃料 | 440,000円 礼 1ヶ月 / 保 3ヶ月 |
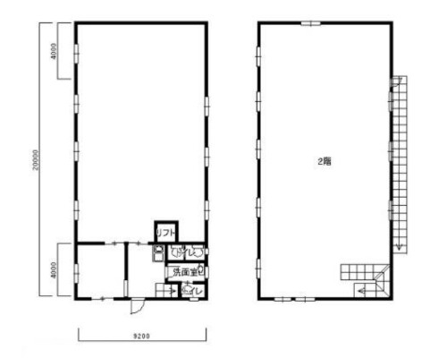
| 建物面積 | 368.00㎡ (111.32坪) |
八王子市-貸し工場・賃貸工場・貸し倉庫・賃貸倉庫
- Point 1鉄骨造2階建て
- Point 2八王子市|天井高1階:3.5m
- Point 3準工業地域
| 物件No. | RBT34468 | ||
|---|---|---|---|
| 所在地 | 東京都八王子市千人町 | ||
| 交通 | JR中央本線(東京~塩尻) 「西八王子駅」 徒歩8分 | ||
| 賃料(月額) | 440,000円 | 管理費(月額) | なし |
| 敷金/保証金 | 保 3ヶ月 | 礼金 | 1ヶ月 |
| 建物面積 | 368.00㎡ (111.32坪) | ||
| 土地面積 | |||
| 構造・規模 | 鉄骨造2階建て | ||
| 築年月 | 1989年2月 | ||
| 接道状況 | 南東側道路幅員約7m公道 | ||
| 設備 | トイレ ダムウエーターあり 照明・エアコン(残置物) | ||
| 備考 | 消費税10%込表示。 ■■■ 事業用不動産の賃貸のことなら立和コーポレーションへ ■■■ 東京・神奈川・埼玉・千葉の事業用物件専門の不動産会社です。 八王子市の貸し工場・貸し倉庫のことなら【立和コーポレーション】におまかせください。 担当の営業スタッフが、豊富な物件情報の中からお客様の業種・用途に応じた最適な物件をご提案いたします。 お気軽にお問い合わせください。 ホームページに掲載していない物件も多数ございます。 オーナー様が掲載をご希望されていない物件などは掲載されません。 また、情報拡散に向かない物件、経済条件が正式に決定していない場合は、ホームページに掲載することができない為、個別に提案させて頂いております。 ホームページに掲載されている物件は、取扱物件全体のわずか一部です。 まずは、ご希望の条件をお知らせください。(関東>東京:記事) |
||
| 取引態様 | 媒介 | ||
周辺地図
千人町周辺の貸工場・貸倉庫物件
周辺の物件との距離の計測は、Googleマップを利用し、直線距離となっております。
交通距離とは異なりますのでご注意ください。
座標の取得が出来ない場合など大きくずれを生じる場合があります。
貸工場・貸倉庫
千人町から約0.91km
![散田町 JR中央本線(東京~塩尻)[西八王子駅]の貸工場・貸倉庫物件の詳細はこちら](https://www.tatsuwa.com/bukken_imgs/thumb/RBT34521-img1_sch.jpg)
八王子市散田町
[西八王子駅]
591.96㎡ (179.06坪)
583,000円
貸倉庫
千人町から約0.91km
![散田町 京王高尾線[めじろ台駅]の貸倉庫物件の詳細はこちら](https://www.tatsuwa.com/bukken_imgs/thumb/RBT32992-img1_sch.jpg)
八王子市散田町
[めじろ台駅]
229.40㎡ (69.39坪)
330,000円
貸倉庫
千人町から約0.91km
![散田町 JR中央本線[西八王子駅]の貸倉庫物件の詳細はこちら](https://www.tatsuwa.com/bukken_imgs/thumb/RBT28215-img1_sch.jpg)
八王子市散田町
[西八王子駅]
644.30㎡ (194.90坪)
616,000円
貸倉庫
千人町から約1.07km
![台町 JR中央線[西八王子駅]の貸倉庫物件の詳細はこちら](https://www.tatsuwa.com/bukken_imgs/thumb/RBT28524-img1_sch.jpg)
八王子市台町
[西八王子駅]
64.02㎡ (19.36坪)
143,000円
貸倉庫
千人町から約1.36km
![長房町 JR中央本線(東京~塩尻)[西八王子駅]の貸倉庫物件の詳細はこちら](https://www.tatsuwa.com/bukken_imgs/thumb/RBT34378-img1_sch.jpg)
八王子市長房町
[西八王子駅]
249.35㎡ (75.42坪)
385,000円
貸倉庫
千人町から約2.52km
![大楽寺町 JR中央本線(東京~塩尻)[西八王子駅]の貸倉庫物件の詳細はこちら](https://www.tatsuwa.com/bukken_imgs/thumb/RBT35028-img1_sch.jpg)
八王子市大楽寺町
[西八王子駅]
97.71㎡ (29.55坪)
297,000円
貸倉庫
千人町から約2.62km
![小比企町 JR横浜線[八王子みなみ野駅]の貸倉庫物件の詳細はこちら](https://www.tatsuwa.com/bukken_imgs/thumb/RBT34989-img1_sch.jpg)
八王子市小比企町
[八王子みなみ野駅]
178.46㎡ (53.98坪)
250,000円
貸工場・貸倉庫
千人町から約2.76km
![諏訪町 JR中央本線(東京~塩尻)[八王子駅]の貸工場・貸倉庫物件の詳細はこちら](https://www.tatsuwa.com/bukken_imgs/thumb/RBT34775-img1_sch.jpg)
八王子市諏訪町
[八王子駅]
542.62㎡ (164.14坪)
650,000円
貸倉庫
千人町から約3.82km
![大和田町 JR八高線(八王子~高麗川)[北八王子駅]の貸倉庫物件の詳細はこちら](https://www.tatsuwa.com/bukken_imgs/thumb/RBT34822-img1_sch.jpg)
八王子市大和田町
[北八王子駅]
522.70㎡ (158.11坪)
1,183,248円
貸工場・貸倉庫
千人町から約4.07km
![川町 JR中央本線(東京~塩尻)[西八王子駅]の貸工場・貸倉庫物件の詳細はこちら](https://www.tatsuwa.com/bukken_imgs/thumb/RBT35008-img1_sch.jpg)
八王子市川町
[西八王子駅]
243.60㎡ (73.68坪)
198,000円
貸倉庫
千人町から約4.35km
![西寺方町 JR中央本線[八王子駅]の貸倉庫物件の詳細はこちら](https://www.tatsuwa.com/bukken_imgs/thumb/RBT27614-img1_sch.jpg)
八王子市西寺方町
[八王子駅]
432.40㎡ (130.80坪)
575,520円
貸工場・貸倉庫
千人町から約5.59km
![戸吹町 JR五日市線[秋川駅]の貸工場・貸倉庫物件の詳細はこちら](https://www.tatsuwa.com/bukken_imgs/thumb/RBT34608-img1_sch.jpg)
八王子市戸吹町
[秋川駅]
224.40㎡ (67.88坪)
330,000円
貸倉庫
千人町から約5.78km
![東平山 JR中央本線(東京~塩尻)[豊田駅]の貸倉庫物件の詳細はこちら](https://www.tatsuwa.com/bukken_imgs/thumb/RBT33231-img1_sch.jpg)
日野市東平山
[豊田駅]
22.44㎡ (6.78坪)
110,000円
貸倉庫
千人町から約5.93km
![田中町 JR青梅線[昭島駅]の貸倉庫物件の詳細はこちら](https://www.tatsuwa.com/bukken_imgs/thumb/RBT34034-img1_sch.jpg)
昭島市田中町
[昭島駅]
86.78㎡ (26.25坪)
200,000円
貸倉庫
千人町から約6.36km
![鑓水 JR横浜線[橋本駅]の貸倉庫物件の詳細はこちら](https://www.tatsuwa.com/bukken_imgs/thumb/RBT31925-img1_sch.jpg)
八王子市鑓水
[橋本駅]
163.84㎡ (49.56坪)
385,000円
貸倉庫
千人町から約6.43km
![美山町 JR中央本線(東京~塩尻)[高尾駅]の貸倉庫物件の詳細はこちら](https://www.tatsuwa.com/bukken_imgs/thumb/RBT35041-img1_sch.jpg)
八王子市美山町
[高尾駅]
96.00㎡ (29.04坪)
143,000円
貸倉庫
千人町から約6.53km
![松原町 JR青梅線[拝島駅]の貸倉庫物件の詳細はこちら](https://www.tatsuwa.com/bukken_imgs/thumb/RBT32800-img1_sch.jpg)
昭島市松原町
[拝島駅]
853.99㎡ (258.33坪)
1,100,000円
貸倉庫
千人町から約6.53km
![松原町 JR青梅線[昭島駅]の貸倉庫物件の詳細はこちら](https://www.tatsuwa.com/bukken_imgs/thumb/RBT34694-img1_sch.jpg)
昭島市松原町
[昭島駅]
79.00㎡ (23.89坪)
165,000円
貸倉庫
千人町から約6.75km
![緑町 JR青梅線[昭島駅]の貸倉庫物件の詳細はこちら](https://www.tatsuwa.com/bukken_imgs/thumb/RBT33659-img1_sch.jpg)
昭島市緑町
[昭島駅]
473.21㎡ (143.14坪)
440,000円
貸倉庫
千人町から約7.49km
![二宮東 JR五日市線[東秋留駅]の貸倉庫物件の詳細はこちら](https://www.tatsuwa.com/bukken_imgs/thumb/RBT33405-img1_sch.jpg)
あきる野市二宮東
[東秋留駅]
145.40㎡ (43.98坪)
250,000円
八王子市千人町の貸工場・貸倉庫に関するFAQ
- Q1ホームページに掲載されている物件以外に八王子市千人町周辺の貸工場・貸倉庫はあるのか?
- A1
当社のホームページに掲載されている貸工場・貸倉庫物件は、取扱物件全体の一部に過ぎません。
オーナー様が公開を希望されない物件や、募集条件が未確定の物件など、多数の非公開物件がございます。
これらの非公開物件につきましては、担当営業スタッフが個別にご提案させていただいております。
条件に合った貸工場・貸倉庫物件のご提案:
事業用不動産は物件特有の条件が強く、お客様のご要望も独自性が高いのが特徴です。
最近では供給も非常に少なく、物件探しは非常に大変になってきています。
お問い合わせいただくことで、担当スタッフがご希望に合った物件を探し、情報提供いたします。
公開物件に加え、非公開物件も含めた選択肢が広がります。
公開前の新着の貸工場・貸倉庫物件情報の入手:
物件種目やエリアによっては、募集開始から非常に人気となり、すぐにお申し込みが殺到する物件も多くあります。
こういった物件情報を公開前に入手することが可能となります。
貸工場・貸倉庫物件の情報配信サービスの利用:
お客様の希望条件に合った物件情報をメールにてタイムリーに配信するサービスも行っております。このサービスには非公開物件も含まれますので、より多くの情報を得ることができます。
立和コーポレーションの強み
独自ルートで収集した貸工場・貸倉庫物件情報:
オーナー様より直接いただく情報や、地元不動産会社様からの公開・非公開情報など、これまでの取引を通じたネットワークを大切にしております。
これにより、公開前の情報を担当スタッフから提供することが可能です。
専門性で的確なサポート:
物件種目や地域の特徴など、長年の経験と豊富な物件ラインナップを活かし、お客様の安全かつスムーズな不動産取引を全力でサポートいたします。
「なかなか条件に合う貸工場・貸倉庫が見つからない」という方は、ぜひお気軽にお問い合わせください。担当スタッフが全力でサポートいたします。
新着の貸工場・貸倉庫物件情報をいち早くゲット!「新着お知らせメール」
新着公開物件情報や更新情報を自動配信する物件さがしのサポートツール「新着お知らせメール」もあります。
新着物件情報を毎日自動でお知らせします!
届いたメールの中に気になる物件があれば、物件詳細ページで確認できます。
希望物件があればすぐに借りたい・買いたい方に便利な機能です。 - Q2八王子市千人町周辺で貸工場・貸倉庫を探すためのポイント
- A2
1. 八王子市千人町周辺の事業用不動産市場の特性を知る
八王子市千人町周辺にて貸工場・貸倉庫を探す際は、市場動向や地域特性をしっかり理解することが重要です。
エリアごとの成長性や再開発情報を把握しておくと、将来的な事業展開にも役立ちます。
2. 貸工場・貸倉庫選びにおける重要なポイント
① 立地条件の確認
交通アクセスの良さは、事業の効率化や従業員の通勤利便性に直結します。
八王子市千人町周辺の交通アクセスを確認しましょう。
駅や高速道路のインターチェンジに近い物件は、物流効率や事業運営のスムーズさを高めるため、積極的に検討しましょう。
② 用途適合性の確認
物件選定時は、都市計画法で規定されている用途地域を確認することが必須です。
八王子市千人町周辺の用途地域を確認しましょう。
インターネットの検索エンジンで調べたい「市区町村名 都市計画図」と検索すればほとんどが閲覧できます。
各用途地域の制限の概略はこちらで確認できます。⇒用途地域による建築物の用途制限の概要資料
特定の業種の場合、物件利用に制限がかかる可能性があるため、事前に行政窓口や専門家に相談することをお勧めします。
③ コストと予算計画
東京都の主要エリアでは、人気物件ほど賃料や購入価格が高騰する傾向があります。
初期投資だけでなく、物件維持費、管理費、将来的な改修・設備投資などの費用も含めた総合的な予算計画を立てましょう。
3. 最適な貸工場・貸倉庫を見つけるために
八王子市千人町周辺で事業用物件を成功裏に選ぶためには、立地条件・用途規制・総合的なコストバランスを慎重に評価する必要があります。
また、最新情報を常に収集し、賢明な選択を心がけましょう。 - Q3八王子市千人町の貸工場・貸倉庫の賃貸査定はどのように行いますか?
- A3
当社では、賃貸物件および売却物件の査定において、豊富な経験と専門知識を活かし、適正かつ精度の高い査定を行っております。
お客様の状況やご要望に応じて、以下の2種類の査定方法をご提供しております。
簡易査定(机上査定)
・概要:物件の基本情報(所在地、面積、築年数など)をもとに、周辺地域の取引データや市場動向を参照し、概算の査定価格を算出いたします。
・おすすめの方:まだ検討段階にあり、事業方針を決めるための大まかな参考資料が必要な方に適しています。
・特記事項:現地調査を行わないため、あくまで概算の査定価格となります。
詳細査定(訪問査定)
・概要:当社の専門スタッフが実際に物件を訪問し、現地調査を実施します。物件の状態、周辺環境、法令上の制限などを詳細に確認し、より正確な査定価格を算出いたします。
・おすすめの方:具体的な事業方針の決定や、正確な査定価格を必要とされる方に最適です。
・特記事項:現地調査や行政への確認、法令制限の調査などを行い、査定結果に反映させます。
査定方法の選択やご不明な点がございましたら、担当スタッフまでお気軽にご相談ください。
お客様の状況に合わせ、柔軟かつ丁寧に対応いたします。 - Q4八王子市千人町の貸工場・貸倉庫の賃貸管理もお願いできますか?
- A4
はい。当社ではオーナー様の事業用不動産経営をサポートするため、賃貸管理サービスを承っております。賃料の入金管理・回収業務、入居者との調整、修繕アドバイス、明渡しの立会い・精算業務など、さまざまなご負担やご心配を軽減いたします。
■ キャンペーン概要
弊社媒介(「専任媒介」または「専属専任媒介」に限ります)で賃貸借契約を締結のうえ、
「賃貸管理契約」をご利用いただいたお客様には、管理費3ヵ月分を無料とさせていただきます。
■ リアルタイムで管理状況を報告
当社では、募集活動や管理業務の状況などをできる限りリアルタイムでご報告いたします。
日々の進捗はもちろん、現場や打ち合わせ時なども電話・メール・LINEで随時ご連絡可能です。
まずはお気軽にお問い合わせください。
オーナー様の大切な資産を守り、最適な賃貸経営をサポートいたします。
八王子市の貸工場・貸倉庫についてのお知らせ・ニュース
-
【お知らせ】東京都八王子市大楽寺町の貸し倉庫(RBT35028)。鉄骨造平屋建ての約29.55坪。近隣商業地域。駐車場あり(無料)。道路幅員約6m公道に接道。八王子ICまで約6km。
-
(貸工場・貸倉庫) 「西八王子駅」 74坪 198,000円
【賃料変更】東京都八王子市戸吹町の貸工場・貸倉庫(RBT34608)。新賃料(330,000円)。鉄骨造2階建て約34.93坪・鉄骨造平屋建て約32.94坪。
【お知らせ】東京都八王子市川町の貸し工場・貸し倉庫(RBT35008)。鉄骨造2階建ての約73.68坪。準工業地域。北側道路幅員約5m公道に接道。八王子西インター車で8分。空工場・空倉庫・空作業所。
-
【お知らせ】東京都八王子市小比企町の貸し倉庫(RBT34989)。木造2階建ての約53.98坪。第一種低層住居専用地域。駐車場あり(別途費用)。
-
【お知らせ】東京都八王子市大和田町の貸し倉庫(RBT34822)。鉄骨鉄筋コンクリート造6階建て2階部分の約158.11坪。空き倉庫・貸作業所。
建築確認済証・検査済証の必要性

建築確認済証は、建物を建てる前に計画が法令に合っていると確認されたことを示す書類です。
検査済証は、完成後に建物が計画どおりにつくられ、完了検査を終えたことを示す書類です。
書類がそろっていると、建物の履歴を確認しやすく、融資や各種手続きを進めやすくなります。
特に事業用不動産では、建物の活用方法に関わるため、重要性が高い書類です。
大切なのは、書類の内容と現在の建物の状態が一致しているかどうかです。
過去の増築や改修によって現況が変わっていると、後の手続きに影響することがあります。
そのため、書類の有無だけでなく、現況との一致も確認することが重要です。
特に銀行融資や用途変更を考える場合は、早めに有無を確認し、必要に応じて専門家に相談することが大切です。
契約前に書類と現況の両方を確認しておくことが、後のトラブル防止につながります。
なぜ「立和コーポレーション」の貸工場・貸倉庫査定が人気なのか!

この物件についてのお問い合わせ
東京都八王子市千人町 JR中央本線(東京~塩尻) 「西八王子駅」 徒歩8分の貸工場・貸倉庫物件です。
物件検索から内覧までの流れ
-

物件を検索する
エリア検索、路線検索、保存リストにて比較・検討ができますのでご利用ください。
-

お問い合わせする
お電話や、物件詳細ページのお問い合わせ、またはまとめてお問い合わせ等、各種フォームでのお問い合わせが可能です。
-

弊社よりご連絡
翌営業日までに担当営業からご連絡差し上げます。
-

ご内覧
担当営業立会いのもと、物件をご案内します。ご不明な点はお気軽にご質問ください。
電話でのお問い合わせ
物件No. : RBT34468
お電話でお問い合わせいただく場合は、神奈川店にご連絡いただくとスムーズです。
※東京店でもお受けいたしております。
神奈川店

または、東京店 03-5572-7888
メールでのお問い合わせ
メールフォームでもお問い合わせいただけます。
必要項目をご入力ください。
- 各物件情報について、すべての制限・情報が表示されているわけではありません。
別途必要な費用・詳細情報等は、物件紹介時又は重要事項説明においてご説明いたします。 - 周辺地図は所在地周辺を表示しています。
(マーカーが無い場合は、町村まで表示しています。)
(マーカーがついている場合でも、表示サポート外に存在している場合は正確な位置を示していない場合があります。) - 募集状況は常時変動しているため、お問い合わせを頂いた時点でご紹介できない場合がございます。
経済条件は事情により変更されている場合がございます。








