貸倉庫 葛飾区 JR常磐線金町駅 の貸倉庫 (募集は終了しました。)
| 物件No. | RBT27118 |
|---|---|
| 最寄駅 所在地 |
JR常磐線「金町駅」 東京都葛飾区 |
| 賃料 | 1,500,000円 礼 2ヶ月 / 保 3ヶ月 |
葛飾区-貸倉庫・貸し倉庫・賃貸倉庫
- Point 1鉄骨造3階建て
- Point 2葛飾区|駐車場あり 物流センターに最適
| 物件No. | RBT27118 | ||
|---|---|---|---|
| 所在地 | 東京都葛飾区 | ||
| 交通 ※駅までの直線距離で自動表示 実際の交通とは異なります。 |
JR常磐線(上野~取手) 「金町駅」 京成金町線 「京成金町駅」 | ||
| 賃料(月額) | 1,500,000円 | 管理費(月額) | なし |
| 敷金/保証金 | 保 3ヶ月 | 礼金 | 2ヶ月 |
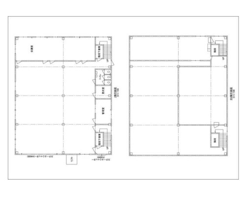
| 建物面積 | 約299坪 | ||
| 土地面積 | |||
| 構造・規模 | 鉄骨造3階建て | ||
| 築年月 | 1990年4月 | ||
| 接道状況 | |||
| 設備 | |||
| 備考 | 消費税10%込表示。 ■■■ 事業用不動産の賃貸のことなら立和コーポレーションへ ■■■ 東京・神奈川・埼玉・千葉の事業用物件専門の不動産会社です。 葛飾区の貸し倉庫のことなら【立和コーポレーション】におまかせください。 担当の営業スタッフが、豊富な物件情報の中からお客様の業種・用途に応じた最適な物件をご提案いたします。 お気軽にお問い合わせください。 ホームページに掲載していない物件も多数ございます。 オーナー様が掲載をご希望されていない物件などは掲載されません。 また、情報拡散に向かない物件、経済条件が正式に決定していない場合は、ホームページに掲載することができない為、個別に提案させて頂いております。 ホームページに掲載されている物件は、取扱物件全体のわずか一部です。 まずは、ご希望の条件をお知らせください。 |
||
| 取引態様 | 媒介 | ||
|
こちらの物件は、募集終了しました。 他の物件検索はこちら |
|||
お問い合わせ可能な葛飾区周辺の貸工場・貸倉庫物件
座標の取得が出来ない場合など大きくずれを生じる場合があります。
貸倉庫
![南水元 JR常磐線(上野~取手)[金町駅]の貸倉庫物件の詳細はこちら](https://www.tatsuwa.com/bukken_imgs/thumb/RBT32093-img1_sch.jpg)
葛飾区南水元
[金町駅]
409.89㎡ (123.99坪)
660,000円
貸工場・貸倉庫
![高州 JR常磐線(上野~取手)[金町駅]の貸工場・貸倉庫物件の詳細はこちら](https://www.tatsuwa.com/bukken_imgs/thumb/RBS33549-img1_sch.jpg)
三郷市高州
[金町駅]
317.25㎡ (95.96坪)
407,000円
貸倉庫
![高州 JR常磐線(上野~取手)[松戸駅]の貸倉庫物件の詳細はこちら](https://www.tatsuwa.com/bukken_imgs/thumb/RBS31999-img1_sch.jpg)
三郷市高州
[松戸駅]
1,044.40㎡ (315.93坪)
2,200,000円
貸工場・貸倉庫
![高州 JR常磐線(上野~取手)[松戸駅]の貸工場・貸倉庫物件の詳細はこちら](https://www.tatsuwa.com/bukken_imgs/thumb/RBS32705-img1_sch.jpg)
三郷市高州
[松戸駅]
2,536.81㎡ (767.38坪)
4,290,000円
貸倉庫
![戸ケ崎 首都圏新都市鉄道つくばエクスプレス[八潮駅]の貸倉庫物件の詳細はこちら](https://www.tatsuwa.com/bukken_imgs/thumb/RBS34370-img1_sch.jpg)
三郷市戸ケ崎
[八潮駅]
765.62㎡ (231.60坪)
1,250,000円
貸倉庫
![戸ケ崎 首都圏新都市鉄道つくばエクスプレス[八潮駅]の貸倉庫物件の詳細はこちら](https://www.tatsuwa.com/bukken_imgs/thumb/_sch.jpg)
三郷市戸ケ崎
[八潮駅]
1,388.39㎡ (419.99坪)
2,079,000円
貸工場・貸倉庫
![大瀬 首都圏新都市鉄道つくばエクスプレス[八潮駅]の貸工場・貸倉庫物件の詳細はこちら](https://www.tatsuwa.com/bukken_imgs/thumb/RBS30704-img1_sch.jpg)
八潮市大瀬
[八潮駅]
1,032.35㎡ (312.28坪)
1,545,786円
貸倉庫
![大瀬 つくばエクスプレス[八潮駅]の貸倉庫物件の詳細はこちら](https://www.tatsuwa.com/bukken_imgs/thumb/RBS23447-img1_sch.jpg)
八潮市大瀬
[八潮駅]
1,201.46㎡ (363.44坪)
1,750,000円
貸工場・貸倉庫
![六木 東京メトロ千代田線[北綾瀬駅]の貸工場・貸倉庫物件の詳細はこちら](https://www.tatsuwa.com/bukken_imgs/thumb/RBT22834-img1_sch.jpg)
足立区六木
[北綾瀬駅]
462.80㎡ (140.00坪)
690,000円
貸倉庫
![金町 JR常磐線(上野~取手)[金町駅]の貸倉庫物件の詳細はこちら](https://www.tatsuwa.com/bukken_imgs/thumb/RBT33747-img1_sch.jpg)
葛飾区金町
[金町駅]
333.92㎡ (101.01坪)
450,000円
貸倉庫
![亀有 JR常磐線(上野~取手)[亀有駅]の貸倉庫物件の詳細はこちら](https://www.tatsuwa.com/bukken_imgs/thumb/RBT30632-img1_sch.jpg)
葛飾区亀有
[亀有駅]
72.81㎡ (22.02坪)
242,000円
貸倉庫
![鷹野 つくばエクスプレス[八潮駅]の貸倉庫物件の詳細はこちら](https://www.tatsuwa.com/bukken_imgs/thumb/RBS17269-img1_sch.jpg)
三郷市鷹野
[八潮駅]
592.06㎡ (179.10坪)
1,044,153円
貸倉庫
![南川崎 つくばエクスプレス[八潮駅]の貸倉庫物件の詳細はこちら](https://www.tatsuwa.com/bukken_imgs/thumb/RBS26143-img1_sch.jpg)
八潮市南川崎
[八潮駅]
422.33㎡ (127.75坪)
421,575円
貸倉庫
![南川崎 首都圏新都市鉄道つくばエクスプレス[八潮駅]の貸倉庫物件の詳細はこちら](https://www.tatsuwa.com/bukken_imgs/thumb/RBS11704-img1_sch.jpg)
八潮市南川崎
[八潮駅]
322.50㎡ (97.55坪)
517,500円
貸倉庫
![南川崎 つくばエクスプレス[八潮駅]の貸倉庫物件の詳細はこちら](https://www.tatsuwa.com/bukken_imgs/thumb/RBS29694-img1_sch.jpg)
八潮市南川崎
[八潮駅]
337.86㎡ (102.20坪)
337,260円
貸倉庫
![浮塚 首都圏新都市鉄道つくばエクスプレス[六町駅]の貸倉庫物件の詳細はこちら](https://www.tatsuwa.com/bukken_imgs/thumb/RBS32623-img1_sch.jpg)
八潮市浮塚
[六町駅]
206.00㎡ (62.31坪)
250,000円
貸工場・貸倉庫
![浮塚 つくばエクスプレス[六町駅]の貸工場・貸倉庫物件の詳細はこちら](https://www.tatsuwa.com/bukken_imgs/thumb/RBS19847-img1_sch.jpg)
八潮市浮塚
[六町駅]
892.56㎡ (269.99坪)
1,663,200円
貸工場・貸倉庫
![浮塚 首都圏新都市鉄道つくばエクスプレス[八潮駅]の貸工場・貸倉庫物件の詳細はこちら](https://www.tatsuwa.com/bukken_imgs/thumb/RBS33000-img1_sch.jpg)
八潮市浮塚
[八潮駅]
1,464.46㎡ (442.99坪)
1,754,280円
貸倉庫
![栄 首都圏新都市鉄道つくばエクスプレス[三郷中央駅]の貸倉庫物件の詳細はこちら](https://www.tatsuwa.com/bukken_imgs/thumb/_sch.jpg)
三郷市栄
[三郷中央駅]
13,856.52㎡ (4,191.59坪)
相談
貸倉庫
![松戸 JR常磐線(上野~取手)[松戸駅]の貸倉庫物件の詳細はこちら](https://www.tatsuwa.com/bukken_imgs/thumb/RBC33881-img1_sch.jpg)
松戸市松戸
[松戸駅]
160.60㎡ (48.58坪)
396,000円
貸工場・貸倉庫
![松戸 JR常磐線[松戸駅]の貸工場・貸倉庫物件の詳細はこちら](https://www.tatsuwa.com/bukken_imgs/thumb/RBC23766-img1_sch.jpg)
松戸市松戸
[松戸駅]
1,035.36㎡ (313.19坪)
1,870,000円
貸倉庫
![大曽根 首都圏新都市鉄道つくばエクスプレス[八潮駅]の貸倉庫物件の詳細はこちら](https://www.tatsuwa.com/bukken_imgs/thumb/RBS32156-img1_sch.jpg)
八潮市大曽根
[八潮駅]
604.08㎡ (182.73坪)
935,000円
貸倉庫
![八潮 つくばエクスプレス[八潮駅]の貸倉庫物件の詳細はこちら](https://www.tatsuwa.com/bukken_imgs/thumb/RBS27377-img1_sch.jpg)
八潮市八潮
[八潮駅]
736.66㎡ (222.83坪)
1,102,900円
貸倉庫
![八潮 首都圏新都市鉄道つくばエクスプレス[八潮駅]の貸倉庫物件の詳細はこちら](https://www.tatsuwa.com/bukken_imgs/thumb/RBS12779-img1_sch.jpg)
八潮市八潮
[八潮駅]
317.57㎡ (96.06坪)
475,497円
貸工場・貸倉庫
![八潮二丁目 首都圏新都市鉄道つくばエクスプレス[八潮駅]の貸工場・貸倉庫物件の詳細はこちら](https://www.tatsuwa.com/bukken_imgs/thumb/RBS10352-img1_sch.jpg)
八潮市八潮二丁目
[八潮駅]
963.76㎡ (291.53坪)
1,541,800円
貸工場・貸倉庫
![木曽根 首都圏新都市鉄道つくばエクスプレス[八潮駅]の貸工場・貸倉庫物件の詳細はこちら](https://www.tatsuwa.com/bukken_imgs/thumb/RBS33192-img1_sch.jpg)
八潮市木曽根
[八潮駅]
437.02㎡ (132.19坪)
657,000円
貸倉庫
![木曽根 首都圏新都市鉄道つくばエクスプレス[八潮駅]の貸倉庫物件の詳細はこちら](https://www.tatsuwa.com/bukken_imgs/thumb/RBS33783-img1_sch.jpg)
八潮市木曽根
[八潮駅]
163.56㎡ (49.47坪)
440,000円
貸倉庫
![木曽根 首都圏新都市鉄道つくばエクスプレス[八潮駅]の貸倉庫物件の詳細はこちら](https://www.tatsuwa.com/bukken_imgs/thumb/RBS33611-img1_sch.jpg)
八潮市木曽根
[八潮駅]
183.00㎡ (55.35坪)
308,000円
貸工場・貸倉庫
![木曽根 首都圏新都市鉄道つくばエクスプレス[八潮駅]の貸工場・貸倉庫物件の詳細はこちら](https://www.tatsuwa.com/bukken_imgs/thumb/RBS33495-img1_sch.jpg)
八潮市木曽根
[八潮駅]
367.33㎡ (111.11坪)
990,000円
貸工場・貸倉庫
![大字二丁目 首都圏新都市鉄道つくばエクスプレス[八潮駅]の貸工場・貸倉庫物件の詳細はこちら](https://www.tatsuwa.com/bukken_imgs/thumb/RBS10323-img1_sch.jpg)
八潮市大字二丁目
[八潮駅]
558.61㎡ (168.97坪)
929,500円
貸倉庫
![大字二丁目 首都圏新都市鉄道つくばエクスプレス[八潮駅]の貸倉庫物件の詳細はこちら](https://www.tatsuwa.com/bukken_imgs/thumb/RBS32799-img1_sch.jpg)
八潮市大字二丁目
[八潮駅]
69.61㎡ (21.05坪)
209,000円
貸工場・貸倉庫
![大字二丁目 首都圏新都市鉄道つくばエクスプレス[八潮駅]の貸工場・貸倉庫物件の詳細はこちら](https://www.tatsuwa.com/bukken_imgs/thumb/RBS34389-img1_sch.jpg)
八潮市大字二丁目
[八潮駅]
1,194.37㎡ (361.29坪)
1,788,300円
貸工場・貸倉庫
![大字二丁目 首都圏新都市鉄道つくばエクスプレス[八潮駅]の貸工場・貸倉庫物件の詳細はこちら](https://www.tatsuwa.com/bukken_imgs/thumb/RBS20310-img1_sch.jpg)
八潮市大字二丁目
[八潮駅]
595.30㎡ (180.07坪)
990,000円
貸倉庫
![中央 首都圏新都市鉄道つくばエクスプレス[八潮駅]の貸倉庫物件の詳細はこちら](https://www.tatsuwa.com/bukken_imgs/thumb/RBS30490-img1_sch.jpg)
八潮市中央
[八潮駅]
1,041.00㎡ (314.90坪)
1,650,000円
貸倉庫
![花畑 東武伊勢崎線[竹ノ塚駅]の貸倉庫物件の詳細はこちら](https://www.tatsuwa.com/bukken_imgs/thumb/RBT28815-img1_sch.jpg)
足立区花畑
[竹ノ塚駅]
507.67㎡ (153.57坪)
605,000円
貸工場・貸倉庫
![小菅 東武伊勢崎線[小菅駅]の貸工場・貸倉庫物件の詳細はこちら](https://www.tatsuwa.com/bukken_imgs/thumb/RBT32397-img1_sch.jpg)
葛飾区小菅
[小菅駅]
348.30㎡ (105.36坪)
1,100,000円
貸工場・貸倉庫
![立石 京成押上線[京成立石駅]の貸工場・貸倉庫物件の詳細はこちら](https://www.tatsuwa.com/bukken_imgs/thumb/RBT12832-img1_sch.jpg)
葛飾区立石
[京成立石駅]
204.00㎡ (61.71坪)
440,000円
貸工場・貸倉庫
![インター南 首都圏新都市鉄道つくばエクスプレス[三郷中央駅]の貸工場・貸倉庫物件の詳細はこちら](https://www.tatsuwa.com/bukken_imgs/thumb/RBS32412-img1_sch.jpg)
三郷市インター南
[三郷中央駅]
4,714.61㎡ (1,426.16坪)
7,843,900円
貸工場・貸倉庫
![西袋 東武伊勢崎線[谷塚駅]の貸工場・貸倉庫物件の詳細はこちら](https://www.tatsuwa.com/bukken_imgs/thumb/RBS34089-img1_sch.jpg)
八潮市西袋
[谷塚駅]
1,180.00㎡ (356.95坪)
2,420,000円
貸倉庫
![彦沢 首都圏新都市鉄道つくばエクスプレス[三郷中央駅]の貸倉庫物件の詳細はこちら](https://www.tatsuwa.com/bukken_imgs/thumb/RBS33320-img1_sch.jpg)
三郷市彦沢
[三郷中央駅]
211.43㎡ (63.95坪)
495,000円
貸倉庫
![緑町 首都圏新都市鉄道つくばエクスプレス[八潮駅]の貸倉庫物件の詳細はこちら](https://www.tatsuwa.com/bukken_imgs/thumb/RBS34227-img1_sch.jpg)
八潮市緑町
[八潮駅]
1,497.84㎡ (453.09坪)
2,242,746円
貸倉庫
![緑町 首都圏新都市鉄道つくばエクスプレス[八潮駅]の貸倉庫物件の詳細はこちら](https://www.tatsuwa.com/bukken_imgs/thumb/RBS32887-img1_sch.jpg)
八潮市緑町
[八潮駅]
726.75㎡ (219.84坪)
1,331,000円
貸倉庫
![旭町 JR常磐線(上野~取手)[馬橋駅]の貸倉庫物件の詳細はこちら](https://www.tatsuwa.com/bukken_imgs/thumb/RBC34411-img1_sch.jpg)
松戸市旭町
[馬橋駅]
384.02㎡ (116.16坪)
550,000円
貸工場・貸倉庫
![上本郷 JR常磐線(上野~取手)[北松戸駅]の貸工場・貸倉庫物件の詳細はこちら](https://www.tatsuwa.com/bukken_imgs/thumb/RBC33524-img1_sch.jpg)
松戸市上本郷
[北松戸駅]
7,431.39㎡ (2,248.00坪)
9,441,600円
貸工場・貸倉庫
![上本郷 JR常磐線(上野~取手)[北松戸駅]の貸工場・貸倉庫物件の詳細はこちら](https://www.tatsuwa.com/bukken_imgs/thumb/RBC33440-img1_sch.jpg)
松戸市上本郷
[北松戸駅]
7,431.47㎡ (2,248.01坪)
9,891,200円
貸倉庫
![大橋 北総鉄道北総線[秋山駅]の貸倉庫物件の詳細はこちら](https://www.tatsuwa.com/bukken_imgs/thumb/RBC33409-img1_sch.jpg)
松戸市大橋
[秋山駅]
183.81㎡ (55.60坪)
231,000円
貸倉庫
![番匠免 首都圏新都市鉄道つくばエクスプレス[三郷中央駅]の貸倉庫物件の詳細はこちら](https://www.tatsuwa.com/bukken_imgs/thumb/RBS32360-img1_sch.jpg)
三郷市番匠免
[三郷中央駅]
183.33㎡ (55.45坪)
330,000円
貸倉庫
![松戸新田 新京成電鉄新京成線[上本郷駅]の貸倉庫物件の詳細はこちら](https://www.tatsuwa.com/bukken_imgs/thumb/RBC33883-img1_sch.jpg)
松戸市松戸新田
[上本郷駅]
925.93㎡ (280.09坪)
1,386,346円
貸倉庫
![梅島 東武伊勢崎線[梅島駅]の貸倉庫物件の詳細はこちら](https://www.tatsuwa.com/bukken_imgs/thumb/RBT12871-img1_sch.jpg)
足立区梅島
[梅島駅]
247.44㎡ (74.85坪)
605,000円
貸倉庫
![梅島 東武伊勢崎線[西新井駅]の貸倉庫物件の詳細はこちら](https://www.tatsuwa.com/bukken_imgs/thumb/RBT33627-img1_sch.jpg)
足立区梅島
[西新井駅]
131.60㎡ (39.80坪)
385,000円
貸工場・貸倉庫
![東四つ木 京成押上線[四ツ木駅]の貸工場・貸倉庫物件の詳細はこちら](https://www.tatsuwa.com/bukken_imgs/thumb/RBT34326-img1_sch.jpg)
葛飾区東四つ木
[四ツ木駅]
358.61㎡ (108.47坪)
990,000円
貸倉庫
![茂田井 JR武蔵野線[三郷駅]の貸倉庫物件の詳細はこちら](https://www.tatsuwa.com/bukken_imgs/thumb/RBS31903-img1_sch.jpg)
三郷市茂田井
[三郷駅]
4,177.00㎡ (1,263.54坪)
6,671,200円
貸倉庫
![茂田井 JR武蔵野線[三郷駅]の貸倉庫物件の詳細はこちら](https://www.tatsuwa.com/bukken_imgs/thumb/RBS31902-img1_sch.jpg)
三郷市茂田井
[三郷駅]
4,177.00㎡ (1,263.54坪)
6,532,200円
貸倉庫
![天神 JR武蔵野線[新三郷駅]の貸倉庫物件の詳細はこちら](https://www.tatsuwa.com/bukken_imgs/thumb/RBS32459-img1_sch.jpg)
三郷市天神
[新三郷駅]
373.55㎡ (112.99坪)
621,500円
貸工場・貸倉庫
![東新小岩 JR中央・総武緩行線[新小岩駅]の貸工場・貸倉庫物件の詳細はこちら](https://www.tatsuwa.com/bukken_imgs/thumb/RBT34519-img1_sch.jpg)
葛飾区東新小岩
[新小岩駅]
424.38㎡ (128.37坪)
550,000円
貸倉庫
![大広戸 JR武蔵野線[三郷駅]の貸倉庫物件の詳細はこちら](https://www.tatsuwa.com/bukken_imgs/thumb/RBS27746-img1_sch.jpg)
三郷市大広戸
[三郷駅]
1,969.24㎡ (595.69坪)
3,145,200円
貸倉庫
![大広戸 JR武蔵野線[三郷駅]の貸倉庫物件の詳細はこちら](https://www.tatsuwa.com/bukken_imgs/thumb/RBS33550-img1_sch.jpg)
三郷市大広戸
[三郷駅]
3,560.27㎡ (1,076.98坪)
5,686,600円
貸倉庫
![大広戸 JR武蔵野線[三郷駅]の貸倉庫物件の詳細はこちら](https://www.tatsuwa.com/bukken_imgs/thumb/RBS31469-img1_sch.jpg)
三郷市大広戸
[三郷駅]
5,529.52㎡ (1,672.67坪)
8,831,800円
貸工場・貸倉庫
![上彦名 JR武蔵野線[新三郷駅]の貸工場・貸倉庫物件の詳細はこちら](https://www.tatsuwa.com/bukken_imgs/thumb/RBS11954-img1_sch.jpg)
三郷市上彦名
[新三郷駅]
1,644.31㎡ (497.40坪)
2,571,506円
貸倉庫
![彦成 JR武蔵野線[新三郷駅]の貸倉庫物件の詳細はこちら](https://www.tatsuwa.com/bukken_imgs/thumb/RBS28839-img1_sch.jpg)
三郷市彦成
[新三郷駅]
2,254.54㎡ (681.99坪)
2,214,597円
ホームページに掲載されている葛飾区の貸工場・貸倉庫に関するFAQ
- Q1ホームページに掲載されている葛飾区周辺の貸工場・貸倉庫はあるのか?
- A1
こちらの貸工場・貸倉庫(RBT27118)の募集は終了しました。
参考情報としてご利用ください。
立和コーポレーションは首都圏の事業用物件を専門に取り扱う不動産会社です。
ホームページでは多くの貸工場・貸倉庫を公開しておりますが、これは取扱物件全体の一部で、公開されていない非公開物件も多数ございます。
非公開となっている貸工場・貸倉庫については、担当営業スタッフより個別提案とさせていただいております。
お探しのエリアの非公開物件の有無は、担当営業スタッフへお問い合わせください。
ご要望にマッチする物件が無い場合でも、担当営業スタッフによる新着情報からの随時提案や、ホームページには新着物件情報や更新情報を自動配信する物件さがしのサポートツール「新着お知らせメール」もあります。 - Q2葛飾区で貸工場・貸倉庫を探すためのポイント
- A2
1. 葛飾区周辺の事業用不動産市場の特性を知る
葛飾区周辺にて貸工場・貸倉庫を探す際は、市場動向や地域特性をしっかり理解することが重要です。
エリアごとの成長性や再開発情報を把握しておくと、将来的な事業展開にも役立ちます。
2. 貸工場・貸倉庫選びにおける重要なポイント
① 立地条件の確認
交通アクセスの良さは、事業の効率化や従業員の通勤利便性に直結します。
葛飾区周辺の交通アクセスを確認しましょう。
駅や高速道路のインターチェンジに近い物件は、物流効率や事業運営のスムーズさを高めるため、積極的に検討しましょう。
② 用途適合性の確認
物件選定時は、都市計画法で規定されている用途地域を確認することが必須です。
葛飾区周辺の用途地域を確認しましょう。
インターネットの検索エンジンで調べたい「市区町村名 都市計画図」と検索すればほとんどが閲覧できます。
各用途地域の制限の概略はこちらで確認できます。⇒用途地域による建築物の用途制限の概要資料
特定の業種の場合、物件利用に制限がかかる可能性があるため、事前に行政窓口や専門家に相談することをお勧めします。
③ コストと予算計画
東京都の主要エリアでは、人気物件ほど賃料や購入価格が高騰する傾向があります。
初期投資だけでなく、物件維持費、管理費、将来的な改修・設備投資などの費用も含めた総合的な予算計画を立てましょう。
3. 最適な貸工場・貸倉庫を見つけるために
葛飾区周辺で事業用物件を成功裏に選ぶためには、立地条件・用途規制・総合的なコストバランスを慎重に評価する必要があります。
また、最新情報を常に収集し、賢明な選択を心がけましょう。 - Q3葛飾区周辺の貸工場・貸倉庫を貸したい!
- A3
是非、お気軽にお問い合わせください!
・「簡易査定」「詳細査定」と無料査定を随時実施中です!
貸工場・貸倉庫の豊富な取り扱い経験から適正査定を行ないます。
・「専任媒介」「専属専任媒介」「サブリース」はもちろん!
「一般媒介」からもお受けいたします!
・非公開での賃貸仲介も可能です。
弊社のストロングポイント!貸工場・貸倉庫をおさがしのお客様へ個別提案を行ないます。
『安心と信頼の取引。早く高くを追及しています。』 - Q4賃貸管理もお願いできますか?
- A4
はい、承っております。
賃料の入金管理・回収業務、入居者との調整、修繕アドバイス、明渡しの立会い・精算業務など、オーナー様の事業用不動産経営におけるさまざまなご負担やご心配を軽減いたします。
■ キャンペーン概要
弊社媒介(「専任媒介」または「専属専任媒介」に限ります)で賃貸借契約を締結のうえ、
「賃貸管理契約」をご利用いただいたお客様には、管理費3ヵ月分を無料とさせていただきます。
■ リアルタイムで管理状況を報告
募集活動や管理業務の状況などを、できる限りリアルタイムでご報告。
日々の進捗はもちろん、現場や打ち合わせ時なども電話・メール・LINEで随時ご連絡可能です。
まずはお気軽にお問い合わせください!
葛飾区の貸倉庫についてのお知らせ・ニュース
事業用不動産取引の知恵袋|「準工業地域」とは?

「準工業地域」とは、住宅と軽工業施設が共存できる用途地域のことです。
環境を著しく悪化させない工場であれば建築可能で、職住近接を叶えたい事業者や、店舗兼作業場を持ちたい方にとって、非常に使い勝手の良いエリアです。
この地域の最大の魅力は、土地活用の柔軟性です。
一戸建てやマンションはもちろん、店舗、オフィス、倉庫、町工場など、多様な建物が許可されています。
しかし、落とし穴もあります。
「準工業地域ならどこでも条件は同じ」ではありません。
騒音や振動、操業時間などの細かい規制は、各自治体の「条例」によって大きく異なるからです。
同じ準工業地域でも、自治体が変われば「騒音・振動規制の変化」「使える機械の制限」などが変わるケースも珍しくありません。
失敗を防ぐためには、候補地の自治体が定める独自のルールを事前に確認することが不可欠です。
都市計画図をチェックするだけでなく、事業用不動産に詳しい専門家に相談し、周辺環境や条例について正確な情報を得ることが成功の鍵となります。
自由と利便性を兼ね備えた準工業地域を、賢く活用しましょう。
「使っていない工場・倉庫あるけど、このままでいいのか…」

貸し倉庫の屋根構造について
- 成約済み物件は当サイトに掲載していた物件情報で、成約済みとなった情報を一部抜粋して掲載しています。
- それぞれの物件情報について、すべての制限・情報が表示されているわけではありません。
- 参考資料としてご利用下さい。








