貸工場・貸倉庫 墨田区 京成押上線八広駅 の貸工場・貸倉庫
| 物件No. | RBT32673 |
|---|---|
| 最寄駅 所在地 |
京成押上線「八広駅」徒歩19分 東京都墨田区東墨田 |
| 賃料 | 440,000円 礼 1ヶ月 / 敷 2ヶ月 |
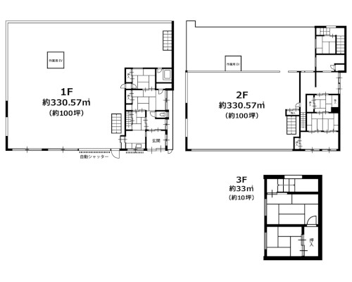
| 建物面積 | 694.14㎡ (209.97坪) |
墨田区-事務所付【貸し工場・貸し倉庫】
- Point 1木造3階建て 1階99.99坪・2階99.99坪・3階9.98坪
- Point 2墨田区|工業地域
| 物件No. | RBT32673 | ||
|---|---|---|---|
| 所在地 | 東京都墨田区東墨田 | ||
| 交通 | 京成押上線 「八広駅」 徒歩19分 | ||
| 賃料(月額) | 440,000円 | 管理費(月額) | |
| 敷金/保証金 | 敷 2ヶ月 | 礼金 | 1ヶ月 |
| 建物面積 | 694.14㎡ (209.97坪) | ||
| 土地面積 | |||
| 構造・規模 | 木造3階建て 1階99.99坪・2階99.99坪・3階9.98坪 | ||
| 築年月 | 1979年1月 | ||
| 接道状況 | |||
| 設備 | トイレ キッチン | ||
| 備考 | 消費税10%込表示。 ■■■ 個別提案によるマッチングサポート ■■■ 入手する物件情報は、オーナー様より直接、不動産業者、士業者、デベロッパーなどこれまでの取引を通じたネットワークによるものです。 ホームページに公開していない物件も多数ございます。 掲載をご希望されていない物件や、経済条件が決定していない物件などは公開されません。 公開できない物件情報については、いただいているお客様のご要望の中からマッチングして個別に提案させて頂いております。 ホームページに公開されている物件は、取扱物件全体のわずか一部です。 ホームページにマッチする物件がない場合でも、お気軽にご要望をお知らせください。 事業用不動産の賃貸・売買を取り巻く環境は絶えず変化しています。 最近の大きな変化では、2020年4月1日施行の民法改正があります。 また、お客様のコンプライアンスに関する基本方針も日々変化しています。 こうした環境変化・多様化するニーズに対応しながら、お客様のご要望に対し、全力でサポートいたします。 |
||
| 取引態様 | 媒介 | ||
周辺地図
東墨田周辺の貸工場・貸倉庫物件
周辺の物件との距離の計測は、Googleマップを利用し、直線距離となっております。
交通距離とは異なりますのでご注意ください。
座標の取得が出来ない場合など大きくずれを生じる場合があります。
貸工場・貸倉庫
東墨田から約0.00km
![東墨田 京成押上線[八広駅]の貸工場・貸倉庫物件の詳細はこちら](https://www.tatsuwa.com/bukken_imgs/thumb/RBT32257-img1_sch.jpg)
墨田区東墨田
[八広駅]
695.04㎡ (210.24坪)
825,000円
貸倉庫
東墨田から約0.00km
![東墨田 京成押上線[八広駅]の貸倉庫物件の詳細はこちら](https://www.tatsuwa.com/bukken_imgs/thumb/RBT32797-img1_sch.jpg)
墨田区東墨田
[八広駅]
329.60㎡ (99.70坪)
600,000円
貸倉庫
東墨田から約0.84km
![八広 京成押上線[京成曳舟駅]の貸倉庫物件の詳細はこちら](https://www.tatsuwa.com/bukken_imgs/thumb/_sch.jpg)
墨田区八広
[京成曳舟駅]
138.80㎡ (41.98坪)
300,000円
貸工場・貸倉庫
東墨田から約1.10km
![東四つ木 京成押上線[四ツ木駅]の貸工場・貸倉庫物件の詳細はこちら](https://www.tatsuwa.com/bukken_imgs/thumb/RBT32831-img1_sch.jpg)
葛飾区東四つ木
[四ツ木駅]
151.87㎡ (45.94坪)
352,000円
貸工場・貸倉庫
東墨田から約1.10km
![東四つ木 京成押上線[四ツ木駅]の貸工場・貸倉庫物件の詳細はこちら](https://www.tatsuwa.com/bukken_imgs/thumb/RBT34326-img1_sch.jpg)
葛飾区東四つ木
[四ツ木駅]
358.61㎡ (108.47坪)
770,000円
貸倉庫
東墨田から約1.75km
![平井 JR中央・総武緩行線[平井駅]の貸倉庫物件の詳細はこちら](https://www.tatsuwa.com/bukken_imgs/thumb/RBT32444-img1_sch.jpg)
江戸川区平井
[平井駅]
80.01㎡ (24.20坪)
253,000円
貸倉庫
東墨田から約1.82km
![東立石 京成押上線[京成立石駅]の貸倉庫物件の詳細はこちら](https://www.tatsuwa.com/bukken_imgs/thumb/RBT35113-img1_sch.jpg)
葛飾区東立石
[京成立石駅]
94.21㎡ (28.49坪)
200,000円
貸工場・貸倉庫
東墨田から約2.14km
![東新小岩 JR中央・総武緩行線[新小岩駅]の貸工場・貸倉庫物件の詳細はこちら](https://www.tatsuwa.com/bukken_imgs/thumb/RBT34519-img1_sch.jpg)
葛飾区東新小岩
[新小岩駅]
424.38㎡ (128.37坪)
550,000円
貸倉庫
東墨田から約2.35km
![新小岩 JR中央・総武緩行線[新小岩駅]の貸倉庫物件の詳細はこちら](https://www.tatsuwa.com/bukken_imgs/thumb/RBT34740-img1_sch.jpg)
葛飾区新小岩
[新小岩駅]
120.26㎡ (36.37坪)
330,000円
貸倉庫
東墨田から約2.45km
![亀戸 JR中央・総武緩行線[錦糸町駅]の貸倉庫物件の詳細はこちら](https://www.tatsuwa.com/bukken_imgs/thumb/RBT34943-img1_sch.jpg)
江東区亀戸
[錦糸町駅]
198.33㎡ (59.99坪)
429,000円
貸倉庫
東墨田から約2.45km
![亀戸 JR中央・総武緩行線[亀戸駅]の貸倉庫物件の詳細はこちら](https://www.tatsuwa.com/bukken_imgs/thumb/RBT34718-img1_sch.jpg)
江東区亀戸
[亀戸駅]
84.80㎡ (25.65坪)
230,000円
貸工場・貸倉庫
東墨田から約2.63km
![立石 京成押上線[京成立石駅]の貸工場・貸倉庫物件の詳細はこちら](https://www.tatsuwa.com/bukken_imgs/thumb/RBT12832-img1_sch.jpg)
葛飾区立石
[京成立石駅]
204.00㎡ (61.71坪)
440,000円
貸倉庫
東墨田から約2.64km
![横川 JR中央・総武緩行線[錦糸町駅]の貸倉庫物件の詳細はこちら](https://www.tatsuwa.com/bukken_imgs/thumb/RBT32155-img1_sch.jpg)
墨田区横川
[錦糸町駅]
127.87㎡ (38.68坪)
396,000円
貸工場・貸倉庫
東墨田から約2.93km
![宝町 京成本線[お花茶屋駅]の貸工場・貸倉庫物件の詳細はこちら](https://www.tatsuwa.com/bukken_imgs/thumb/RBT34888-img1_sch.jpg)
葛飾区宝町
[お花茶屋駅]
156.00㎡ (47.19坪)
385,000円
貸倉庫
東墨田から約3.05km
![清川 JR常磐線(上野~取手)[南千住駅]の貸倉庫物件の詳細はこちら](https://www.tatsuwa.com/bukken_imgs/thumb/RBT34082-img1_sch.jpg)
台東区清川
[南千住駅]
92.72㎡ (28.04坪)
275,000円
貸倉庫
東墨田から約3.28km
![奥戸 京成押上線[京成立石駅]の貸倉庫物件の詳細はこちら](https://www.tatsuwa.com/bukken_imgs/thumb/RBT29935-img1_sch.jpg)
葛飾区奥戸
[京成立石駅]
179.76㎡ (54.37坪)
300,000円
貸倉庫
東墨田から約3.28km
![奥戸 JR中央・総武緩行線[小岩駅]の貸倉庫物件の詳細はこちら](https://www.tatsuwa.com/bukken_imgs/thumb/RBT34887-img1_sch.jpg)
葛飾区奥戸
[小岩駅]
97.20㎡ (29.40坪)
258,720円
貸倉庫
東墨田から約3.44km
![大島 都営新宿線[大島駅]の貸倉庫物件の詳細はこちら](https://www.tatsuwa.com/bukken_imgs/thumb/RBT35123-img1_sch.jpg)
江東区大島
[大島駅]
155.51㎡ (47.04坪)
776,160円
貸工場・貸倉庫
東墨田から約3.64km
![白鳥 京成本線[お花茶屋駅]の貸工場・貸倉庫物件の詳細はこちら](https://www.tatsuwa.com/bukken_imgs/thumb/RBT34833-img1_sch.jpg)
葛飾区白鳥
[お花茶屋駅]
219.38㎡ (66.36坪)
800,000円
貸倉庫
東墨田から約4.72km
![西亀有 JR常磐線(上野~取手)[綾瀬駅]の貸倉庫物件の詳細はこちら](https://www.tatsuwa.com/bukken_imgs/thumb/RBT34802-img1_sch.jpg)
葛飾区西亀有
[綾瀬駅]
241.92㎡ (73.18坪)
385,000円
墨田区東墨田の貸工場・貸倉庫に関するFAQ
- Q1ホームページに掲載されている物件以外に墨田区東墨田周辺の貸工場・貸倉庫はあるのか?
- A1
当社のホームページに掲載されている貸工場・貸倉庫物件は、取扱物件全体の一部に過ぎません。
オーナー様が公開を希望されない物件や、募集条件が未確定の物件など、多数の非公開物件がございます。
これらの非公開物件につきましては、担当営業スタッフが個別にご提案させていただいております。
条件に合った貸工場・貸倉庫物件のご提案:
事業用不動産は物件特有の条件が強く、お客様のご要望も独自性が高いのが特徴です。
最近では供給も非常に少なく、物件探しは非常に大変になってきています。
お問い合わせいただくことで、担当スタッフがご希望に合った物件を探し、情報提供いたします。
公開物件に加え、非公開物件も含めた選択肢が広がります。
公開前の新着の貸工場・貸倉庫物件情報の入手:
物件種目やエリアによっては、募集開始から非常に人気となり、すぐにお申し込みが殺到する物件も多くあります。
こういった物件情報を公開前に入手することが可能となります。
貸工場・貸倉庫物件の情報配信サービスの利用:
お客様の希望条件に合った物件情報をメールにてタイムリーに配信するサービスも行っております。このサービスには非公開物件も含まれますので、より多くの情報を得ることができます。
立和コーポレーションの強み
独自ルートで収集した貸工場・貸倉庫物件情報:
オーナー様より直接いただく情報や、地元不動産会社様からの公開・非公開情報など、これまでの取引を通じたネットワークを大切にしております。
これにより、公開前の情報を担当スタッフから提供することが可能です。
専門性で的確なサポート:
物件種目や地域の特徴など、長年の経験と豊富な物件ラインナップを活かし、お客様の安全かつスムーズな不動産取引を全力でサポートいたします。
「なかなか条件に合う貸工場・貸倉庫が見つからない」という方は、ぜひお気軽にお問い合わせください。担当スタッフが全力でサポートいたします。
新着の貸工場・貸倉庫物件情報をいち早くゲット!「新着お知らせメール」
新着公開物件情報や更新情報を自動配信する物件さがしのサポートツール「新着お知らせメール」もあります。
新着物件情報を毎日自動でお知らせします!
届いたメールの中に気になる物件があれば、物件詳細ページで確認できます。
希望物件があればすぐに借りたい・買いたい方に便利な機能です。 - Q2墨田区東墨田周辺で貸工場・貸倉庫を探すためのポイント
- A2
1. 墨田区東墨田周辺の事業用不動産市場の特性を知る
墨田区東墨田周辺にて貸工場・貸倉庫を探す際は、市場動向や地域特性をしっかり理解することが重要です。
エリアごとの成長性や再開発情報を把握しておくと、将来的な事業展開にも役立ちます。
2. 貸工場・貸倉庫選びにおける重要なポイント
① 立地条件の確認
交通アクセスの良さは、事業の効率化や従業員の通勤利便性に直結します。
墨田区東墨田周辺の交通アクセスを確認しましょう。
駅や高速道路のインターチェンジに近い物件は、物流効率や事業運営のスムーズさを高めるため、積極的に検討しましょう。
② 用途適合性の確認
物件選定時は、都市計画法で規定されている用途地域を確認することが必須です。
墨田区東墨田周辺の用途地域を確認しましょう。
インターネットの検索エンジンで調べたい「市区町村名 都市計画図」と検索すればほとんどが閲覧できます。
各用途地域の制限の概略はこちらで確認できます。⇒用途地域による建築物の用途制限の概要資料
特定の業種の場合、物件利用に制限がかかる可能性があるため、事前に行政窓口や専門家に相談することをお勧めします。
③ コストと予算計画
東京都の主要エリアでは、人気物件ほど賃料や購入価格が高騰する傾向があります。
初期投資だけでなく、物件維持費、管理費、将来的な改修・設備投資などの費用も含めた総合的な予算計画を立てましょう。
3. 最適な貸工場・貸倉庫を見つけるために
墨田区東墨田周辺で事業用物件を成功裏に選ぶためには、立地条件・用途規制・総合的なコストバランスを慎重に評価する必要があります。
また、最新情報を常に収集し、賢明な選択を心がけましょう。 - Q3墨田区東墨田の貸工場・貸倉庫の賃貸査定はどのように行いますか?
- A3
当社では、賃貸物件および売却物件の査定において、豊富な経験と専門知識を活かし、適正かつ精度の高い査定を行っております。
お客様の状況やご要望に応じて、以下の2種類の査定方法をご提供しております。
簡易査定(机上査定)
・概要:物件の基本情報(所在地、面積、築年数など)をもとに、周辺地域の取引データや市場動向を参照し、概算の査定価格を算出いたします。
・おすすめの方:まだ検討段階にあり、事業方針を決めるための大まかな参考資料が必要な方に適しています。
・特記事項:現地調査を行わないため、あくまで概算の査定価格となります。
詳細査定(訪問査定)
・概要:当社の専門スタッフが実際に物件を訪問し、現地調査を実施します。物件の状態、周辺環境、法令上の制限などを詳細に確認し、より正確な査定価格を算出いたします。
・おすすめの方:具体的な事業方針の決定や、正確な査定価格を必要とされる方に最適です。
・特記事項:現地調査や行政への確認、法令制限の調査などを行い、査定結果に反映させます。
査定方法の選択やご不明な点がございましたら、担当スタッフまでお気軽にご相談ください。
お客様の状況に合わせ、柔軟かつ丁寧に対応いたします。 - Q4墨田区東墨田の貸工場・貸倉庫の賃貸管理もお願いできますか?
- A4
はい。当社ではオーナー様の事業用不動産経営をサポートするため、賃貸管理サービスを承っております。賃料の入金管理・回収業務、入居者との調整、修繕アドバイス、明渡しの立会い・精算業務など、さまざまなご負担やご心配を軽減いたします。
■ キャンペーン概要
弊社媒介(「専任媒介」または「専属専任媒介」に限ります)で賃貸借契約を締結のうえ、
「賃貸管理契約」をご利用いただいたお客様には、管理費3ヵ月分を無料とさせていただきます。
■ リアルタイムで管理状況を報告
当社では、募集活動や管理業務の状況などをできる限りリアルタイムでご報告いたします。
日々の進捗はもちろん、現場や打ち合わせ時なども電話・メール・LINEで随時ご連絡可能です。
まずはお気軽にお問い合わせください。
オーナー様の大切な資産を守り、最適な賃貸経営をサポートいたします。
墨田区の貸工場・貸倉庫についてのお知らせ・ニュース
建築確認済証・検査済証の必要性

建築確認済証は、建物を建てる前に計画が法令に合っていると確認されたことを示す書類です。
検査済証は、完成後に建物が計画どおりにつくられ、完了検査を終えたことを示す書類です。
書類がそろっていると、建物の履歴を確認しやすく、融資や各種手続きを進めやすくなります。
特に事業用不動産では、建物の活用方法に関わるため、重要性が高い書類です。
大切なのは、書類の内容と現在の建物の状態が一致しているかどうかです。
過去の増築や改修によって現況が変わっていると、後の手続きに影響することがあります。
そのため、書類の有無だけでなく、現況との一致も確認することが重要です。
特に銀行融資や用途変更を考える場合は、早めに有無を確認し、必要に応じて専門家に相談することが大切です。
契約前に書類と現況の両方を確認しておくことが、後のトラブル防止につながります。
なぜ「立和コーポレーション」の貸工場・貸倉庫査定が人気なのか!

貸し倉庫・賃貸倉庫の保管について
この物件についてのお問い合わせ
東京都墨田区東墨田 京成押上線 「八広駅」 徒歩19分の貸工場・貸倉庫物件です。
物件検索から内覧までの流れ
-

物件を検索する
エリア検索、路線検索、保存リストにて比較・検討ができますのでご利用ください。
-

お問い合わせする
お電話や、物件詳細ページのお問い合わせ、またはまとめてお問い合わせ等、各種フォームでのお問い合わせが可能です。
-

弊社よりご連絡
翌営業日までに担当営業からご連絡差し上げます。
-

ご内覧
担当営業立会いのもと、物件をご案内します。ご不明な点はお気軽にご質問ください。
電話でのお問い合わせ
物件No. : RBT32673
お電話でお問い合わせいただく場合は、東京店にご連絡いただくとスムーズです。
※神奈川店でもお受けいたしております。
東京店

または、神奈川店 042-759-5801
メールでのお問い合わせ
メールフォームでもお問い合わせいただけます。
必要項目をご入力ください。
- 各物件情報について、すべての制限・情報が表示されているわけではありません。
別途必要な費用・詳細情報等は、物件紹介時又は重要事項説明においてご説明いたします。 - 周辺地図は所在地周辺を表示しています。
(マーカーが無い場合は、町村まで表示しています。)
(マーカーがついている場合でも、表示サポート外に存在している場合は正確な位置を示していない場合があります。) - 募集状況は常時変動しているため、お問い合わせを頂いた時点でご紹介できない場合がございます。
経済条件は事情により変更されている場合がございます。








