売事業用地 木更津市 JR内房線・久留里線木更津駅 の売事業用地
| 物件No. | BLC34958 |
|---|---|
| 最寄駅 所在地 |
JR内房線・久留里線「木更津駅」徒歩35分 千葉県木更津市潮見 |
| 価格 | 75,000,000円 |
| 土地面積 | 991.72㎡ (299.99坪) |
木更津市-工場用地・倉庫用地・事業用地
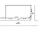
- Point 1西側道路幅員約12.1m公道 南側道路幅員約7.2,公道
- Point 2木更津市|準工業地域
- Point 3現況更地です。
| 物件No. | BLC34958 | ||
|---|---|---|---|
| 所在地 | 千葉県木更津市潮見 | ||
| 交通 | JR内房線・久留里線 「木更津駅」 徒歩35分 | ||
| 価格 | 75,000,000円 | ||
| 土地面積 | 991.72㎡ (299.99坪) | ||
| 土地権利 | 所有権 | 地目 | 宅地 |
| 現況 | 更地 | 引渡し日 | 相談 |
| 都市計画 | 市街化区域 | 建ぺい率/容積率 | 60/200 |
| 用途地域 | 準工業地域 | ||
| 他の法令上制限 | 法22条区域 | ||
| 接道状況 | 西側道路幅員約12.1m公道 南側道路幅員約7.2,公道 | ||
| 設備 | |||
| 備考 | ■■■ 事業用不動産の売買のことなら立和コーポレーションへ ■■■ 千葉・東京・神奈川・埼玉の事業用物件専門の不動産会社です。 木更津市の工場用地・倉庫用地・事業用地のことなら【立和コーポレーション】へ。 担当の営業スタッフが、豊富な物件情報の中からお客様の業種・用途に応じた最適な物件をご提案いたします。 お気軽にお問い合わせください。 ホームページに掲載していない物件も多数ございます。 オーナー様が掲載をご希望されていない物件や、目安価格があるものの価格が決定していない物件などは掲載されません。 また、情報拡散に向かない物件、経済条件が正式に決定していない場合は、ホームページに掲載することができない為、個別に提案させて頂いております。 特に売買物件については、ホームページに掲載されている物件は、取扱物件全体のわずか一部です。 まずは、ご希望の条件をお知らせください。(日本>千葉県:記事) ■■■ 関連キーワード(サイト内検索用) ■■■ 売地 売り土地 土地探し 価格 作業場用地 営業所用地 配送センター用地 店舗用地 事務所用地 ロードサイド 査定 販売 買取 募集 管理 売物件 非公開 事業用不動産 とは |
||
| 取引態様 | 媒介 | ||
周辺地図
潮見周辺の売事業用地物件
周辺の物件との距離の計測は、Googleマップを利用し、直線距離となっております。
交通距離とは異なりますのでご注意ください。
座標の取得が出来ない場合など大きくずれを生じる場合があります。
売事業用地
潮見から約2.59km
![太田 JR内房線[木更津駅]の売事業用地物件の詳細はこちら](https://www.tatsuwa.com/bukken_imgs/thumb/BLC30681-img1_sch.jpg)
木更津市太田
[木更津駅]
366.00㎡ (110.71坪)
30,000,000円
売事業用地
潮見から約3.63km
![東太田 JR内房線[木更津駅]の売事業用地物件の詳細はこちら](https://www.tatsuwa.com/bukken_imgs/thumb/BLC31794-img1_sch.jpg)
木更津市東太田
[木更津駅]
330.00㎡ (99.82坪)
39,800,000円
売事業用地
潮見から約6.56km
![大堀 JR内房線[青堀駅]の売事業用地物件の詳細はこちら](https://www.tatsuwa.com/bukken_imgs/thumb/BLC27372-img1_sch.jpg)
富津市大堀
[青堀駅]
3,463.11㎡ (1,047.59坪)
98,000,000円
売事業用地
潮見から約7.39km
![金田東 JR内房線[袖ケ浦駅]の売事業用地物件の詳細はこちら](https://www.tatsuwa.com/bukken_imgs/thumb/BLC33987-img1_sch.jpg)
木更津市金田東
[袖ケ浦駅]
568.16㎡ (171.86坪)
94,500,000円
売事業用地
潮見から約10.07km
![千種新田 JR内房線[大貫駅]の売事業用地物件の詳細はこちら](https://www.tatsuwa.com/bukken_imgs/thumb/_sch.jpg)
富津市千種新田
[大貫駅]
2,195.55㎡ (664.15坪)
66,000,000円
売事業用地
潮見から約18.44km
![今津朝山 JR内房線[姉ケ崎駅]の売事業用地物件の詳細はこちら](https://www.tatsuwa.com/bukken_imgs/thumb/BLC34936-img1_sch.jpg)
市原市今津朝山
[姉ケ崎駅]
330.57㎡ (99.99坪)
36,800,000円
売事業用地
潮見から約21.33km
![小折 小湊鉄道線[上総村上駅]の売事業用地物件の詳細はこちら](https://www.tatsuwa.com/bukken_imgs/thumb/BLC32962-img1_sch.jpg)
市原市小折
[上総村上駅]
1,432.00㎡ (433.18坪)
32,800,000円
売事業用地
潮見から約23.98km
![三春町 京急本線[県立大学駅]の売事業用地物件の詳細はこちら](https://www.tatsuwa.com/bukken_imgs/thumb/BLK30457-img1_sch.jpg)
横須賀市三春町
[県立大学駅]
196.72㎡ (59.50坪)
72,600,000円
売事業用地
潮見から約24.10km
![君塚 JR内房線[五井駅]の売事業用地物件の詳細はこちら](https://www.tatsuwa.com/bukken_imgs/thumb/BLC34953-img1_sch.jpg)
市原市君塚
[五井駅]
463.78㎡ (140.29坪)
77,000,000円
売事業用地
潮見から約24.12km
![安浦町 京急本線[県立大学駅]の売事業用地物件の詳細はこちら](https://www.tatsuwa.com/bukken_imgs/thumb/BLK34637-img1_sch.jpg)
横須賀市安浦町
[県立大学駅]
272.99㎡ (82.57坪)
130,000,000円
売事業用地
潮見から約24.50km
![白金町 JR内房線[八幡宿駅]の売事業用地物件の詳細はこちら](https://www.tatsuwa.com/bukken_imgs/thumb/BLC34935-img1_sch.jpg)
市原市白金町
[八幡宿駅]
936.24㎡ (283.21坪)
128,000,000円
売事業用地
潮見から約24.79km
![久里浜 JR横須賀線[久里浜駅]の売事業用地物件の詳細はこちら](https://www.tatsuwa.com/bukken_imgs/thumb/BLK29854-img1_sch.jpg)
横須賀市久里浜
[久里浜駅]
168.56㎡ (50.98坪)
55,000,000円
売事業用地
潮見から約25.77km
![渡田山王町 JR南武線・京急本線[八丁畷駅]の売事業用地物件の詳細はこちら](https://www.tatsuwa.com/bukken_imgs/thumb/BLK32521-img1_sch.jpg)
川崎市川崎区渡田山王町
[八丁畷駅]
43.91㎡ (13.28坪)
27,900,000円
売事業用地
潮見から約27.25km
![白砂町 ブルーライン[阪東橋駅]の売事業用地物件の詳細はこちら](https://www.tatsuwa.com/bukken_imgs/thumb/BLK34811-img1_sch.jpg)
横浜市南区白砂町
[阪東橋駅]
72.84㎡ (22.03坪)
76,800,000円
売事業用地
潮見から約27.25km
![白妙町 市営地下鉄ブルーライン[阪東橋駅]の売事業用地物件の詳細はこちら](https://www.tatsuwa.com/bukken_imgs/thumb/BLK34001-img1_sch.jpg)
横浜市南区白妙町
[阪東橋駅]
72.84㎡ (22.03坪)
76,800,000円
売事業用地
潮見から約27.48km
![日ノ出 京急本線[日ノ出町駅]の売事業用地物件の詳細はこちら](https://www.tatsuwa.com/bukken_imgs/thumb/BLK34863-img1_sch.jpg)
横浜市中区日ノ出
[日ノ出町駅]
46.28㎡ (13.99坪)
55,800,000円
売事業用地
潮見から約28.12km
![共進町 京急本線[南太田駅]の売事業用地物件の詳細はこちら](https://www.tatsuwa.com/bukken_imgs/thumb/BLK34176-img1_sch.jpg)
横浜市南区共進町
[南太田駅]
88.34㎡ (26.72坪)
45,800,000円
売事業用地
潮見から約33.17km
![中葛西 東京メトロ東西線[西葛西駅]の売事業用地物件の詳細はこちら](https://www.tatsuwa.com/bukken_imgs/thumb/BLT34764-img1_sch.jpg)
江戸川区中葛西
[西葛西駅]
167.00㎡ (50.51坪)
137,500,000円
売事業用地
潮見から約35.88km
![松江 都営新宿線[船堀駅]の売事業用地物件の詳細はこちら](https://www.tatsuwa.com/bukken_imgs/thumb/_sch.jpg)
江戸川区松江
[船堀駅]
576.59㎡ (174.41坪)
313,930,000円
売事業用地
潮見から約39.61km
![新田 JR総武本線[市川駅]の売事業用地物件の詳細はこちら](https://www.tatsuwa.com/bukken_imgs/thumb/BLC34826-img1_sch.jpg)
市川市新田
[市川駅]
43.62㎡ (13.19坪)
31,800,000円
木更津市潮見の売事業用地に関するFAQ
- Q1ホームページに掲載されている物件以外に木更津市潮見周辺の売事業用地はあるのか?
- A1
当社のホームページに掲載されている売事業用地物件は、取扱物件全体の一部に過ぎません。
オーナー様が公開を希望されない物件や、募集条件が未確定の物件など、多数の非公開物件がございます。
これらの非公開物件につきましては、担当営業スタッフが個別にご提案させていただいております。
条件に合った売事業用地物件のご提案:
事業用不動産は物件特有の条件が強く、お客様のご要望も独自性が高いのが特徴です。
最近では供給も非常に少なく、物件探しは非常に大変になってきています。
お問い合わせいただくことで、担当スタッフがご希望に合った物件を探し、情報提供いたします。
公開物件に加え、非公開物件も含めた選択肢が広がります。
公開前の新着の売事業用地物件情報の入手:
物件種目やエリアによっては、募集開始から非常に人気となり、すぐにお申し込みが殺到する物件も多くあります。
こういった物件情報を公開前に入手することが可能となります。
売事業用地物件の情報配信サービスの利用:
お客様の希望条件に合った物件情報をメールにてタイムリーに配信するサービスも行っております。このサービスには非公開物件も含まれますので、より多くの情報を得ることができます。
立和コーポレーションの強み
独自ルートで収集した売事業用地物件情報:
オーナー様より直接いただく情報や、地元不動産会社様からの公開・非公開情報など、これまでの取引を通じたネットワークを大切にしております。
これにより、公開前の情報を担当スタッフから提供することが可能です。
専門性で的確なサポート:
物件種目や地域の特徴など、長年の経験と豊富な物件ラインナップを活かし、お客様の安全かつスムーズな不動産取引を全力でサポートいたします。
「なかなか条件に合う売事業用地が見つからない」という方は、ぜひお気軽にお問い合わせください。担当スタッフが全力でサポートいたします。
新着の売事業用地物件情報をいち早くゲット!「新着お知らせメール」
新着公開物件情報や更新情報を自動配信する物件さがしのサポートツール「新着お知らせメール」もあります。
新着物件情報を毎日自動でお知らせします!
届いたメールの中に気になる物件があれば、物件詳細ページで確認できます。
希望物件があればすぐに借りたい・買いたい方に便利な機能です。 - Q2木更津市潮見で売事業用地を探すためのポイント
- A2
1. 木更津市潮見周辺の事業用不動産市場の特性を知る
木更津市潮見周辺にて売事業用地を探す際は、市場動向や地域特性をしっかり理解することが重要です。
エリアごとの成長性や再開発情報を把握しておくと、将来的な事業展開にも役立ちます。
2. 売事業用地選びにおける重要なポイント
① 立地条件の確認
交通アクセスの良さは、事業の効率化や従業員の通勤利便性に直結します。
木更津市潮見周辺の交通アクセスを確認しましょう。
駅や高速道路のインターチェンジに近い物件は、物流効率や事業運営のスムーズさを高めるため、積極的に検討しましょう。
② 用途適合性の確認
物件選定時は、都市計画法で規定されている用途地域を確認することが必須です。
木更津市潮見周辺の用途地域を確認しましょう。
インターネットの検索エンジンで調べたい「市区町村名 都市計画図」と検索すればほとんどが閲覧できます。
各用途地域の制限の概略はこちらで確認できます。⇒用途地域による建築物の用途制限の概要資料
特定の業種の場合、物件利用に制限がかかる可能性があるため、事前に行政窓口や専門家に相談することをお勧めします。
③ コストと予算計画
千葉県の主要エリアでは、人気物件ほど賃料や購入価格が高騰する傾向があります。
初期投資だけでなく、物件維持費、管理費、将来的な改修・設備投資などの費用も含めた総合的な予算計画を立てましょう。
3. 最適な売事業用地を見つけるために
木更津市潮見周辺で事業用物件を成功裏に選ぶためには、立地条件・用途規制・総合的なコストバランスを慎重に評価する必要があります。
また、最新情報を常に収集し、賢明な選択を心がけましょう。 - Q3木更津市潮見の売事業用地を売りたい!
- A3
是非、お気軽にお問い合わせください!
・「簡易査定」「詳細査定」と無料査定を随時実施中です!
売事業用地の豊富な取り扱い経験から適正査定を行ないます。
・「専任媒介」「専属専任媒介」はもちろん!
「一般媒介」からもお受けいたします!
・4つの売却方法を提案します!
①通常仲介
最も一般的な売却方法です。
売主様と買主様の間で立和コーポレーションが媒介し、売買取引をする方法です。
非公開での営業活動も可能です。
②業者買取(複数同時査定)
提携している事業用不動産の買取業者なかから、木更津市潮見の売事業用地を積極的に買取りする業者を複数社ご紹介させていただきます。
決済・引渡しまで立和コーポレーションが媒介し、売買取引の取りまとめを行ないます。
③買取保証
期限を決めて、その期日までに通常仲介にて売却できなかった場合に、あらかじめ取り決めた買取価格で買取業者へ売却する方法です。
通常仲介と業者買取の良い所取りです。
④リースバック買取
業者買取後、その買取業者と賃貸借契約を結びます。資金を得た後も賃料を支払うことで、これまでと同様にその不動産で事業を継続することができる方法です。
決済・引渡し・賃貸借契約まで立和コーポレーションが媒介し、取引の取りまとめを行ないます。
買取価格と賃料・契約期間など売買・賃貸とバランスを考慮し総合的に判断する必要があります。
複数業者で比較検討することが可能です。
『安心と信頼の取引。早く高くを追及しています。』 - Q4売却キャンペーンとは?
- A4
弊社にて不動産売却の仲介をご依頼いただいたお客様へ、お得なキャンペーンをご用意しております。
■ 空室管理サービス無料キャンペーン※1
売却期間中の空室維持管理(例:定期的な簡易清掃、換気など)を無料で行います。
売主様の負担を軽減し、物件価値の維持に努めます。
■ ギフト券プレゼントキャンペーン※2
売却成立時に5万円分のギフト券をプレゼント!
高く売れてさらにうれしい。
※1 設備機器の点検、修理・修繕、法定点検等の専門的な建物管理業務は対象外です。
※2 弊社の仲介によるお取引に限ります。お取引のお引渡し完了前に契約解除となった場合には適用されません。お取引のお引渡し完了をもって適用となります。弊社規定の仲介手数料をお支払いいただいたお客様に限ります。1つのお取引につき1回の適用となります。共有名義の場合には1名様のみ適用となります。その他弊社の規定による適用条件がございます。(不当景品類及び不当表示防止法による制限)
木更津市の売事業用地についてのお知らせ・ニュース
建築確認済証・検査済証の必要性

建築確認済証は、建物を建てる前に計画が法令に合っていると確認されたことを示す書類です。
検査済証は、完成後に建物が計画どおりにつくられ、完了検査を終えたことを示す書類です。
書類がそろっていると、建物の履歴を確認しやすく、融資や各種手続きを進めやすくなります。
特に事業用不動産では、建物の活用方法に関わるため、重要性が高い書類です。
大切なのは、書類の内容と現在の建物の状態が一致しているかどうかです。
過去の増築や改修によって現況が変わっていると、後の手続きに影響することがあります。
そのため、書類の有無だけでなく、現況との一致も確認することが重要です。
特に銀行融資や用途変更を考える場合は、早めに有無を確認し、必要に応じて専門家に相談することが大切です。
契約前に書類と現況の両方を確認しておくことが、後のトラブル防止につながります。
「立和コーポレーション」の売事業用地査定が選ばれる理由!

「売りたい方へ」 売事業用地物件募集中です!
この物件についてのお問い合わせ
千葉県木更津市潮見 JR内房線・久留里線 「木更津駅」 徒歩35分の売事業用地物件です。
物件検索から内覧までの流れ
-

物件を検索する
エリア検索、路線検索、保存リストにて比較・検討ができますのでご利用ください。
-

お問い合わせする
お電話や、物件詳細ページのお問い合わせ、またはまとめてお問い合わせ等、各種フォームでのお問い合わせが可能です。
-

弊社よりご連絡
翌営業日までに担当営業からご連絡差し上げます。
-

ご内覧
担当営業立会いのもと、物件をご案内します。ご不明な点はお気軽にご質問ください。
電話でのお問い合わせ
物件No. : BLC34958
お電話でお問い合わせいただく場合は、東京店にご連絡いただくとスムーズです。
※神奈川店でもお受けいたしております。
東京店

または、神奈川店 042-759-5801
メールでのお問い合わせ
メールフォームでもお問い合わせいただけます。
必要項目をご入力ください。
- 各物件情報について、すべての制限・情報が表示されているわけではありません。
別途必要な費用・詳細情報等は、物件紹介時又は重要事項説明においてご説明いたします。 - 周辺地図は所在地周辺を表示しています。
(マーカーが無い場合は、町村まで表示しています。)
(マーカーがついている場合でも、表示サポート外に存在している場合は正確な位置を示していない場合があります。) - 募集状況は常時変動しているため、お問い合わせを頂いた時点でご紹介できない場合がございます。
経済条件は事情により変更されている場合がございます。








