売事業用地 板橋区 東武東上線上板橋駅 の売事業用地
| 物件No. | BLT34502 |
|---|---|
| 最寄駅 所在地 |
東武東上線「上板橋駅」徒歩9分 東京都板橋区常盤台 |
| 価格 | 110,000,000円 |
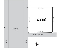
| 土地面積 | 122.53㎡ (37.06坪) |
板橋区-ビル用地・営業所用地・事業用地
- Point 1北西側道路幅員約11m公道
- Point 2板橋区|近隣商業地域
- Point 3現況更地です。
| 物件No. | BLT34502 | ||
|---|---|---|---|
| 所在地 | 東京都板橋区常盤台 | ||
| 交通 | 東武東上線 「上板橋駅」 徒歩9分 東武東上線 「ときわ台駅」 徒歩9分 |
||
| 価格 | 110,000,000円 | ||
| 土地面積 | 122.53㎡ (37.06坪) | ||
| 土地権利 | 所有権 | 地目 | 宅地 |
| 現況 | 更地 | 引渡し日 | 即可 |
| 都市計画 | 市街化区域 | 建ぺい率/容積率 | 80/300 |
| 用途地域 | 近隣商業地域 | ||
| 他の法令上制限 | 準防火地域 第三種高度地区 都市計画道路(計画決定) | ||
| 接道状況 | 北西側道路幅員約11m公道 | ||
| 設備 | |||
| 備考 | ■■■ 独自の物件情報からマッチング ■■■ 事業用不動産取引は、物件特有の条件が強く、またご購入をご検討のお客様のご要望も独自性が強いのが特徴です。 これまで培った専門的な知識やさまざまな経験を基に、お客様の安全な不動産取引のお手伝いができるよう取り組んでいます。 事業用不動産専門だからこそ寄せられる独自の物件情報が豊富! オーナー様より直接の情報や、地元不動産会社様からの公開・非公開情報と、これまでの取引を通じたネットワークを大切にしています。 確かな物件情報から、ご購入をご検討のお客様のご要望にマッチングするようご提案をさせていただきます。 ホームページに掲載されている物件は、取扱物件全体のわずか一部です。 まずは、ご希望の条件をお知らせください。(首都圏>東京都:記事) ■■■ 関連キーワード(サイト内検索用) ■■■ 売り地 アパート用地 マンション用地 商業用地 店舗用地 事務所用地 社宅用地 福祉施設用地 ホテル用地 ロードサイド 査定 購入 売却 販売 売物件 |
||
| 取引態様 | 媒介 | ||
周辺地図
常盤台周辺の売事業用地物件
周辺の物件との距離の計測は、Googleマップを利用し、直線距離となっております。
交通距離とは異なりますのでご注意ください。
座標の取得が出来ない場合など大きくずれを生じる場合があります。
売事業用地
常盤台から約3.66km
![神谷 東京メトロ南北線[志茂駅]の売事業用地物件の詳細はこちら](https://www.tatsuwa.com/bukken_imgs/thumb/BLT32484-img1_sch.jpg)
北区神谷
[志茂駅]
54.41㎡ (16.45坪)
78,000,000円
売事業用地
常盤台から約4.19km
![東池袋 JR山手線[大塚駅]の売事業用地物件の詳細はこちら](https://www.tatsuwa.com/bukken_imgs/thumb/BLT35015-img1_sch.jpg)
豊島区東池袋
[大塚駅]
72.33㎡ (21.87坪)
149,000,000円
売事業用地
常盤台から約4.94km
![喜沢南 JR埼京線[戸田公園駅]の売事業用地物件の詳細はこちら](https://www.tatsuwa.com/bukken_imgs/thumb/BLS34778-img1_sch.jpg)
戸田市喜沢南
[戸田公園駅]
103.47㎡ (31.29坪)
46,800,000円
売事業用地
常盤台から約5.14km
![川口 JR京浜東北線[川口駅]の売事業用地物件の詳細はこちら](https://www.tatsuwa.com/bukken_imgs/thumb/BLS35026-img1_sch.jpg)
川口市川口
[川口駅]
180.24㎡ (54.52坪)
125,000,000円
売事業用地
常盤台から約5.14km
![川口 JR京浜東北線[川口駅]の売事業用地物件の詳細はこちら](https://www.tatsuwa.com/bukken_imgs/thumb/BLS34349-img1_sch.jpg)
川口市川口
[川口駅]
119.20㎡ (36.05坪)
98,000,000円
売事業用地
常盤台から約5.59km
![幸町 JR京浜東北線[川口駅]の売事業用地物件の詳細はこちら](https://www.tatsuwa.com/bukken_imgs/thumb/_sch.jpg)
川口市幸町
[川口駅]
297.51㎡ (89.99坪)
400,000,000円
売事業用地
常盤台から約5.61km
![大塚 東京メトロ丸ノ内線[新大塚駅]の売事業用地物件の詳細はこちら](https://www.tatsuwa.com/bukken_imgs/thumb/_sch.jpg)
文京区大塚
[新大塚駅]
95.43㎡ (28.86坪)
179,800,000円
売事業用地
常盤台から約6.20km
![並木 JR京浜東北線[西川口駅]の売事業用地物件の詳細はこちら](https://www.tatsuwa.com/bukken_imgs/thumb/BLS30048-img1_sch.jpg)
川口市並木
[西川口駅]
188.42㎡ (56.99坪)
200,000,000円
売事業用地
常盤台から約6.21km
![旭町 東武東上線[成増駅]の売事業用地物件の詳細はこちら](https://www.tatsuwa.com/bukken_imgs/thumb/BLT30022-img1_sch.jpg)
練馬区旭町
[成増駅]
334.66㎡ (101.23坪)
185,000,000円
売事業用地
常盤台から約6.35km
![上戸田 JR埼京線[戸田公園駅]の売事業用地物件の詳細はこちら](https://www.tatsuwa.com/bukken_imgs/thumb/BLS34613-img1_sch.jpg)
戸田市上戸田
[戸田公園駅]
174.42㎡ (52.76坪)
105,000,000円
売事業用地
常盤台から約7.01km
![塚越 JR京浜東北線[蕨駅]の売事業用地物件の詳細はこちら](https://www.tatsuwa.com/bukken_imgs/thumb/_sch.jpg)
蕨市塚越
[蕨駅]
160.16㎡ (48.44坪)
198,000,000円
売事業用地
常盤台から約7.17km
![中央 JR京浜東北線[蕨駅]の売事業用地物件の詳細はこちら](https://www.tatsuwa.com/bukken_imgs/thumb/BLS30680-img1_sch.jpg)
蕨市中央
[蕨駅]
161.91㎡ (48.97坪)
171,400,000円
売事業用地
常盤台から約7.25km
![東尾久 東京メトロ千代田線[町屋駅]の売事業用地物件の詳細はこちら](https://www.tatsuwa.com/bukken_imgs/thumb/BLT34774-img1_sch.jpg)
荒川区東尾久
[町屋駅]
60.18㎡ (18.20坪)
74,800,000円
売事業用地
常盤台から約7.85km
![北町 JR京浜東北線[蕨駅]の売事業用地物件の詳細はこちら](https://www.tatsuwa.com/bukken_imgs/thumb/BLS32837-img1_sch.jpg)
蕨市北町
[蕨駅]
269.26㎡ (81.45坪)
99,000,000円
売事業用地
常盤台から約8.28km
![梅里 東京メトロ丸ノ内線[新高円寺駅]の売事業用地物件の詳細はこちら](https://www.tatsuwa.com/bukken_imgs/thumb/BLT33048-img1_sch.jpg)
杉並区梅里
[新高円寺駅]
61.74㎡ (18.67坪)
85,000,000円
売事業用地
常盤台から約8.39km
![本町 東武東上線・東京メトロ有楽町線・副都心線[和光市駅]の売事業用地物件の詳細はこちら](https://www.tatsuwa.com/bukken_imgs/thumb/BLS34569-img1_sch.jpg)
和光市本町
[和光市駅]
187.16㎡ (56.61坪)
59,800,000円
売事業用地
常盤台から約8.54km
![本木 日暮里・舎人ライナー[扇大橋駅]の売事業用地物件の詳細はこちら](https://www.tatsuwa.com/bukken_imgs/thumb/BLT30834-img1_sch.jpg)
足立区本木
[扇大橋駅]
423.79㎡ (128.19坪)
88,500,000円
売事業用地
常盤台から約9.07km
![芝 JR京浜東北線[蕨駅]の売事業用地物件の詳細はこちら](https://www.tatsuwa.com/bukken_imgs/thumb/_sch.jpg)
川口市芝
[蕨駅]
116.28㎡ (35.17坪)
37,900,000円
売事業用地
常盤台から約10.96km
![太田窪 JR武蔵野線・京浜東北線[南浦和駅]の売事業用地物件の詳細はこちら](https://www.tatsuwa.com/bukken_imgs/thumb/BLS34480-img1_sch.jpg)
さいたま市南区太田窪
[南浦和駅]
103.59㎡ (31.33坪)
31,800,000円
売事業用地
常盤台から約10.96km
![太田窪 JR武蔵野線・京浜東北線[南浦和駅]の売事業用地物件の詳細はこちら](https://www.tatsuwa.com/bukken_imgs/thumb/BLS34551-img1_sch.jpg)
さいたま市南区太田窪
[南浦和駅]
627.38㎡ (189.78坪)
333,000,000円
板橋区常盤台の売事業用地に関するFAQ
- Q1ホームページに掲載されている物件以外に板橋区常盤台周辺の売事業用地はあるのか?
- A1
当社のホームページに掲載されている売事業用地物件は、取扱物件全体の一部に過ぎません。
オーナー様が公開を希望されない物件や、募集条件が未確定の物件など、多数の非公開物件がございます。
これらの非公開物件につきましては、担当営業スタッフが個別にご提案させていただいております。
条件に合った売事業用地物件のご提案:
事業用不動産は物件特有の条件が強く、お客様のご要望も独自性が高いのが特徴です。
最近では供給も非常に少なく、物件探しは非常に大変になってきています。
お問い合わせいただくことで、担当スタッフがご希望に合った物件を探し、情報提供いたします。
公開物件に加え、非公開物件も含めた選択肢が広がります。
公開前の新着の売事業用地物件情報の入手:
物件種目やエリアによっては、募集開始から非常に人気となり、すぐにお申し込みが殺到する物件も多くあります。
こういった物件情報を公開前に入手することが可能となります。
売事業用地物件の情報配信サービスの利用:
お客様の希望条件に合った物件情報をメールにてタイムリーに配信するサービスも行っております。このサービスには非公開物件も含まれますので、より多くの情報を得ることができます。
立和コーポレーションの強み
独自ルートで収集した売事業用地物件情報:
オーナー様より直接いただく情報や、地元不動産会社様からの公開・非公開情報など、これまでの取引を通じたネットワークを大切にしております。
これにより、公開前の情報を担当スタッフから提供することが可能です。
専門性で的確なサポート:
物件種目や地域の特徴など、長年の経験と豊富な物件ラインナップを活かし、お客様の安全かつスムーズな不動産取引を全力でサポートいたします。
「なかなか条件に合う売事業用地が見つからない」という方は、ぜひお気軽にお問い合わせください。担当スタッフが全力でサポートいたします。
新着の売事業用地物件情報をいち早くゲット!「新着お知らせメール」
新着公開物件情報や更新情報を自動配信する物件さがしのサポートツール「新着お知らせメール」もあります。
新着物件情報を毎日自動でお知らせします!
届いたメールの中に気になる物件があれば、物件詳細ページで確認できます。
希望物件があればすぐに借りたい・買いたい方に便利な機能です。 - Q2板橋区常盤台で売事業用地を探すためのポイント
- A2
1. 板橋区常盤台周辺の事業用不動産市場の特性を知る
板橋区常盤台周辺にて売事業用地を探す際は、市場動向や地域特性をしっかり理解することが重要です。
エリアごとの成長性や再開発情報を把握しておくと、将来的な事業展開にも役立ちます。
2. 売事業用地選びにおける重要なポイント
① 立地条件の確認
交通アクセスの良さは、事業の効率化や従業員の通勤利便性に直結します。
板橋区常盤台周辺の交通アクセスを確認しましょう。
駅や高速道路のインターチェンジに近い物件は、物流効率や事業運営のスムーズさを高めるため、積極的に検討しましょう。
② 用途適合性の確認
物件選定時は、都市計画法で規定されている用途地域を確認することが必須です。
板橋区常盤台周辺の用途地域を確認しましょう。
インターネットの検索エンジンで調べたい「市区町村名 都市計画図」と検索すればほとんどが閲覧できます。
各用途地域の制限の概略はこちらで確認できます。⇒用途地域による建築物の用途制限の概要資料
特定の業種の場合、物件利用に制限がかかる可能性があるため、事前に行政窓口や専門家に相談することをお勧めします。
③ コストと予算計画
東京都の主要エリアでは、人気物件ほど賃料や購入価格が高騰する傾向があります。
初期投資だけでなく、物件維持費、管理費、将来的な改修・設備投資などの費用も含めた総合的な予算計画を立てましょう。
3. 最適な売事業用地を見つけるために
板橋区常盤台周辺で事業用物件を成功裏に選ぶためには、立地条件・用途規制・総合的なコストバランスを慎重に評価する必要があります。
また、最新情報を常に収集し、賢明な選択を心がけましょう。 - Q3板橋区常盤台の売事業用地を売りたい!
- A3
是非、お気軽にお問い合わせください!
・「簡易査定」「詳細査定」と無料査定を随時実施中です!
売事業用地の豊富な取り扱い経験から適正査定を行ないます。
・「専任媒介」「専属専任媒介」はもちろん!
「一般媒介」からもお受けいたします!
・4つの売却方法を提案します!
①通常仲介
最も一般的な売却方法です。
売主様と買主様の間で立和コーポレーションが媒介し、売買取引をする方法です。
非公開での営業活動も可能です。
②業者買取(複数同時査定)
提携している事業用不動産の買取業者なかから、板橋区常盤台の売事業用地を積極的に買取りする業者を複数社ご紹介させていただきます。
決済・引渡しまで立和コーポレーションが媒介し、売買取引の取りまとめを行ないます。
③買取保証
期限を決めて、その期日までに通常仲介にて売却できなかった場合に、あらかじめ取り決めた買取価格で買取業者へ売却する方法です。
通常仲介と業者買取の良い所取りです。
④リースバック買取
業者買取後、その買取業者と賃貸借契約を結びます。資金を得た後も賃料を支払うことで、これまでと同様にその不動産で事業を継続することができる方法です。
決済・引渡し・賃貸借契約まで立和コーポレーションが媒介し、取引の取りまとめを行ないます。
買取価格と賃料・契約期間など売買・賃貸とバランスを考慮し総合的に判断する必要があります。
複数業者で比較検討することが可能です。
『安心と信頼の取引。早く高くを追及しています。』 - Q4売却キャンペーンとは?
- A4
弊社にて不動産売却の仲介をご依頼いただいたお客様へ、お得なキャンペーンをご用意しております。
■ 空室管理サービス無料キャンペーン※1
売却期間中の空室維持管理(例:定期的な簡易清掃、換気など)を無料で行います。
売主様の負担を軽減し、物件価値の維持に努めます。
■ ギフト券プレゼントキャンペーン※2
売却成立時に5万円分のギフト券をプレゼント!
高く売れてさらにうれしい。
※1 設備機器の点検、修理・修繕、法定点検等の専門的な建物管理業務は対象外です。
※2 弊社の仲介によるお取引に限ります。お取引のお引渡し完了前に契約解除となった場合には適用されません。お取引のお引渡し完了をもって適用となります。弊社規定の仲介手数料をお支払いいただいたお客様に限ります。1つのお取引につき1回の適用となります。共有名義の場合には1名様のみ適用となります。その他弊社の規定による適用条件がございます。(不当景品類及び不当表示防止法による制限)
板橋区の売事業用地についてのお知らせ・ニュース
「立和コーポレーション」の売事業用地査定が選ばれる理由!

事業用不動産の引渡時チェックリスト

境界標(杭)を現地で指差し確認し、ブロック塀やフェンスがどちらの所有物かを確認します。
大型車両の出入りに支障がないか、引渡し時の現況を改めて見ておくことで、運用開始後の「思わぬトラブル」を防げます。
三相(動力)電源、キュービクル、クレーン、荷物用リフト、大型シャッター、空調設備など。
雨漏り跡、床のひび割れ、給排水の漏れ。
「譲渡(使ってよいもの)」なのか「撤去対象」なのかを明確にし、リスト化しましょう。
電気・水道・ガスの数値を写真に撮り、精算の基準日を確定させます。
「何を・何本・何部」受け取ったかの一覧表(引渡確認書)を作成し、双方が署名捺印すると最も安心です。
不動産を取得したときの税金
この物件についてのお問い合わせ
東京都板橋区常盤台 東武東上線 「上板橋駅」 徒歩9分の売事業用地物件です。
物件検索から内覧までの流れ
-

物件を検索する
エリア検索、路線検索、保存リストにて比較・検討ができますのでご利用ください。
-

お問い合わせする
お電話や、物件詳細ページのお問い合わせ、またはまとめてお問い合わせ等、各種フォームでのお問い合わせが可能です。
-

弊社よりご連絡
翌営業日までに担当営業からご連絡差し上げます。
-

ご内覧
担当営業立会いのもと、物件をご案内します。ご不明な点はお気軽にご質問ください。
電話でのお問い合わせ
物件No. : BLT34502
お電話でお問い合わせいただく場合は、東京店にご連絡いただくとスムーズです。
※神奈川店でもお受けいたしております。
東京店

または、神奈川店 042-759-5801
メールでのお問い合わせ
メールフォームでもお問い合わせいただけます。
必要項目をご入力ください。
- 各物件情報について、すべての制限・情報が表示されているわけではありません。
別途必要な費用・詳細情報等は、物件紹介時又は重要事項説明においてご説明いたします。 - 周辺地図は所在地周辺を表示しています。
(マーカーが無い場合は、町村まで表示しています。)
(マーカーがついている場合でも、表示サポート外に存在している場合は正確な位置を示していない場合があります。) - 募集状況は常時変動しているため、お問い合わせを頂いた時点でご紹介できない場合がございます。
経済条件は事情により変更されている場合がございます。








