貸倉庫 横浜市港北区 横浜市営地下鉄グリーンライン高田駅 の貸倉庫 (募集は終了しました。)
| 物件No. | RBK34358 |
|---|---|
| 最寄駅 所在地 |
横浜市営地下鉄グリーンライン「高田駅」 神奈川県横浜市港北区 |
| 賃料 | 385,000円 礼 1ヶ月 / 敷 3ヶ月 |
横浜市港北区-貸倉庫・貸し倉庫・賃貸倉庫
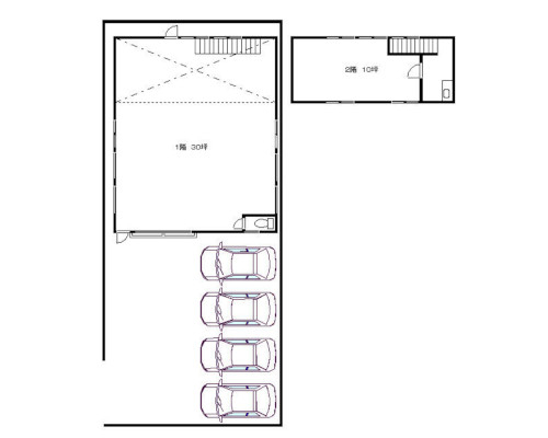
- Point 1鉄骨造2階建て1階部分
- Point 2横浜市港北区|駐車場あり(無料・約4台)
- Point 3市街化調整区域
| 物件No. | RBK34358 | ||
|---|---|---|---|
| 所在地 | 神奈川県横浜市港北区 | ||
| 交通 ※駅までの直線距離で自動表示 実際の交通とは異なります。 |
横浜市営地下鉄グリーンライン 「東山田駅」 横浜市営地下鉄グリーンライン 「高田駅」 | ||
| 賃料(月額) | 385,000円 | 管理費(月額) | なし |
| 敷金/保証金 | 敷 3ヶ月 | 礼金 | 1ヶ月 |
| 建物面積 | 約39坪 | ||
| 土地面積 | |||
| 構造・規模 | 鉄骨造2階建て1階部分 | ||
| 築年月 | 1987年4月 | ||
| 接道状況 | |||
| 設備 | トイレ プロパンガス | ||
| 備考 | 消費税10%込表示。 ■■■ 独自の物件情報からマッチング ■■■ 事業用不動産取引は、物件特有の条件が強く、また賃借をご検討のお客様のご要望も独自性が強いのが特徴です。 これまで培った専門的な知識やさまざまな経験を基に、お客様の安全な不動産取引のお手伝いができるよう取り組んでいます。 事業用不動産専門だからこそ寄せられる独自の物件情報が豊富! オーナー様より直接の情報や、地元不動産会社様からの公開・非公開情報と、これまでの取引を通じたネットワークを大切にしています。 確かな物件情報から、賃借をご検討のお客様のご要望にマッチングするようご提案をさせていただきます。 ホームページに掲載されている物件は、取扱物件全体のわずか一部です。 まずは、ご希望の条件をお知らせください。 |
||
| 取引態様 | 媒介 | ||
|
こちらの物件は、募集終了しました。 他の物件検索はこちら |
|||
お問い合わせ可能な横浜市港北区周辺の貸工場・貸倉庫物件
座標の取得が出来ない場合など大きくずれを生じる場合があります。
貸倉庫
![新吉田町 横浜市高速鉄道4号線[高田駅]の貸倉庫物件の詳細はこちら](https://www.tatsuwa.com/bukken_imgs/thumb/RBK33833-img1_sch.jpg)
横浜市港北区新吉田町
[高田駅]
208.00㎡ (62.92坪)
497,700円
貸倉庫
![早渕 横浜市営地下鉄ブルーライン[仲町台駅]の貸倉庫物件の詳細はこちら](https://www.tatsuwa.com/bukken_imgs/thumb/RBK34380-img1_sch.jpg)
横浜市都筑区早渕
[仲町台駅]
145.35㎡ (43.96坪)
341,000円
貸倉庫
![新吉田東 横浜市高速鉄道4号線[高田駅]の貸倉庫物件の詳細はこちら](https://www.tatsuwa.com/bukken_imgs/thumb/RBK34159-img1_sch.jpg)
横浜市港北区新吉田東
[高田駅]
397.10㎡ (120.12坪)
1,320,000円
貸倉庫
![新吉田東 横浜市高速鉄道4号線[高田駅]の貸倉庫物件の詳細はこちら](https://www.tatsuwa.com/bukken_imgs/thumb/RBK34244-img1_sch.jpg)
横浜市港北区新吉田東
[高田駅]
264.46㎡ (79.99坪)
990,000円
貸倉庫
![勝田町 横浜市高速鉄道1号線・3号線[センター南駅]の貸倉庫物件の詳細はこちら](https://www.tatsuwa.com/bukken_imgs/thumb/RBK10298-img1_sch.jpg)
横浜市都筑区勝田町
[センター南駅]
81.55㎡ (24.66坪)
275,000円
貸倉庫
![勝田町 横浜市高速鉄道4号線[東山田駅]の貸倉庫物件の詳細はこちら](https://www.tatsuwa.com/bukken_imgs/thumb/RBK28599-img1_sch.jpg)
横浜市都筑区勝田町
[東山田駅]
69.43㎡ (21.00坪)
173,250円
貸工場・貸倉庫
![新羽町 横浜市高速鉄道1号線・3号線[新羽駅]の貸工場・貸倉庫物件の詳細はこちら](https://www.tatsuwa.com/bukken_imgs/thumb/RBK31058-img1_sch.jpg)
横浜市港北区新羽町
[新羽駅]
140.49㎡ (42.49坪)
451,000円
貸工場・貸倉庫
![新羽町 横浜市営地下鉄ブルーライン[北新横浜駅]の貸工場・貸倉庫物件の詳細はこちら](https://www.tatsuwa.com/bukken_imgs/thumb/RBK34707-img1_sch.jpg)
横浜市港北区新羽町
[北新横浜駅]
611.92㎡ (185.10坪)
1,650,000円
貸工場・貸倉庫
![新羽町 横浜市高速鉄道1号線・3号線[新羽駅]の貸工場・貸倉庫物件の詳細はこちら](https://www.tatsuwa.com/bukken_imgs/thumb/RBK34026-img1_sch.jpg)
横浜市港北区新羽町
[新羽駅]
878.00㎡ (265.59坪)
2,475,000円
貸工場・貸倉庫
![新羽町 横浜市営地下鉄ブルーライン[北新横浜駅]の貸工場・貸倉庫物件の詳細はこちら](https://www.tatsuwa.com/bukken_imgs/thumb/RBK34449-img1_sch.jpg)
横浜市港北区新羽町
[北新横浜駅]
104.34㎡ (31.56坪)
381,700円
貸工場・貸倉庫
![新羽町 横浜市高速鉄道1号線3号線[北新横浜駅]の貸工場・貸倉庫物件の詳細はこちら](https://www.tatsuwa.com/bukken_imgs/thumb/RBK19378-img1_sch.jpg)
横浜市港北区新羽町
[北新横浜駅]
635.96㎡ (192.38坪)
1,056,000円
貸工場・貸倉庫
![新羽町 横浜市高速鉄道1号線3号線[新羽駅]の貸工場・貸倉庫物件の詳細はこちら](https://www.tatsuwa.com/bukken_imgs/thumb/RBK28301-img1_sch.jpg)
横浜市港北区新羽町
[新羽駅]
55.81㎡ (16.88坪)
165,000円
貸倉庫
![新羽町 横浜市高速鉄道1号線3号線[北新横浜駅]の貸倉庫物件の詳細はこちら](https://www.tatsuwa.com/bukken_imgs/thumb/RBK27639-img1_sch.jpg)
横浜市港北区新羽町
[北新横浜駅]
130.32㎡ (39.42坪)
450,000円
貸倉庫
![東山田町 横浜市営地下鉄グリーンライン[東山田駅]の貸倉庫物件の詳細はこちら](https://www.tatsuwa.com/bukken_imgs/thumb/RBK34477-img1_sch.jpg)
横浜市都筑区東山田町
[東山田駅]
80.00㎡ (24.20坪)
380,000円
貸倉庫
![大棚町 横浜市営地下鉄ブルーライン[センター北]の貸倉庫物件の詳細はこちら](https://www.tatsuwa.com/bukken_imgs/thumb/RBK34762-img1_sch.jpg)
横浜市都筑区大棚町
[センター北]
1,024.79㎡ (309.99坪)
3,069,000円
貸工場・貸倉庫
![南山田 横浜市営地下鉄グリーンライン[北山田駅]の貸工場・貸倉庫物件の詳細はこちら](https://www.tatsuwa.com/bukken_imgs/thumb/RBK34212-img1_sch.jpg)
横浜市都筑区南山田
[北山田駅]
80.64㎡ (24.39坪)
230,000円
貸倉庫
![折本町 横浜市営地下鉄ブルーライン[仲町台駅]の貸倉庫物件の詳細はこちら](https://www.tatsuwa.com/bukken_imgs/thumb/RBK34476-img1_sch.jpg)
横浜市都筑区折本町
[仲町台駅]
202.93㎡ (61.38坪)
297,000円
貸倉庫
![茅ケ崎東 横浜市高速鉄道1号線・3号線[センター南駅]の貸倉庫物件の詳細はこちら](https://www.tatsuwa.com/bukken_imgs/thumb/RBK33966-img1_sch.jpg)
横浜市都筑区茅ケ崎東
[センター南駅]
224.30㎡ (67.85坪)
605,000円
貸倉庫
![茅ケ崎東 横浜市高速鉄道1号線・3号線[センター北駅]の貸倉庫物件の詳細はこちら](https://www.tatsuwa.com/bukken_imgs/thumb/RBK33417-img1_sch.jpg)
横浜市都筑区茅ケ崎東
[センター北駅]
585.30㎡ (177.05坪)
1,650,000円
貸倉庫
![東山田 横浜市営地下鉄グリーンライン[東山田駅]の貸倉庫物件の詳細はこちら](https://www.tatsuwa.com/bukken_imgs/thumb/RBK34612-img1_sch.jpg)
横浜市都筑区東山田
[東山田駅]
48.96㎡ (14.81坪)
198,000円
貸工場・貸倉庫
![新羽町 横浜市営地下鉄ブルーライン[北新横浜駅]の貸工場・貸倉庫物件の詳細はこちら](https://www.tatsuwa.com/bukken_imgs/thumb/RBK34706-img1_sch.jpg)
横浜市港北区新羽町
[北新横浜駅]
299.80㎡ (90.68坪)
1,100,000円
貸工場・貸倉庫
![東方町 横浜市営地下鉄ブルーライン[仲町台駅]の貸工場・貸倉庫物件の詳細はこちら](https://www.tatsuwa.com/bukken_imgs/thumb/RBK34545-img1_sch.jpg)
横浜市都筑区東方町
[仲町台駅]
1,571.09㎡ (475.25坪)
4,180,000円
貸工場・貸倉庫
![東方町 横浜市営地下鉄ブルーライン[新羽駅]の貸工場・貸倉庫物件の詳細はこちら](https://www.tatsuwa.com/bukken_imgs/thumb/RBK34197-img1_sch.jpg)
横浜市都筑区東方町
[新羽駅]
118.50㎡ (35.84坪)
550,000円
貸工場・貸倉庫
![川向町 JR横浜線[小机駅]の貸工場・貸倉庫物件の詳細はこちら](https://www.tatsuwa.com/bukken_imgs/thumb/RBK33501-img1_sch.jpg)
横浜市都筑区川向町
[小机駅]
94.77㎡ (28.66坪)
297,000円
貸倉庫
![樽町 東急東横線[綱島駅]の貸倉庫物件の詳細はこちら](https://www.tatsuwa.com/bukken_imgs/thumb/RBK33602-img1_sch.jpg)
横浜市港北区樽町
[綱島駅]
200.84㎡ (60.75坪)
470,000円
貸工場・貸倉庫
![樽町 東急東横線[綱島駅]の貸工場・貸倉庫物件の詳細はこちら](https://www.tatsuwa.com/bukken_imgs/thumb/RBK33952-img1_sch.jpg)
横浜市港北区樽町
[綱島駅]
111.96㎡ (33.86坪)
308,000円
貸倉庫
![東野川 東急田園都市線[鷺沼駅]の貸倉庫物件の詳細はこちら](https://www.tatsuwa.com/bukken_imgs/thumb/RBK34700-img1_sch.jpg)
川崎市高津区東野川
[鷺沼駅]
316.09㎡ (95.61坪)
946,000円
貸工場・貸倉庫
![綱島東 東急東横線[綱島駅]の貸工場・貸倉庫物件の詳細はこちら](https://www.tatsuwa.com/bukken_imgs/thumb/RBK07543-img1_sch.jpg)
横浜市港北区綱島東
[綱島駅]
120.78㎡ (36.53坪)
401,500円
貸工場・貸倉庫
![綱島東 東急東横線[綱島駅]の貸工場・貸倉庫物件の詳細はこちら](https://www.tatsuwa.com/bukken_imgs/thumb/RBK01090-img1_sch.jpg)
横浜市港北区綱島東
[綱島駅]
105.78㎡ (31.99坪)
352,000円
貸倉庫
![綱島東 東急東横線[綱島駅]の貸倉庫物件の詳細はこちら](https://www.tatsuwa.com/bukken_imgs/thumb/RBK34412-img1_sch.jpg)
横浜市港北区綱島東
[綱島駅]
146.67㎡ (44.36坪)
450,000円
貸倉庫
![綱島東 東急東横線[綱島駅]の貸倉庫物件の詳細はこちら](https://www.tatsuwa.com/bukken_imgs/thumb/RBK34343-img1_sch.jpg)
横浜市港北区綱島東
[綱島駅]
111.07㎡ (33.59坪)
369,600円
貸工場・貸倉庫
![綱島東 東急東横線[綱島駅]の貸工場・貸倉庫物件の詳細はこちら](https://www.tatsuwa.com/bukken_imgs/thumb/RBK34685-img1_sch.jpg)
横浜市港北区綱島東
[綱島駅]
59.78㎡ (18.08坪)
198,000円
貸工場・貸倉庫
![小机町 JR横浜線[小机駅]の貸工場・貸倉庫物件の詳細はこちら](https://www.tatsuwa.com/bukken_imgs/thumb/RBK34039-img1_sch.jpg)
横浜市港北区小机町
[小机駅]
792.60㎡ (239.76坪)
1,848,000円
貸工場・貸倉庫
![池辺町 横浜市高速鉄道1号線・3号線[新羽駅]の貸工場・貸倉庫物件の詳細はこちら](https://www.tatsuwa.com/bukken_imgs/thumb/RBK05037-img1_sch.jpg)
横浜市都筑区池辺町
[新羽駅]
119.27㎡ (36.07坪)
396,000円
貸工場・貸倉庫
![池辺町 横浜市高速鉄道1号線・3号線[新羽駅]の貸工場・貸倉庫物件の詳細はこちら](https://www.tatsuwa.com/bukken_imgs/thumb/RBK31077-img1_sch.jpg)
横浜市都筑区池辺町
[新羽駅]
76.03㎡ (22.99坪)
253,000円
貸工場・貸倉庫
![池辺町 JR横浜線[鴨居駅]の貸工場・貸倉庫物件の詳細はこちら](https://www.tatsuwa.com/bukken_imgs/thumb/RBK31140-img1_sch.jpg)
横浜市都筑区池辺町
[鴨居駅]
80.00㎡ (24.20坪)
185,900円
貸工場・貸倉庫
![池辺町 JR横浜線[鴨居駅]の貸工場・貸倉庫物件の詳細はこちら](https://www.tatsuwa.com/bukken_imgs/thumb/RBK33218-img1_sch.jpg)
横浜市都筑区池辺町
[鴨居駅]
220.15㎡ (66.59坪)
731,500円
貸倉庫
![池辺町 JR横浜線[鴨居駅]の貸倉庫物件の詳細はこちら](https://www.tatsuwa.com/bukken_imgs/thumb/RBK34036-img1_sch.jpg)
横浜市都筑区池辺町
[鴨居駅]
188.80㎡ (57.11坪)
385,000円
貸工場・貸倉庫
![池辺町 横浜市高速鉄道1号線・3号線[新羽駅]の貸工場・貸倉庫物件の詳細はこちら](https://www.tatsuwa.com/bukken_imgs/thumb/RBK32639-img1_sch.jpg)
横浜市都筑区池辺町
[新羽駅]
183.11㎡ (55.39坪)
605,000円
貸工場・貸倉庫
![池辺町 JR横浜線[鴨居駅]の貸工場・貸倉庫物件の詳細はこちら](https://www.tatsuwa.com/bukken_imgs/thumb/RBK29733-img1_sch.jpg)
横浜市都筑区池辺町
[鴨居駅]
1,329.82㎡ (402.27坪)
3,080,000円
貸工場・貸倉庫
![駒岡 東急東横線[綱島駅]の貸工場・貸倉庫物件の詳細はこちら](https://www.tatsuwa.com/bukken_imgs/thumb/RBK29079-img1_sch.jpg)
横浜市鶴見区駒岡
[綱島駅]
274.37㎡ (82.99坪)
730,400円
貸工場・貸倉庫
![駒岡 東急東横線[大倉山駅]の貸工場・貸倉庫物件の詳細はこちら](https://www.tatsuwa.com/bukken_imgs/thumb/RBK29786-img1_sch.jpg)
横浜市鶴見区駒岡
[大倉山駅]
641.33㎡ (194.00坪)
1,760,000円
貸工場・貸倉庫
![駒岡 東急東横線[綱島駅]の貸工場・貸倉庫物件の詳細はこちら](https://www.tatsuwa.com/bukken_imgs/thumb/RBK34009-img1_sch.jpg)
横浜市鶴見区駒岡
[綱島駅]
124.80㎡ (37.75坪)
412,500円
貸倉庫
![駒岡 東急東横線[綱島駅]の貸倉庫物件の詳細はこちら](https://www.tatsuwa.com/bukken_imgs/thumb/RBK34088-img1_sch.jpg)
横浜市鶴見区駒岡
[綱島駅]
480.00㎡ (145.19坪)
2,395,800円
貸工場・貸倉庫
![日吉 東急東横線[日吉駅]の貸工場・貸倉庫物件の詳細はこちら](https://www.tatsuwa.com/bukken_imgs/thumb/RBK08545-img1_sch.jpg)
横浜市港北区日吉
[日吉駅]
204.92㎡ (61.98坪)
682,000円
貸倉庫
![篠原町 横浜市高速鉄道1号線・3号線[岸根公園駅]の貸倉庫物件の詳細はこちら](https://www.tatsuwa.com/bukken_imgs/thumb/RBK34752-img1_sch.jpg)
横浜市港北区篠原町
[岸根公園駅]
52.94㎡ (16.01坪)
139,700円
貸倉庫
![篠原町 横浜市高速鉄道1号線・3号線[岸根公園駅]の貸倉庫物件の詳細はこちら](https://www.tatsuwa.com/bukken_imgs/thumb/RBK34003-img1_sch.jpg)
横浜市港北区篠原町
[岸根公園駅]
170.26㎡ (51.50坪)
450,000円
貸倉庫
![馬絹 東急田園都市線[宮崎台駅]の貸倉庫物件の詳細はこちら](https://www.tatsuwa.com/bukken_imgs/thumb/RBK34004-img1_sch.jpg)
川崎市宮前区馬絹
[宮崎台駅]
66.12㎡ (20.00坪)
176,000円
貸倉庫
![獅子ケ谷 東急東横線[大倉山駅]の貸倉庫物件の詳細はこちら](https://www.tatsuwa.com/bukken_imgs/thumb/RBK34703-img1_sch.jpg)
横浜市鶴見区獅子ケ谷
[大倉山駅]
91.00㎡ (27.52坪)
198,000円
貸工場・貸倉庫
![南加瀬 JR横須賀線[新川崎駅]の貸工場・貸倉庫物件の詳細はこちら](https://www.tatsuwa.com/bukken_imgs/thumb/RBK33004-img1_sch.jpg)
川崎市幸区南加瀬
[新川崎駅]
56.19㎡ (16.99坪)
594,000円
貸倉庫
![南加瀬 JR横須賀線[新川崎駅]の貸倉庫物件の詳細はこちら](https://www.tatsuwa.com/bukken_imgs/thumb/RBK34054-img1_sch.jpg)
川崎市幸区南加瀬
[新川崎駅]
139.23㎡ (42.11坪)
264,000円
貸倉庫
![南加瀬 東急東横線[日吉駅]の貸倉庫物件の詳細はこちら](https://www.tatsuwa.com/bukken_imgs/thumb/RBK33719-img1_sch.jpg)
川崎市幸区南加瀬
[日吉駅]
362.37㎡ (109.61坪)
839,300円
貸倉庫
![菅田町 横浜市高速鉄道1号線・3号線[片倉町駅]の貸倉庫物件の詳細はこちら](https://www.tatsuwa.com/bukken_imgs/thumb/RBK33030-img1_sch.jpg)
横浜市神奈川区菅田町
[片倉町駅]
816.48㎡ (246.98坪)
2,700,000円
貸倉庫
![新作 JR南武線[武蔵新城駅]の貸倉庫物件の詳細はこちら](https://www.tatsuwa.com/bukken_imgs/thumb/RBK34590-img1_sch.jpg)
川崎市高津区新作
[武蔵新城駅]
658.50㎡ (199.19坪)
1,980,000円
貸工場・貸倉庫
![江ヶ崎町 JR南武線[尻手駅]の貸工場・貸倉庫物件の詳細はこちら](https://www.tatsuwa.com/bukken_imgs/thumb/RBK32579-img1_sch.jpg)
横浜市鶴見区江ヶ崎町
[尻手駅]
534.72㎡ (161.75坪)
1,391,500円
貸倉庫
![羽沢町 相鉄新横浜線[羽沢横浜国大駅]の貸倉庫物件の詳細はこちら](https://www.tatsuwa.com/bukken_imgs/thumb/RBK32929-img1_sch.jpg)
横浜市神奈川区羽沢町
[羽沢横浜国大駅]
198.00㎡ (59.89坪)
440,000円
貸倉庫
![羽沢町 相鉄新横浜線[羽沢横浜国大駅]の貸倉庫物件の詳細はこちら](https://www.tatsuwa.com/bukken_imgs/thumb/RBK26332-img1_sch.jpg)
横浜市神奈川区羽沢町
[羽沢横浜国大駅]
260.97㎡ (78.94坪)
649,000円
貸工場・貸倉庫
![東小倉 JR南武線[矢向駅]の貸工場・貸倉庫物件の詳細はこちら](https://www.tatsuwa.com/bukken_imgs/thumb/RBK25176-img1_sch.jpg)
川崎市幸区東小倉
[矢向駅]
54.90㎡ (16.60坪)
187,000円
貸倉庫
![溝口 東急田園都市線[溝の口駅]の貸倉庫物件の詳細はこちら](https://www.tatsuwa.com/bukken_imgs/thumb/RBK27532-img1_sch.jpg)
川崎市高津区溝口
[溝の口駅]
339.08㎡ (102.57坪)
1,980,000円
貸工場・貸倉庫
![久地 東急田園都市線[高津駅]の貸工場・貸倉庫物件の詳細はこちら](https://www.tatsuwa.com/bukken_imgs/thumb/RBK32732-img1_sch.jpg)
川崎市高津区久地
[高津駅]
393.42㎡ (119.00坪)
550,000円
ホームページに掲載されている横浜市港北区の貸工場・貸倉庫に関するFAQ
- Q1ホームページに掲載されている横浜市港北区周辺の貸工場・貸倉庫はあるのか?
- A1
こちらの貸工場・貸倉庫(RBK34358)の募集は終了しました。
参考情報としてご利用ください。
立和コーポレーションは首都圏の事業用物件を専門に取り扱う不動産会社です。
ホームページでは多くの貸工場・貸倉庫を公開しておりますが、これは取扱物件全体の一部で、公開されていない非公開物件も多数ございます。
非公開となっている貸工場・貸倉庫については、担当営業スタッフより個別提案とさせていただいております。
お探しのエリアの非公開物件の有無は、担当営業スタッフへお問い合わせください。
ご要望にマッチする物件が無い場合でも、担当営業スタッフによる新着情報からの随時提案や、ホームページには新着物件情報や更新情報を自動配信する物件さがしのサポートツール「新着お知らせメール」もあります。 - Q2横浜市港北区で貸工場・貸倉庫を探すためのポイント
- A2
1. 横浜市港北区周辺の事業用不動産市場の特性を知る
横浜市港北区周辺にて貸工場・貸倉庫を探す際は、市場動向や地域特性をしっかり理解することが重要です。
エリアごとの成長性や再開発情報を把握しておくと、将来的な事業展開にも役立ちます。
2. 貸工場・貸倉庫選びにおける重要なポイント
① 立地条件の確認
交通アクセスの良さは、事業の効率化や従業員の通勤利便性に直結します。
横浜市港北区周辺の交通アクセスを確認しましょう。
駅や高速道路のインターチェンジに近い物件は、物流効率や事業運営のスムーズさを高めるため、積極的に検討しましょう。
② 用途適合性の確認
物件選定時は、都市計画法で規定されている用途地域を確認することが必須です。
横浜市港北区周辺の用途地域を確認しましょう。
インターネットの検索エンジンで調べたい「市区町村名 都市計画図」と検索すればほとんどが閲覧できます。
各用途地域の制限の概略はこちらで確認できます。⇒用途地域による建築物の用途制限の概要資料
特定の業種の場合、物件利用に制限がかかる可能性があるため、事前に行政窓口や専門家に相談することをお勧めします。
③ コストと予算計画
神奈川県の主要エリアでは、人気物件ほど賃料や購入価格が高騰する傾向があります。
初期投資だけでなく、物件維持費、管理費、将来的な改修・設備投資などの費用も含めた総合的な予算計画を立てましょう。
3. 最適な貸工場・貸倉庫を見つけるために
横浜市港北区周辺で事業用物件を成功裏に選ぶためには、立地条件・用途規制・総合的なコストバランスを慎重に評価する必要があります。
また、最新情報を常に収集し、賢明な選択を心がけましょう。 - Q3横浜市港北区周辺の貸工場・貸倉庫を貸したい!
- A3
是非、お気軽にお問い合わせください!
・「簡易査定」「詳細査定」と無料査定を随時実施中です!
貸工場・貸倉庫の豊富な取り扱い経験から適正査定を行ないます。
・「専任媒介」「専属専任媒介」「サブリース」はもちろん!
「一般媒介」からもお受けいたします!
・非公開での賃貸仲介も可能です。
弊社のストロングポイント!貸工場・貸倉庫をおさがしのお客様へ個別提案を行ないます。
『安心と信頼の取引。早く高くを追及しています。』 - Q4賃貸管理もお願いできますか?
- A4
はい、承っております。
賃料の入金管理・回収業務、入居者との調整、修繕アドバイス、明渡しの立会い・精算業務など、オーナー様の事業用不動産経営におけるさまざまなご負担やご心配を軽減いたします。
■ キャンペーン概要
弊社媒介(「専任媒介」または「専属専任媒介」に限ります)で賃貸借契約を締結のうえ、
「賃貸管理契約」をご利用いただいたお客様には、管理費3ヵ月分を無料とさせていただきます。
■ リアルタイムで管理状況を報告
募集活動や管理業務の状況などを、できる限りリアルタイムでご報告。
日々の進捗はもちろん、現場や打ち合わせ時なども電話・メール・LINEで随時ご連絡可能です。
まずはお気軽にお問い合わせください!
横浜市港北区の貸倉庫についてのお知らせ・ニュース
なぜ「立和コーポレーション」の貸工場・貸倉庫査定が人気なのか!

事業用不動産と消費税の「基本ルール」まとめ

- 成約済み物件は当サイトに掲載していた物件情報で、成約済みとなった情報を一部抜粋して掲載しています。
- それぞれの物件情報について、すべての制限・情報が表示されているわけではありません。
- 参考資料としてご利用下さい。








