貸倉庫 川崎市高津区 横浜市高速鉄道4号線東山田駅 の貸倉庫 (募集は終了しました。)
| 物件No. | RBK32609 |
|---|---|
| 最寄駅 所在地 |
横浜市高速鉄道4号線「東山田駅」 神奈川県川崎市高津区 |
| 賃料 | 734,800円 礼 1ヶ月 / 保 3ヶ月(倉庫の場合特別預託金あり) |
川崎市高津区-事務所付貸倉庫【貸し倉庫・賃貸倉庫】
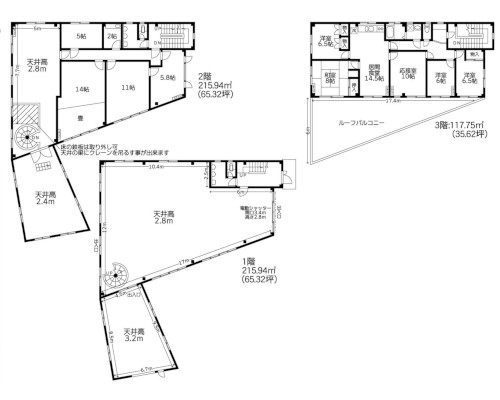
- Point 1鉄骨造3階建て 1階65.32坪 2階65.32坪 3階35.62坪
- Point 2川崎市高津区|駐車場あり(約5台可) 北東側道路幅員約5.8m公道
- Point 3第一種中高層住居専用地域 第三京浜「都筑IC」より車で約10分
| 物件No. | RBK32609 | ||
|---|---|---|---|
| 所在地 | 神奈川県川崎市高津区 | ||
| 交通 ※駅までの直線距離で自動表示 実際の交通とは異なります。 |
横浜市営地下鉄グリーンライン 「東山田駅」 | ||
| 賃料(月額) | 734,800円 | 管理費(月額) | |
| 敷金/保証金 | 保 3ヶ月(倉庫の場合特別預託金あり) | 礼金 | 1ヶ月 |
| 建物面積 | 約166坪 | ||
| 土地面積 | 約113坪 | ||
| 構造・規模 | 鉄骨造3階建て 1階65.32坪 2階65.32坪 3階35.62坪 | ||
| 築年月 | 1984年11月 | ||
| 接道状況 | 北東側道路幅員約5.8m公道 | ||
| 設備 | キュービクル(残置物) | ||
| 備考 | 消費税10%込表示。 ■■■ 独自の物件情報からマッチング ■■■ 事業用不動産取引は、物件特有の条件が強く、また賃借をご検討のお客様のご要望も独自性が強いのが特徴です。 これまで培った専門的な知識やさまざまな経験を基に、お客様の安全な不動産取引のお手伝いができるよう取り組んでいます。 事業用不動産専門だからこそ寄せられる独自の物件情報が豊富! オーナー様より直接の情報や、地元不動産会社様からの公開・非公開情報と、これまでの取引を通じたネットワークを大切にしています。 確かな物件情報から、賃借をご検討のお客様のご要望にマッチングするようご提案をさせていただきます。 ホームページに掲載されている物件は、取扱物件全体のわずか一部です。 まずは、ご希望の条件をお知らせください。 |
||
| 取引態様 | 媒介 | ||
|
こちらの物件は、募集終了しました。 他の物件検索はこちら |
|||
お問い合わせ可能な川崎市高津区周辺の貸工場・貸倉庫物件
座標の取得が出来ない場合など大きくずれを生じる場合があります。
貸倉庫
![東山田 横浜市高速鉄道4号線[東山田駅]の貸倉庫物件の詳細はこちら](https://www.tatsuwa.com/bukken_imgs/thumb/RBK21285-img1_sch.jpg)
横浜市都筑区東山田
[東山田駅]
173.60㎡ (52.51坪)
280,000円
貸倉庫
![東山田町 横浜市営地下鉄グリーンライン[東山田駅]の貸倉庫物件の詳細はこちら](https://www.tatsuwa.com/bukken_imgs/thumb/RBK34477-img1_sch.jpg)
横浜市都筑区東山田町
[東山田駅]
80.00㎡ (24.20坪)
380,000円
貸倉庫
![新吉田東 横浜市高速鉄道4号線[高田駅]の貸倉庫物件の詳細はこちら](https://www.tatsuwa.com/bukken_imgs/thumb/RBK34244-img1_sch.jpg)
横浜市港北区新吉田東
[高田駅]
264.46㎡ (79.99坪)
990,000円
貸倉庫
![新吉田東 横浜市高速鉄道4号線[高田駅]の貸倉庫物件の詳細はこちら](https://www.tatsuwa.com/bukken_imgs/thumb/RBK34159-img1_sch.jpg)
横浜市港北区新吉田東
[高田駅]
397.10㎡ (120.12坪)
1,320,000円
貸倉庫
![早渕 横浜市営地下鉄ブルーライン[仲町台駅]の貸倉庫物件の詳細はこちら](https://www.tatsuwa.com/bukken_imgs/thumb/RBK34380-img1_sch.jpg)
横浜市都筑区早渕
[仲町台駅]
145.35㎡ (43.96坪)
341,000円
貸工場・貸倉庫
![箕輪町 東急東横線[綱島駅]の貸工場・貸倉庫物件の詳細はこちら](https://www.tatsuwa.com/bukken_imgs/thumb/RBK33026-img1_sch.jpg)
横浜市港北区箕輪町
[綱島駅]
200.19㎡ (60.55坪)
396,000円
貸倉庫
![新吉田町 横浜市高速鉄道4号線[高田駅]の貸倉庫物件の詳細はこちら](https://www.tatsuwa.com/bukken_imgs/thumb/RBK33833-img1_sch.jpg)
横浜市港北区新吉田町
[高田駅]
208.00㎡ (62.92坪)
497,700円
貸工場・貸倉庫
![新吉田町 横浜市営地下鉄グリーンライン[東山田駅]の貸工場・貸倉庫物件の詳細はこちら](https://www.tatsuwa.com/bukken_imgs/thumb/RBK00899-img1_sch.jpg)
横浜市港北区新吉田町
[東山田駅]
112.00㎡ (33.87坪)
330,000円
貸倉庫
![馬絹 東急田園都市線[宮崎台駅]の貸倉庫物件の詳細はこちら](https://www.tatsuwa.com/bukken_imgs/thumb/RBK34004-img1_sch.jpg)
川崎市宮前区馬絹
[宮崎台駅]
66.12㎡ (20.00坪)
176,000円
貸工場・貸倉庫
![南山田 横浜市営地下鉄グリーンライン[北山田駅]の貸工場・貸倉庫物件の詳細はこちら](https://www.tatsuwa.com/bukken_imgs/thumb/RBK34212-img1_sch.jpg)
横浜市都筑区南山田
[北山田駅]
80.64㎡ (24.39坪)
230,000円
貸工場・貸倉庫
![日吉 東急東横線[日吉駅]の貸工場・貸倉庫物件の詳細はこちら](https://www.tatsuwa.com/bukken_imgs/thumb/RBK08545-img1_sch.jpg)
横浜市港北区日吉
[日吉駅]
204.92㎡ (61.98坪)
682,000円
貸工場・貸倉庫
![勝田町 横浜市高速鉄道1号線・3号線[仲町台駅]の貸工場・貸倉庫物件の詳細はこちら](https://www.tatsuwa.com/bukken_imgs/thumb/RBK32128-img1_sch.jpg)
横浜市都筑区勝田町
[仲町台駅]
234.12㎡ (70.82坪)
250,000円
貸倉庫
![勝田町 横浜市高速鉄道4号線[東山田駅]の貸倉庫物件の詳細はこちら](https://www.tatsuwa.com/bukken_imgs/thumb/RBK28599-img1_sch.jpg)
横浜市都筑区勝田町
[東山田駅]
69.43㎡ (21.00坪)
173,250円
貸倉庫
![勝田町 横浜市高速鉄道1号線・3号線[センター南駅]の貸倉庫物件の詳細はこちら](https://www.tatsuwa.com/bukken_imgs/thumb/RBK10298-img1_sch.jpg)
横浜市都筑区勝田町
[センター南駅]
81.55㎡ (24.66坪)
275,000円
貸倉庫
![綱島東 東急東横線[綱島駅]の貸倉庫物件の詳細はこちら](https://www.tatsuwa.com/bukken_imgs/thumb/RBK34412-img1_sch.jpg)
横浜市港北区綱島東
[綱島駅]
146.67㎡ (44.36坪)
450,000円
貸工場・貸倉庫
![綱島東 東急東横線[綱島駅]の貸工場・貸倉庫物件の詳細はこちら](https://www.tatsuwa.com/bukken_imgs/thumb/RBK07543-img1_sch.jpg)
横浜市港北区綱島東
[綱島駅]
120.78㎡ (36.53坪)
401,500円
貸倉庫
![綱島東 東急東横線[綱島駅]の貸倉庫物件の詳細はこちら](https://www.tatsuwa.com/bukken_imgs/thumb/RBK34343-img1_sch.jpg)
横浜市港北区綱島東
[綱島駅]
111.07㎡ (33.59坪)
369,600円
貸倉庫
![溝口 東急田園都市線[溝の口駅]の貸倉庫物件の詳細はこちら](https://www.tatsuwa.com/bukken_imgs/thumb/RBK27532-img1_sch.jpg)
川崎市高津区溝口
[溝の口駅]
339.08㎡ (102.57坪)
1,980,000円
貸倉庫
![樽町 東急東横線[綱島駅]の貸倉庫物件の詳細はこちら](https://www.tatsuwa.com/bukken_imgs/thumb/RBK33602-img1_sch.jpg)
横浜市港北区樽町
[綱島駅]
200.84㎡ (60.75坪)
470,000円
貸工場・貸倉庫
![樽町 東急東横線[綱島駅]の貸工場・貸倉庫物件の詳細はこちら](https://www.tatsuwa.com/bukken_imgs/thumb/RBK33952-img1_sch.jpg)
横浜市港北区樽町
[綱島駅]
111.96㎡ (33.86坪)
308,000円
貸倉庫
![茅ケ崎東 横浜市高速鉄道1号線・3号線[センター北駅]の貸倉庫物件の詳細はこちら](https://www.tatsuwa.com/bukken_imgs/thumb/RBK33417-img1_sch.jpg)
横浜市都筑区茅ケ崎東
[センター北駅]
585.30㎡ (177.05坪)
1,650,000円
貸倉庫
![茅ケ崎東 横浜市高速鉄道1号線・3号線[センター南駅]の貸倉庫物件の詳細はこちら](https://www.tatsuwa.com/bukken_imgs/thumb/RBK33966-img1_sch.jpg)
横浜市都筑区茅ケ崎東
[センター南駅]
224.30㎡ (67.85坪)
836,000円
貸倉庫
![南加瀬 JR横須賀線[新川崎駅]の貸倉庫物件の詳細はこちら](https://www.tatsuwa.com/bukken_imgs/thumb/RBK34054-img1_sch.jpg)
川崎市幸区南加瀬
[新川崎駅]
139.23㎡ (42.11坪)
330,000円
貸工場・貸倉庫
![南加瀬 JR横須賀線[新川崎駅]の貸工場・貸倉庫物件の詳細はこちら](https://www.tatsuwa.com/bukken_imgs/thumb/RBK33004-img1_sch.jpg)
川崎市幸区南加瀬
[新川崎駅]
56.19㎡ (16.99坪)
594,000円
貸工場・貸倉庫
![南加瀬 東急東横線[日吉駅]の貸工場・貸倉庫物件の詳細はこちら](https://www.tatsuwa.com/bukken_imgs/thumb/RBK32889-img1_sch.jpg)
川崎市幸区南加瀬
[日吉駅]
480.00㎡ (145.19坪)
1,357,620円
貸倉庫
![南加瀬 東急東横線[日吉駅]の貸倉庫物件の詳細はこちら](https://www.tatsuwa.com/bukken_imgs/thumb/RBK33718-img1_sch.jpg)
川崎市幸区南加瀬
[日吉駅]
174.84㎡ (52.88坪)
581,790円
貸倉庫
![南加瀬 東急東横線[日吉駅]の貸倉庫物件の詳細はこちら](https://www.tatsuwa.com/bukken_imgs/thumb/RBK33719-img1_sch.jpg)
川崎市幸区南加瀬
[日吉駅]
362.37㎡ (109.61坪)
839,300円
貸工場・貸倉庫
![新羽町 横浜市高速鉄道1号線3号線[北新横浜駅]の貸工場・貸倉庫物件の詳細はこちら](https://www.tatsuwa.com/bukken_imgs/thumb/RBK19378-img1_sch.jpg)
横浜市港北区新羽町
[北新横浜駅]
635.96㎡ (192.38坪)
1,056,000円
貸工場・貸倉庫
![新羽町 横浜市高速鉄道1号線3号線[新羽駅]の貸工場・貸倉庫物件の詳細はこちら](https://www.tatsuwa.com/bukken_imgs/thumb/RBK28301-img1_sch.jpg)
横浜市港北区新羽町
[新羽駅]
55.81㎡ (16.88坪)
165,000円
貸工場・貸倉庫
![新羽町 横浜市営地下鉄ブルーライン[北新横浜駅]の貸工場・貸倉庫物件の詳細はこちら](https://www.tatsuwa.com/bukken_imgs/thumb/RBK34449-img1_sch.jpg)
横浜市港北区新羽町
[北新横浜駅]
104.34㎡ (31.56坪)
381,700円
貸倉庫
![新羽町 横浜市高速鉄道1号線3号線[北新横浜駅]の貸倉庫物件の詳細はこちら](https://www.tatsuwa.com/bukken_imgs/thumb/RBK27639-img1_sch.jpg)
横浜市港北区新羽町
[北新横浜駅]
130.32㎡ (39.42坪)
450,000円
貸工場・貸倉庫
![新羽町 横浜市高速鉄道1号線・3号線[新羽駅]の貸工場・貸倉庫物件の詳細はこちら](https://www.tatsuwa.com/bukken_imgs/thumb/RBK31058-img1_sch.jpg)
横浜市港北区新羽町
[新羽駅]
140.49㎡ (42.49坪)
451,000円
貸工場・貸倉庫
![新羽町 横浜市高速鉄道1号線・3号線[新羽駅]の貸工場・貸倉庫物件の詳細はこちら](https://www.tatsuwa.com/bukken_imgs/thumb/RBK34026-img1_sch.jpg)
横浜市港北区新羽町
[新羽駅]
878.00㎡ (265.59坪)
2,750,000円
貸工場・貸倉庫
![駒岡 東急東横線[大倉山駅]の貸工場・貸倉庫物件の詳細はこちら](https://www.tatsuwa.com/bukken_imgs/thumb/RBK29786-img1_sch.jpg)
横浜市鶴見区駒岡
[大倉山駅]
641.33㎡ (194.00坪)
1,760,000円
貸倉庫
![駒岡 東急東横線[綱島駅]の貸倉庫物件の詳細はこちら](https://www.tatsuwa.com/bukken_imgs/thumb/RBK34088-img1_sch.jpg)
横浜市鶴見区駒岡
[綱島駅]
480.00㎡ (145.19坪)
2,395,800円
貸工場・貸倉庫
![駒岡 東急東横線[綱島駅]の貸工場・貸倉庫物件の詳細はこちら](https://www.tatsuwa.com/bukken_imgs/thumb/RBK29079-img1_sch.jpg)
横浜市鶴見区駒岡
[綱島駅]
274.37㎡ (82.99坪)
730,400円
貸工場・貸倉庫
![駒岡 東急東横線[綱島駅]の貸工場・貸倉庫物件の詳細はこちら](https://www.tatsuwa.com/bukken_imgs/thumb/RBK34009-img1_sch.jpg)
横浜市鶴見区駒岡
[綱島駅]
124.80㎡ (37.75坪)
412,500円
貸工場・貸倉庫
![久地 東急田園都市線[高津駅]の貸工場・貸倉庫物件の詳細はこちら](https://www.tatsuwa.com/bukken_imgs/thumb/RBK32732-img1_sch.jpg)
川崎市高津区久地
[高津駅]
393.42㎡ (119.00坪)
550,000円
貸工場・貸倉庫
![大熊町 横浜市営地下鉄ブルーライン[新羽駅]の貸工場・貸倉庫物件の詳細はこちら](https://www.tatsuwa.com/bukken_imgs/thumb/RBK05061-img1_sch.jpg)
横浜市都筑区大熊町
[新羽駅]
82.65㎡ (25.00坪)
220,000円
貸倉庫
![折本町 横浜市営地下鉄ブルーライン[仲町台駅]の貸倉庫物件の詳細はこちら](https://www.tatsuwa.com/bukken_imgs/thumb/RBK34476-img1_sch.jpg)
横浜市都筑区折本町
[仲町台駅]
202.93㎡ (61.38坪)
297,000円
貸工場・貸倉庫
![東小倉 JR南武線[矢向駅]の貸工場・貸倉庫物件の詳細はこちら](https://www.tatsuwa.com/bukken_imgs/thumb/RBK25176-img1_sch.jpg)
川崎市幸区東小倉
[矢向駅]
54.90㎡ (16.60坪)
187,000円
貸倉庫
![玉川田園調布 東急東横線[田園調布駅]の貸倉庫物件の詳細はこちら](https://www.tatsuwa.com/bukken_imgs/thumb/RBT28379-img1_sch.jpg)
世田谷区玉川田園調布
[田園調布駅]
371.57㎡ (112.39坪)
2,519,000円
貸工場・貸倉庫
![江ヶ崎町 JR南武線[尻手駅]の貸工場・貸倉庫物件の詳細はこちら](https://www.tatsuwa.com/bukken_imgs/thumb/RBK32579-img1_sch.jpg)
横浜市鶴見区江ヶ崎町
[尻手駅]
534.72㎡ (161.75坪)
1,391,500円
貸工場・貸倉庫
![東方町 横浜市営地下鉄ブルーライン[新羽駅]の貸工場・貸倉庫物件の詳細はこちら](https://www.tatsuwa.com/bukken_imgs/thumb/RBK34197-img1_sch.jpg)
横浜市都筑区東方町
[新羽駅]
118.50㎡ (35.84坪)
550,000円
貸工場・貸倉庫
![川向町 JR横浜線[小机駅]の貸工場・貸倉庫物件の詳細はこちら](https://www.tatsuwa.com/bukken_imgs/thumb/RBK33501-img1_sch.jpg)
横浜市都筑区川向町
[小机駅]
94.77㎡ (28.66坪)
297,000円
貸工場・貸倉庫
![東方町 横浜市営地下鉄ブルーライン[仲町台駅]の貸工場・貸倉庫物件の詳細はこちら](https://www.tatsuwa.com/bukken_imgs/thumb/RBK34545-img1_sch.jpg)
横浜市都筑区東方町
[仲町台駅]
1,571.09㎡ (475.25坪)
4,180,000円
貸倉庫
![初山 小田急小田原線[向ヶ丘遊園駅]の貸倉庫物件の詳細はこちら](https://www.tatsuwa.com/bukken_imgs/thumb/RBK24394-img1_sch.jpg)
川崎市宮前区初山
[向ヶ丘遊園駅]
852.89㎡ (258.00坪)
1,980,000円
貸工場・貸倉庫
![小机町 JR横浜線[小机駅]の貸工場・貸倉庫物件の詳細はこちら](https://www.tatsuwa.com/bukken_imgs/thumb/RBK34039-img1_sch.jpg)
横浜市港北区小机町
[小机駅]
792.60㎡ (239.76坪)
1,848,000円
貸工場・貸倉庫
![池辺町 JR横浜線[鴨居駅]の貸工場・貸倉庫物件の詳細はこちら](https://www.tatsuwa.com/bukken_imgs/thumb/RBK08888-img1_sch.jpg)
横浜市都筑区池辺町
[鴨居駅]
771.74㎡ (233.45坪)
1,870,000円
貸工場・貸倉庫
![池辺町 横浜市高速鉄道1号線・3号線[新羽駅]の貸工場・貸倉庫物件の詳細はこちら](https://www.tatsuwa.com/bukken_imgs/thumb/RBK31077-img1_sch.jpg)
横浜市都筑区池辺町
[新羽駅]
76.03㎡ (22.99坪)
253,000円
貸工場・貸倉庫
![池辺町 横浜市高速鉄道1号線・3号線[新羽駅]の貸工場・貸倉庫物件の詳細はこちら](https://www.tatsuwa.com/bukken_imgs/thumb/RBK05037-img1_sch.jpg)
横浜市都筑区池辺町
[新羽駅]
119.27㎡ (36.07坪)
396,000円
貸工場・貸倉庫
![池辺町 JR横浜線[鴨居駅]の貸工場・貸倉庫物件の詳細はこちら](https://www.tatsuwa.com/bukken_imgs/thumb/RBK31140-img1_sch.jpg)
横浜市都筑区池辺町
[鴨居駅]
80.00㎡ (24.20坪)
171,600円
貸倉庫
![美しが丘 東急田園都市線[たまプラーザ駅]の貸倉庫物件の詳細はこちら](https://www.tatsuwa.com/bukken_imgs/thumb/_sch.jpg)
横浜市青葉区美しが丘
[たまプラーザ駅]
132.24㎡ (40.00坪)
297,000円
貸倉庫
![あざみ野 東急田園都市線[あざみ野駅]の貸倉庫物件の詳細はこちら](https://www.tatsuwa.com/bukken_imgs/thumb/RBK33499-img1_sch.jpg)
横浜市青葉区あざみ野
[あざみ野駅]
53.16㎡ (16.08坪)
110,000円
貸倉庫
![篠原町 横浜市高速鉄道1号線・3号線[岸根公園駅]の貸倉庫物件の詳細はこちら](https://www.tatsuwa.com/bukken_imgs/thumb/RBK34003-img1_sch.jpg)
横浜市港北区篠原町
[岸根公園駅]
170.26㎡ (51.50坪)
450,000円
貸倉庫
![用賀 東急田園都市線[用賀駅]の貸倉庫物件の詳細はこちら](https://www.tatsuwa.com/bukken_imgs/thumb/RBT32779-img1_sch.jpg)
世田谷区用賀
[用賀駅]
2,095.70㎡ (633.94坪)
5,940,000円
貸工場・貸倉庫
![池辺町 横浜市高速鉄道1号線・3号線[新羽駅]の貸工場・貸倉庫物件の詳細はこちら](https://www.tatsuwa.com/bukken_imgs/thumb/RBK32639-img1_sch.jpg)
横浜市都筑区池辺町
[新羽駅]
183.11㎡ (55.39坪)
605,000円
貸倉庫
![池辺町 JR横浜線[鴨居駅]の貸倉庫物件の詳細はこちら](https://www.tatsuwa.com/bukken_imgs/thumb/RBK34036-img1_sch.jpg)
横浜市都筑区池辺町
[鴨居駅]
188.80㎡ (57.11坪)
385,000円
貸工場・貸倉庫
![池辺町 JR横浜線[鴨居駅]の貸工場・貸倉庫物件の詳細はこちら](https://www.tatsuwa.com/bukken_imgs/thumb/RBK33218-img1_sch.jpg)
横浜市都筑区池辺町
[鴨居駅]
220.15㎡ (66.59坪)
731,500円
貸工場・貸倉庫
![池辺町 JR横浜線[鴨居駅]の貸工場・貸倉庫物件の詳細はこちら](https://www.tatsuwa.com/bukken_imgs/thumb/RBK29733-img1_sch.jpg)
横浜市都筑区池辺町
[鴨居駅]
1,329.82㎡ (402.27坪)
3,080,000円
ホームページに掲載されている川崎市高津区の貸工場・貸倉庫に関するFAQ
- Q1ホームページに掲載されている川崎市高津区周辺の貸工場・貸倉庫はあるのか?
- A1
こちらの貸工場・貸倉庫(RBK32609)の募集は終了しました。
参考情報としてご利用ください。
立和コーポレーションは首都圏の事業用物件を専門に取り扱う不動産会社です。
ホームページでは多くの貸工場・貸倉庫を公開しておりますが、これは取扱物件全体の一部で、公開されていない非公開物件も多数ございます。
非公開となっている貸工場・貸倉庫については、担当営業スタッフより個別提案とさせていただいております。
お探しのエリアの非公開物件の有無は、担当営業スタッフへお問い合わせください。
ご要望にマッチする物件が無い場合でも、担当営業スタッフによる新着情報からの随時提案や、ホームページには新着物件情報や更新情報を自動配信する物件さがしのサポートツール「新着お知らせメール」もあります。 - Q2川崎市高津区で貸工場・貸倉庫を探すためのポイント
- A2
1. 川崎市高津区周辺の事業用不動産市場の特性を知る
川崎市高津区周辺にて貸工場・貸倉庫を探す際は、市場動向や地域特性をしっかり理解することが重要です。
エリアごとの成長性や再開発情報を把握しておくと、将来的な事業展開にも役立ちます。
2. 貸工場・貸倉庫選びにおける重要なポイント
① 立地条件の確認
交通アクセスの良さは、事業の効率化や従業員の通勤利便性に直結します。
川崎市高津区周辺の交通アクセスを確認しましょう。
駅や高速道路のインターチェンジに近い物件は、物流効率や事業運営のスムーズさを高めるため、積極的に検討しましょう。
② 用途適合性の確認
物件選定時は、都市計画法で規定されている用途地域を確認することが必須です。
川崎市高津区周辺の用途地域を確認しましょう。
インターネットの検索エンジンで調べたい「市区町村名 都市計画図」と検索すればほとんどが閲覧できます。
各用途地域の制限の概略はこちらで確認できます。⇒用途地域による建築物の用途制限の概要資料
特定の業種の場合、物件利用に制限がかかる可能性があるため、事前に行政窓口や専門家に相談することをお勧めします。
③ コストと予算計画
神奈川県の主要エリアでは、人気物件ほど賃料や購入価格が高騰する傾向があります。
初期投資だけでなく、物件維持費、管理費、将来的な改修・設備投資などの費用も含めた総合的な予算計画を立てましょう。
3. 最適な貸工場・貸倉庫を見つけるために
川崎市高津区周辺で事業用物件を成功裏に選ぶためには、立地条件・用途規制・総合的なコストバランスを慎重に評価する必要があります。
また、最新情報を常に収集し、賢明な選択を心がけましょう。 - Q3川崎市高津区周辺の貸工場・貸倉庫を貸したい!
- A3
是非、お気軽にお問い合わせください!
・「簡易査定」「詳細査定」と無料査定を随時実施中です!
貸工場・貸倉庫の豊富な取り扱い経験から適正査定を行ないます。
・「専任媒介」「専属専任媒介」「サブリース」はもちろん!
「一般媒介」からもお受けいたします!
・非公開での賃貸仲介も可能です。
弊社のストロングポイント!貸工場・貸倉庫をおさがしのお客様へ個別提案を行ないます。
『安心と信頼の取引。早く高くを追及しています。』 - Q4賃貸管理もお願いできますか?
- A4
はい、承っております。
賃料の入金管理・回収業務、入居者との調整、修繕アドバイス、明渡しの立会い・精算業務など、オーナー様の事業用不動産経営におけるさまざまなご負担やご心配を軽減いたします。
■ キャンペーン概要
弊社媒介(「専任媒介」または「専属専任媒介」に限ります)で賃貸借契約を締結のうえ、
「賃貸管理契約」をご利用いただいたお客様には、管理費3ヵ月分を無料とさせていただきます。
■ リアルタイムで管理状況を報告
募集活動や管理業務の状況などを、できる限りリアルタイムでご報告。
日々の進捗はもちろん、現場や打ち合わせ時なども電話・メール・LINEで随時ご連絡可能です。
まずはお気軽にお問い合わせください!
川崎市高津区の貸倉庫についてのお知らせ・ニュース
事業用不動産取引の知恵袋|「準工業地域」とは?

「準工業地域」とは、住宅と軽工業施設が共存できる用途地域のことです。
環境を著しく悪化させない工場であれば建築可能で、職住近接を叶えたい事業者や、店舗兼作業場を持ちたい方にとって、非常に使い勝手の良いエリアです。
この地域の最大の魅力は、土地活用の柔軟性です。
一戸建てやマンションはもちろん、店舗、オフィス、倉庫、町工場など、多様な建物が許可されています。
しかし、落とし穴もあります。
「準工業地域ならどこでも条件は同じ」ではありません。
騒音や振動、操業時間などの細かい規制は、各自治体の「条例」によって大きく異なるからです。
同じ準工業地域でも、自治体が変われば「騒音・振動規制の変化」「使える機械の制限」などが変わるケースも珍しくありません。
失敗を防ぐためには、候補地の自治体が定める独自のルールを事前に確認することが不可欠です。
都市計画図をチェックするだけでなく、事業用不動産に詳しい専門家に相談し、周辺環境や条例について正確な情報を得ることが成功の鍵となります。
自由と利便性を兼ね備えた準工業地域を、賢く活用しましょう。
「使っていない工場・倉庫あるけど、このままでいいのか…」

貸し倉庫をさがす際のチェックポイント
- 成約済み物件は当サイトに掲載していた物件情報で、成約済みとなった情報を一部抜粋して掲載しています。
- それぞれの物件情報について、すべての制限・情報が表示されているわけではありません。
- 参考資料としてご利用下さい。








